Orihuela · Alicante, Costa Blanca REF: NBS-72201 · Villa

469.900€
Schlafzimmer: 3
Das Badezimmer: 2
Gebaut: 114m2
Grundstück: 298m2
Nennleistung: B
Solarium: Yes
Mit einem Gatter versehen
In der Nähe von Golf-/Golfresortgrundstücken
In der Nähe von Schulen
In der Nähe des Einkaufszentrums
Doppelzimmer: 3
Anzahl der Parkplätze: 1
Location: Urbanisation
Parking - Space
Useable Build Space: 100 Msq.
Beach: 14000 Meters
Terrace: 121 Msq.
Privater Pool
Nennleistung
Energieeffizienzklasse B

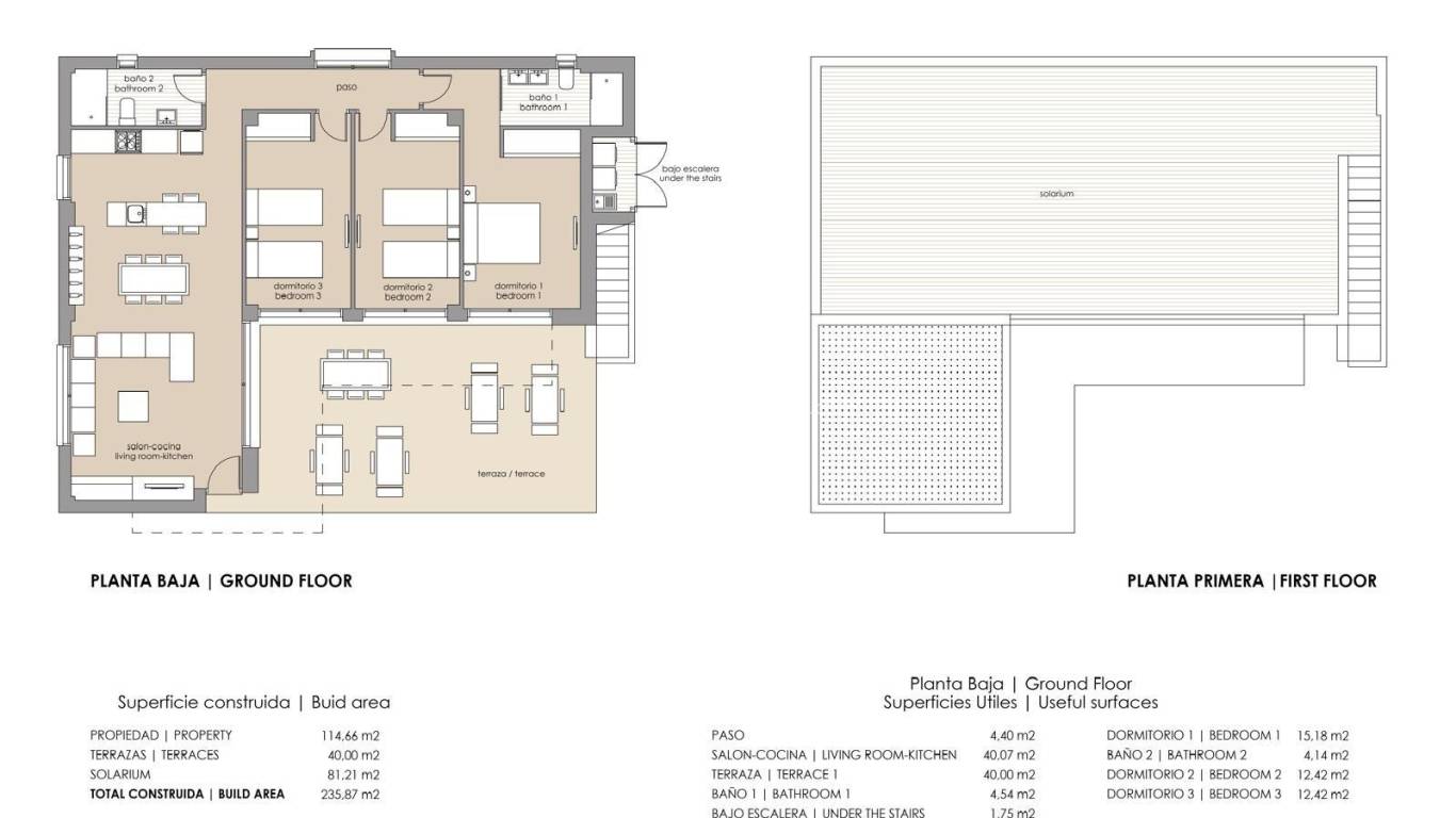
Neubau-Villen im Vistabella Golf Resort – Orihuela Erleben Sie modernes mediterranes Wohnen im Herzen der Costa Blanca mit diesen atemberaubenden Neubau-Villen im Vistabella Golf Resort. Zwischen San Miguel de Salinas und Los Montesinos, in der Gemeinde Orihuela, bietet diese exklusive Wohnanlage Luxus, Komfort und eine unschlagbare Lage für Golfbegeisterte und Lifestyle-Suchende gleichermaßen. Zwei unterschiedliche Villenmodelle Käufer können zwischen zwei eleganten Designs wählen: Ebenerdige Villen mit 3 Schlafzimmern, 2 Bädern und einer Dachterrasse. Zweistöckige Villen mit 4 Schlafzimmern, 3 Bädern und einer Sonnenterrasse im ersten Stock. Beide Modelle stehen auf Grundstücken von ca. 300 m² und verfügen über einen privaten Pool und einen Parkplatz auf dem Grundstück. Premium-Qualität und moderner Komfort Jede Villa verfügt über eine luxuriöse Ausstattung, darunter eine voll installierte Klimaanlage, Einbauküchen mit Geräten, Außenbeleuchtung, elektrische Rollläden und elegante Duschwände in den Badezimmern. Die Kombination aus Stil und Funktionalität sorgt für ein Zuhause, das sowohl schön als auch praktisch ist. Exklusiver Golf-Resort-Lifestyle Das Vistabella Golf Resort ist eine bewachte Wohnanlage mit einem 18-Loch-Golfplatz, Paddle-Tennisplätzen, einer Bowlingbahn, einem Supermarkt und einer Vielzahl von Bars und Restaurants. Zukünftige Erweiterungen werden das Resort zu einem echten 5-Sterne-Resort machen, mit geplanten Ergänzungen wie einer Champagner-Bar, einer Sushi-Bar, einem Spa-Hotel, einem künstlichen Strand, einem Tennisplatz, einem Fußballplatz und einer Gourmet-Bar. Erstklassige Lage an der Costa Blanca Das Resort bietet eine hervorragende Anbindung an die besten Strände, Golfplätze und Dienstleistungen der Region. Die Entfernungen zu den wichtigsten Sehenswürdigkeiten betragen: Strand von La Mata: 18 km Strand von Guardamar del Segura: 20 km Torrevieja: 15 km Flughafen Alicante: 55 km Flughafen Murcia: 68 km Villamartín Golf: 12 km Las Colinas Golf & Country Club: 14 km Ihr Traumhaus erwartet Sie Ob als Dauerwohnsitz, Ferienhaus oder Mietobjekt – diese neu gebauten Villen im Vistabella Golf Resort bieten außergewöhnlichen Wert in einer der begehrtesten Küstenregionen Spaniens. Kontaktieren Sie uns noch heute, um einen Besichtigungstermin zu vereinbaren und sich Ihren Platz in dieser luxuriösen Golfanlage zu sichern. 263

Diese hier angegebenen Informationen unterliegen Fehlern und sind nicht Bestandteil eines Vertrages. Das Angebot kann ohne vorherige Ankündigung geändert oder zurückgezogen werden. Die Preise beinhalten keine Einkaufskosten.

Berechnen Hypotheken

Geldwechsel

  • Pfund: 407.887 GBP
  • Russischen Rubel: 407.887 RUB
  • Schweizerfranken: 432.261 CHF
  • Chinesischen Yuan: 3.762.348 CNY
  • Dollar: 550.347 USD
  • Schwedische Krone: 5.084.318 SEK
  • Die norwegische Krone: 5.146.580 NOK

Nach Informationen fragen

Responsable del tratamiento: , Finalidad del tratamiento: Gestión y control de los servicios ofrecidos a través de la página Web de Servicios inmobiliarios, Envío de información a traves de newsletter y otros, Legitimación: Por consentimiento, Destinatarios: No se cederan los datos, salvo para elaborar contabilidad, Derechos de las personas interesadas: Acceder, rectificar y suprimir los datos, solicitar la portabilidad de los mismos, oponerse altratamiento y solicitar la limitación de éste, Procedencia de los datos: El Propio interesado, Información Adicional: Puede consultarse la información adicional y detallada sobre protección de datos Aquí.
WhatsApp
ONLINE VIEWINGS