Torrevieja · Alicante, Costa Blanca REF: NB-38794 · Villa

750.000€
Schlafzimmer: 4
Das Badezimmer: 4
Gebaut: 238m2
Grundstück: 420m2
Nennleistung: B
Garten
Privater Pool
Key ready
Solarium: Yes
Mit einem Gatter versehen
Near Trees
In der Nähe von Schulen
In der Nähe des Einkaufszentrums
Anzahl der Parkplätze: 1
Klimaanlage: Vorinstalliert
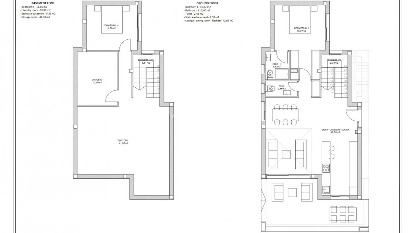
Under-Build / Basement
Beach: 1200 Meters
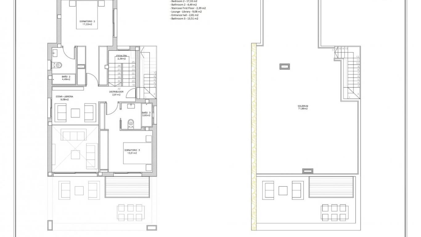
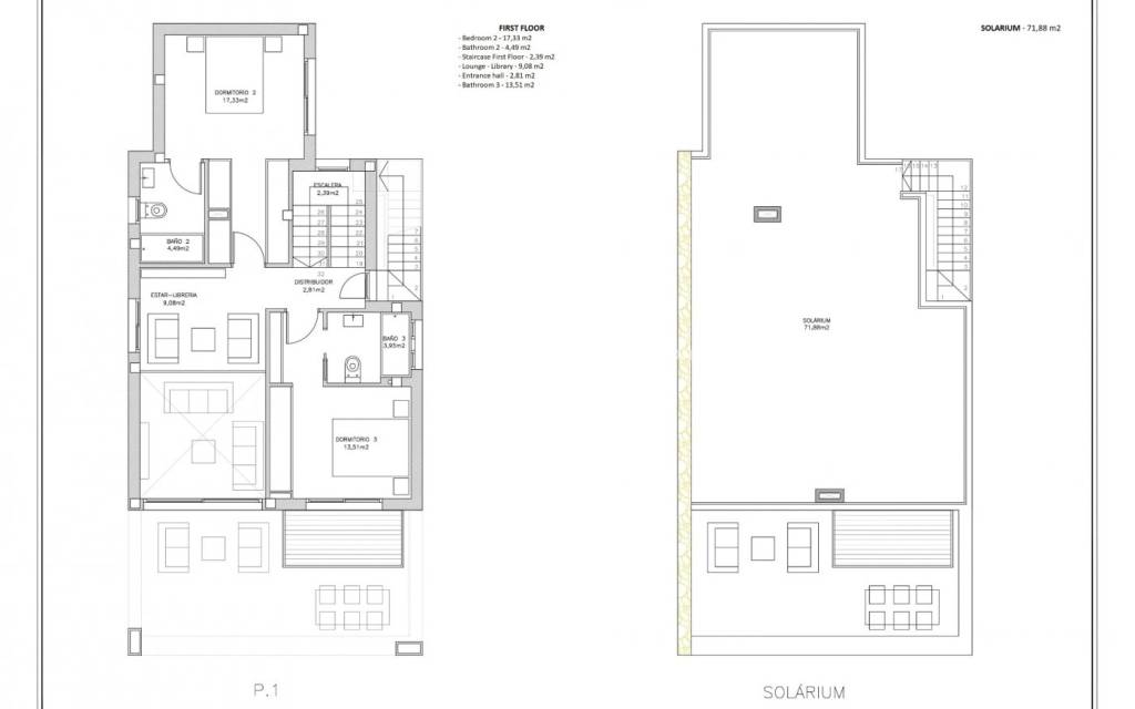
Double Bedrooms: 4
Parking - Space
Location: Coastal
Useable Build Space: 180 Msq.
Terrace: 102 Msq.
Storage / Trastero
Nennleistung
Energieeffizienzklasse B

2 NEU GEBAUTE VILLEN IN TORREVIEJA 2 neue schöne Villen in Torrevieja. Villen hat 4 Schlafzimmer, 4 Bäder, offene Küche mit dem Wohnbereich, Einbauschränke, privater Garten mit dem Pool und Off-Road-Parkplatz, private Sonnenterrasse und Keller. Villas befindet sich 15 Minuten zu Fuß zum berühmten Playa de La Mata (5 Minuten mit dem Auto). Torrevieja ist eine spanische Stadt in der Provinz Alicante, an der Costa Blanca. Sie ist für ihr typisch mediterranes Klima und ihre Küstenlinie bekannt. Entlang der Sandstrände gibt es Strandpromenaden mit Ferienanlagen. Das kleine Museum des Meeres und des Salzes beherbergt Ausstellungen über die Geschichte der Fischerei und des Salzes in der Stadt. Im Landesinneren befindet sich der Naturpark Lagunas de La Mata-Torrevieja mit Wanderwegen und zwei salzhaltigen Lagunen, von denen eine rosa und die andere grün ist. Der Flughafen Alicante ist 40 Minuten und der Flughafen Murcia etwa 1 Stunde entfernt.

Diese hier angegebenen Informationen unterliegen Fehlern und sind nicht Bestandteil eines Vertrages. Das Angebot kann ohne vorherige Ankündigung geändert oder zurückgezogen werden. Die Preise beinhalten keine Einkaufskosten.

Berechnen Hypotheken

Geldwechsel

  • Pfund: 651.023 GBP
  • Russischen Rubel: 651.023 RUB
  • Schweizerfranken: 689.925 CHF
  • Chinesischen Yuan: 6.005.025 CNY
  • Dollar: 878.400 USD
  • Schwedische Krone: 8.115.000 SEK
  • Die norwegische Krone: 8.214.375 NOK

Nach Informationen fragen

Responsable del tratamiento: , Finalidad del tratamiento: Gestión y control de los servicios ofrecidos a través de la página Web de Servicios inmobiliarios, Envío de información a traves de newsletter y otros, Legitimación: Por consentimiento, Destinatarios: No se cederan los datos, salvo para elaborar contabilidad, Derechos de las personas interesadas: Acceder, rectificar y suprimir los datos, solicitar la portabilidad de los mismos, oponerse altratamiento y solicitar la limitación de éste, Procedencia de los datos: El Propio interesado, Información Adicional: Puede consultarse la información adicional y detallada sobre protección de datos Aquí.
WhatsApp
ONLINE VIEWINGS