Fuente Alamo · Murcia, Costa Cálida REF: NB-24584 · Villa

242.000€
Schlafzimmer: 2
Das Badezimmer: 1
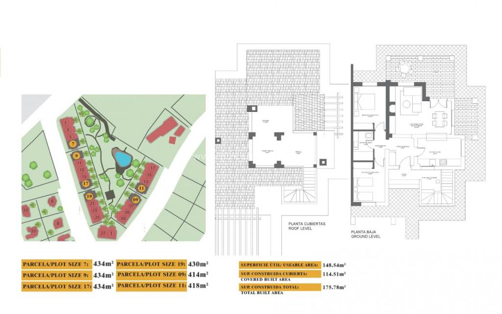
Gebaut: 175m2
Grundstück: 430m2
Nennleistung: B
Garten
Key ready
Mit einem Gatter versehen
Anzahl der Parkplätze: 1
Location: Rural, Urbanisation
Klimaanlage: Vorinstalliert
Double Bedrooms: 2
Parking - Space
Terrace: 45 Msq.
Beach: 7500 Meters
Useable Build Space: 148 Msq.
Storage / Trastero
Nennleistung
Energieeffizienzklasse B

SCHLÜSSELFERTIGE HALB-FREISTEHENDE VILLA IN FUENTE ALAMO, MURCIA Wohnanlage mit Reihenhäusern, freistehenden Villen und Doppelhaushälften in Fuente Álamo, Murcia. Es gibt sieben verschiedene Modelle von Häusern zur Auswahl, die für jeden Geschmack geeignet sind. Rustikales Design, kombiniert mit hochwertigen Materialien und einem Schwerpunkt auf komfortablem Wohnraum, bietet für jeden etwas. Die Bewohner dieser privaten Wohnanlage mit schönen, geräumigen Häusern können auch ihre eigenen Gemeinschaftsgärten und Swimmingpools genießen. Diese ungewöhnlich gestaltete Doppelhaushälfte verfügt über 2 Schlafzimmer und 1 Badezimmer, eine separate Küche, ein Wohnzimmer mit Terrassentüren, die auf die überdachte Veranda und die halb überdachte Dachterrasse führen. Ein privater Pool ist gegen Aufpreis möglich. Fuente Álamo de Murcia ist eine Stadt und Gemeinde in der Region Murcia, Südspanien. Sie befindet sich 22 km nordwestlich von Cartagena und 35 km südwestlich von Murcia. Die Stadt liegt im Becken des Mar Menor, umgeben von den Bergen Algarrobo, Los Gómez, Los Victorias und dem Carrascoy. Das Wasser aus diesen Bergen fließt in die Rambla de Fuente Álamo und von dort in das Mar Menor. Fuente Álamo liegt 30 Minuten vom Flughafen Murcia - Corvera entfernt.

Diese hier angegebenen Informationen unterliegen Fehlern und sind nicht Bestandteil eines Vertrages. Das Angebot kann ohne vorherige Ankündigung geändert oder zurückgezogen werden. Die Preise beinhalten keine Einkaufskosten.

Berechnen Hypotheken

Geldwechsel

  • Pfund: 210.063 GBP
  • Russischen Rubel: 210.063 RUB
  • Schweizerfranken: 222.616 CHF
  • Chinesischen Yuan: 1.937.621 CNY
  • Dollar: 283.430 USD
  • Schwedische Krone: 2.618.440 SEK
  • Die norwegische Krone: 2.650.505 NOK

Nach Informationen fragen

Responsable del tratamiento: , Finalidad del tratamiento: Gestión y control de los servicios ofrecidos a través de la página Web de Servicios inmobiliarios, Envío de información a traves de newsletter y otros, Legitimación: Por consentimiento, Destinatarios: No se cederan los datos, salvo para elaborar contabilidad, Derechos de las personas interesadas: Acceder, rectificar y suprimir los datos, solicitar la portabilidad de los mismos, oponerse altratamiento y solicitar la limitación de éste, Procedencia de los datos: El Propio interesado, Información Adicional: Puede consultarse la información adicional y detallada sobre protección de datos Aquí.
WhatsApp
ONLINE VIEWINGS