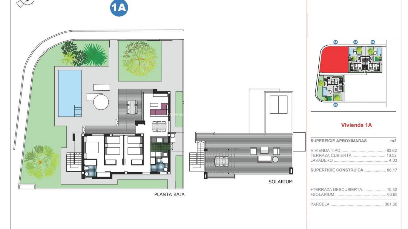
NEUBAU-VILLEN IN ELS POBLETS In der Neubausiedlung werden 4 prächtige Häuser mit Garten, privatem Parkplatz und der Möglichkeit eines privaten Swimmingpools entstehen. In einer unschlagbaren Lage neben dem Stadtzentrum, Einkaufszentrum und alle Arten von Dienstleistungen, drei Schlafzimmer, zwei Bäder Häuser mit Garten und Solarium gebaut werden. Die Neubauvillen erstrecken sich über eine Etage und verfügen über 3 Schlafzimmer, 2 Bäder, eine offene Küche mit Wohnbereich, Einbauschränke, einen privaten Garten mit Stellplatz abseits der Straße und eine private Sonnenterrasse. Eine Option für einen privaten Pool zu einem Aufpreis. Merkmale: -Eingebaute gefütterte Kleiderschränke, verteilt mit Hängestange, Schubladen und LED-Innenbeleuchtung. -Installation von linearen LED-Beleuchtung im ganzen Haus. -Installation von Klimaanlagen im Wohnzimmer und in den Schlafzimmern (einschließlich der Maschine). USB-Ladegeräte in den Schlafzimmern. Installation von einzelnen Photovoltaik-Paneelen ohne Batterie auf dem Dach gemäß den Vorschriften. -Vorinstallation eines Ladegeräts für Elektroautos. -Struktur aus verstärktem Beton. -Fassade mit einlagiger Beschichtung. PVC-Außentischlerei mit thermischer Trennung, Doppelverglasung mit Luftkammer vom Typ ¨Climalit¨ und niedrigem Emissionsgrad. -Gepanzerte Eingangstür. -Innenfußboden aus Porzellan oder ähnlichem, die Sockelleiste wird passend zum Innenausbau lackiert. -Vertikale Wände der Bäder und Toiletten aus Porzellan oder ähnlichem. -Die Wände werden mit glatter Kunststofffarbe gestrichen. -Küche mit hohen und niedrigen Schränken, Arbeitsplatte aus Silestone oder ähnlichem, ausgestattet mit Induktionskochfeld mit integriertem Lüftungssystem und Elektrobackofen. -Sanitäranlagen aus verglastem Porzellan mit eingebautem Spülkasten. -Flache Duschwannen aus Harz mit Duschabtrennungen. - Waschbecken mit Schrank und Spiegel mit eingebauter LED-Beleuchtung in allen Bädern und Toiletten. -Mischbatterien. -Innentüren weiß lackiert. Els Poblets befindet sich zwischen Alicante und Valencia, 1 Stunde von beiden Flughäfen entfernt. Els Poblets befindet sich in einer Ebene, die von Schwemmland des Flusses Girona gebildet wird. Es erstreckt sich über einen 1 km langen Küstenstreifen am Mittelmeer, an dem sich auch der Strand von Almadrava befindet. An der Grenze zu Denia und El Verger gibt es 24 km wunderschöne BLUE FLAG-Strände, aus denen man wählen kann. Die Stadt und der Strand sind etwa 1 km voneinander entfernt. Während viele spanische Küstenstädte im Winter geschlossen sind, ist Els Poblets das ganze Jahr über geöffnet und verfügt über alle Annehmlichkeiten wie Bars, Banken, Geschäfte, Restaurants, Supermärkte, Friseure und ist eine freundliche Stadt mit gemischten Nationalitäten, hauptsächlich Spanier mit einigen Ex-Paten.
Diese hier angegebenen Informationen unterliegen Fehlern und sind nicht Bestandteil eines Vertrages. Das Angebot kann ohne vorherige Ankündigung geändert oder zurückgezogen werden. Die Preise beinhalten keine Einkaufskosten.