Benissa · Alicante, Costa Blanca REF: NB-51084 · Villa

2.850.000€
Schlafzimmer: 4
Das Badezimmer: 3
Gebaut: 342m2
Grundstück: 800m2
Nennleistung: B
Terrace: 157 Msq.
Storage / Trastero
Toilet: 1
Garten
Privater Pool
Gym
Solarium: Yes
Mit einem Gatter versehen
Views: Sea
Near Trees
In der Nähe von Schulen
In der Nähe des Einkaufszentrums
Standort: Küste, Urbanisierung
Under-Build / Basement
Number of Parking Spaces: 2
Double Bedrooms: 4
Parking - Space
Beach: 150 Meters
Useable Build Space: 290 Msq.
Nennleistung
Energieeffizienzklasse B

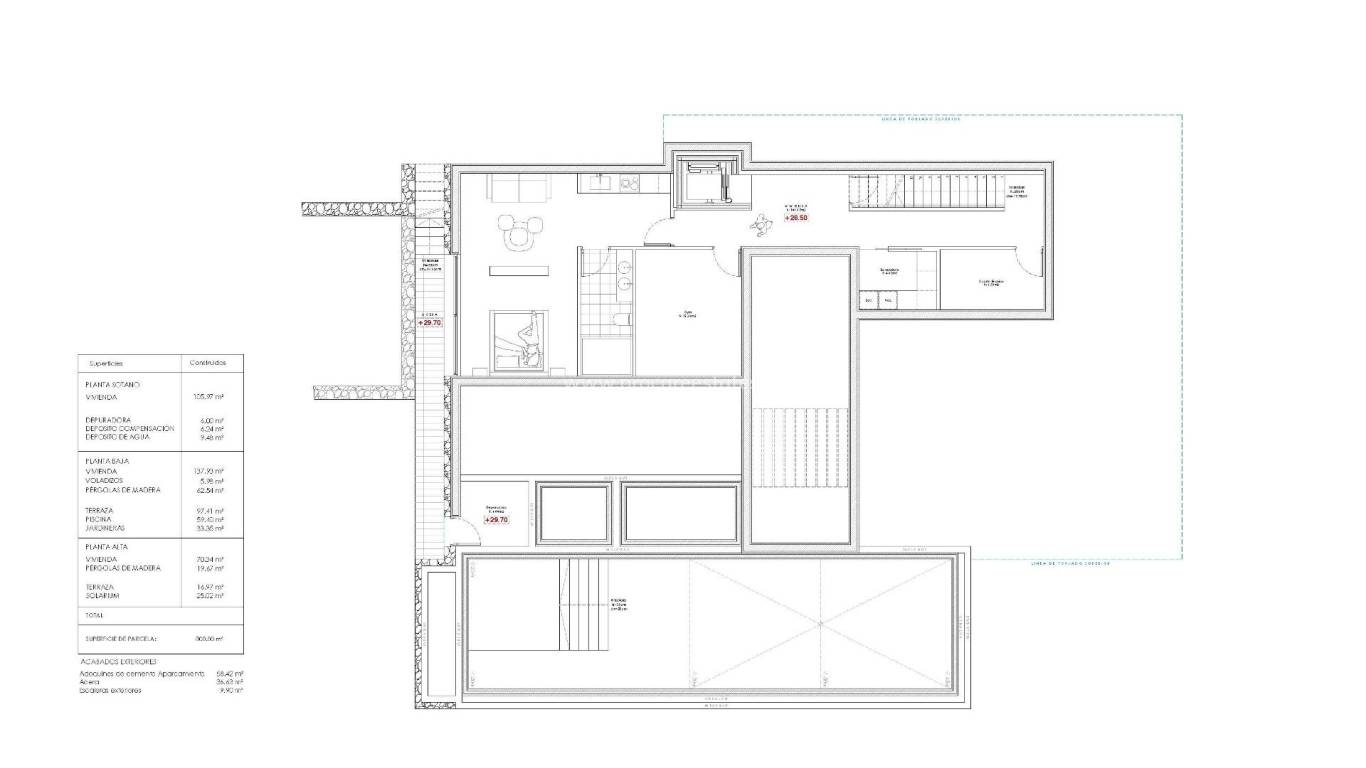
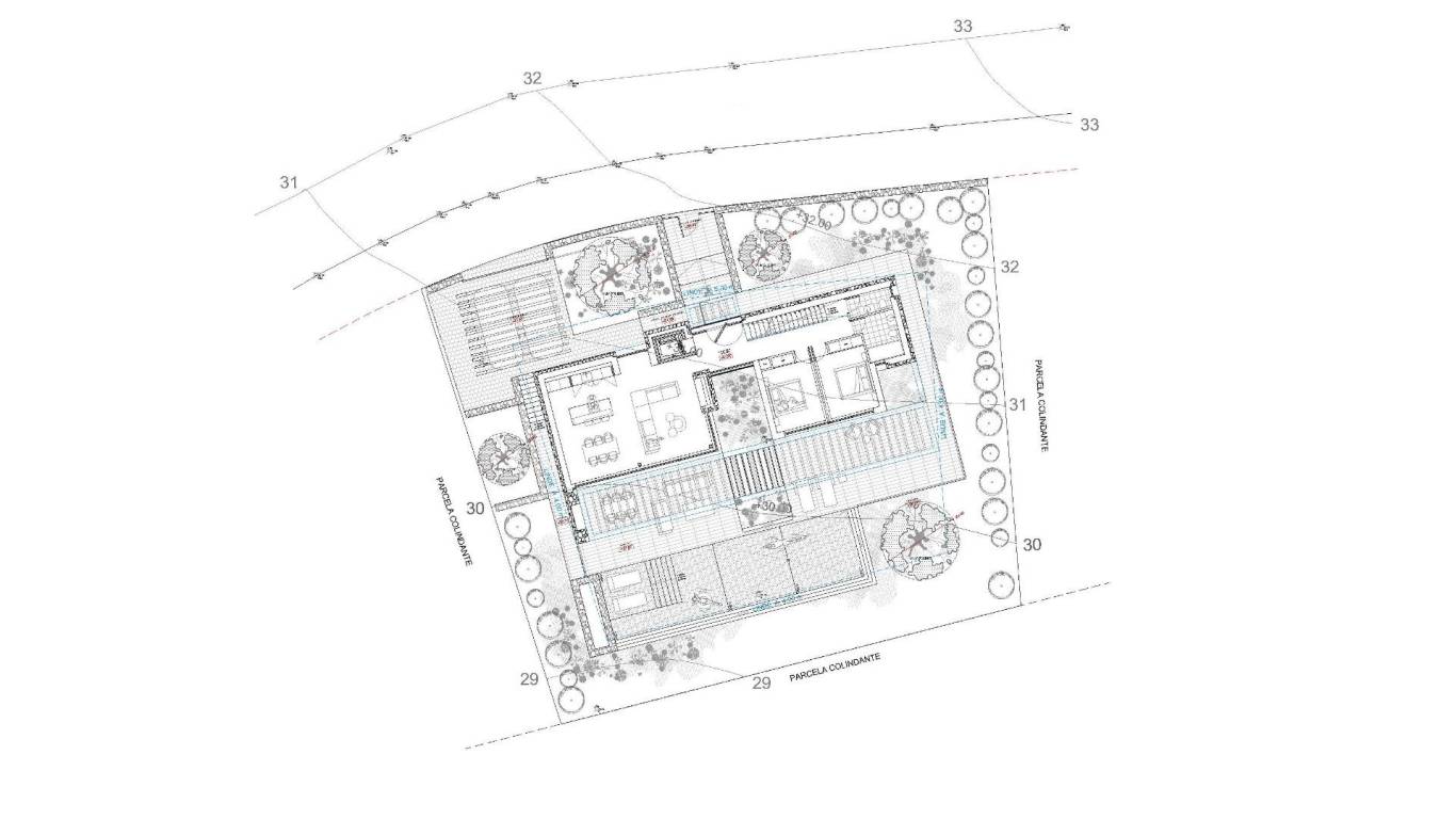
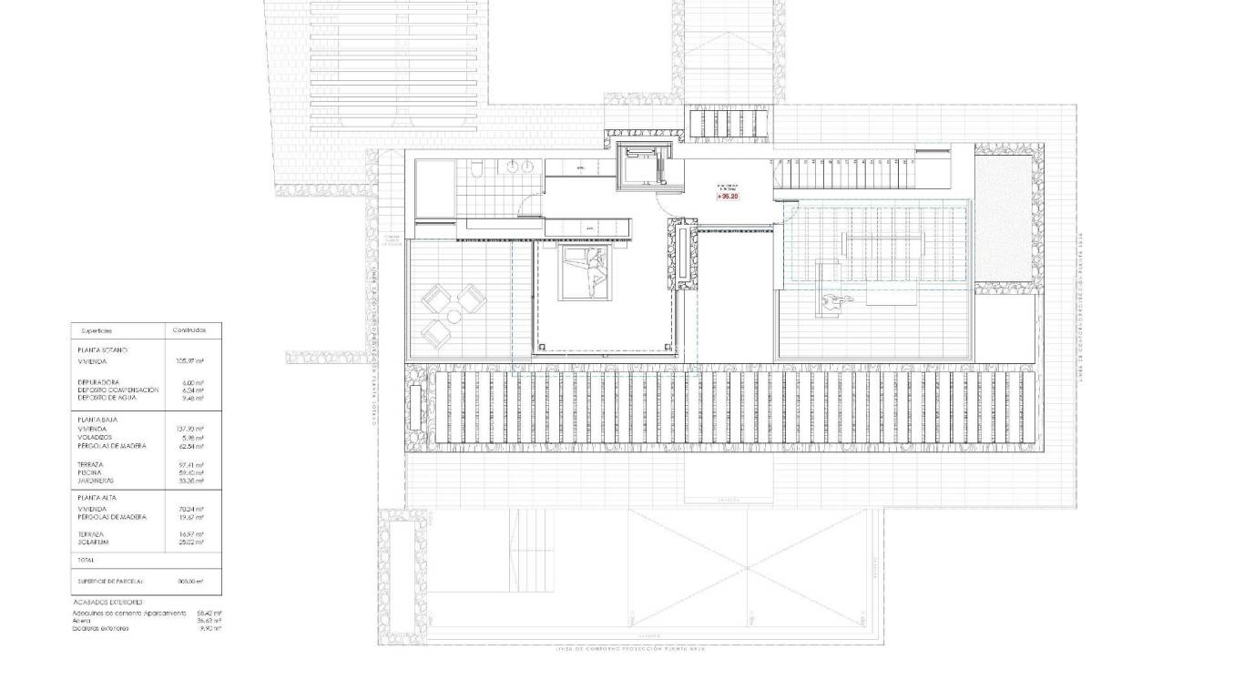
Moderne Villa mit Panoramablick auf das Meer in La Fustera, Benissa Costa Diese exklusive Neubauvilla, die von einem renommierten Architekten entworfen und von einem lokalen Bauträger mit mehr als 20 Jahren Erfahrung entwickelt wurde, befindet sich auf einem 800 m² großen Grundstück, nur wenige Schritte vom Strand La Fustera entfernt. Die Architektur verbindet mediterrane Wärme mit zeitgenössischer Eleganz und kombiniert Naturstein, Holz und sanfte, neutrale Farbtöne, die sich nahtlos in die Küstenlandschaft einfügen. Mit einer Gesamtfläche von 716 m², verteilt auf drei Ebenen – Untergeschoss, Erdgeschoss und erster Stock – bietet die Villa eine perfekte Balance zwischen Funktionalität, Design und Komfort. Untergeschoss Die untere Etage mit 105,97 m² ist sowohl auf Praktikabilität als auch auf Freizeitgestaltung ausgelegt. Sie umfasst einen voll ausgestatteten Fitnessraum, eine Waschküche und Technikräume, mit der Möglichkeit, zusätzliche Räume als Weinkeller, Kino oder Mehrzweckraum zu nutzen. Auf dieser Ebene befinden sich auch das Filtersystem und die Wassertanks des Pools, wodurch eine effiziente Verwaltung aller technischen Anlagen gewährleistet ist. Erdgeschoss Die Hauptetage mit 137,93 m² präsentiert sich in einem hellen, offenen Grundriss, der die Essenz des mediterranen Lebens einfängt. Das geräumige Wohnzimmer, der Essbereich und die Küche öffnen sich durch große, vom Boden bis zur Decke reichende Fenster zur Hauptterrasse und zum Infinity-Pool und rahmen den unglaublichen Panoramablick auf das Meer ein, der den Charakter dieses Hauses ausmacht. Zwei Doppelschlafzimmer, ein komplettes Badezimmer und eine Gästetoilette vervollständigen diese Etage und bieten Komfort und Funktionalität. Im Außenbereich spendet eine Holzpergola Schatten für den Lounge- und Essbereich, der von üppigen Gärten, Sonnenterrassen und einem 59,40 m² großen Infinity-Pool umgeben ist, der optisch mit dem Meer verschmilzt. Erste Etage Die obere Etage mit 70,19 m² ist für die Master-Suite reserviert – ein privater Rückzugsort mit begehbarem Kleiderschrank, eigenem Bad und einer großen privaten Terrasse mit atemberaubendem Blick auf das Mittelmeer. Ein zweites Schlafzimmer oder ein Büro vervollständigen diese Etage, die auch Zugang zu einem 25,02 m² großen Solarium bietet, ideal zum Entspannen unter der Sonne und zum Genießen der Ruhe der Umgebung. Außenbereich und Lage Diese Immobilie befindet sich in einer ruhigen Wohnstraße, umgeben von modernen Villen, und genießt eine außergewöhnliche Lage, nur 3 Gehminuten vom Strand La Fustera (150 m), der Mandala Beach Bar & Restaurant und wichtigen Annehmlichkeiten wie Supermärkten und lokalen Dienstleistungen entfernt. Diese Villa wurde mit Schwerpunkt auf Licht, Raum und nahtlosem Übergang zwischen Innen- und Außenbereich entworfen und verkörpert den modernen mediterranen Lebensstil – elegant, entspannt und in perfekter Harmonie mit dem spektakulären Panoramablick auf das Meer. Sichern Sie sich Ihre Traumvilla in La Fustera, Benissa Costa, und genießen Sie den ultimativen mediterranen Lebensstil mit atemberaubendem Meerblick und unvergleichlichem Komfort.

Diese hier angegebenen Informationen unterliegen Fehlern und sind nicht Bestandteil eines Vertrages. Das Angebot kann ohne vorherige Ankündigung geändert oder zurückgezogen werden. Die Preise beinhalten keine Einkaufskosten.

Berechnen Hypotheken

Geldwechsel

  • Pfund: 2.473.886 GBP
  • Russischen Rubel: 2.473.886 RUB
  • Schweizerfranken: 2.621.715 CHF
  • Chinesischen Yuan: 22.819.095 CNY
  • Dollar: 3.337.920 USD
  • Schwedische Krone: 30.837.000 SEK
  • Die norwegische Krone: 31.214.625 NOK

Nach Informationen fragen

Responsable del tratamiento: , Finalidad del tratamiento: Gestión y control de los servicios ofrecidos a través de la página Web de Servicios inmobiliarios, Envío de información a traves de newsletter y otros, Legitimación: Por consentimiento, Destinatarios: No se cederan los datos, salvo para elaborar contabilidad, Derechos de las personas interesadas: Acceder, rectificar y suprimir los datos, solicitar la portabilidad de los mismos, oponerse altratamiento y solicitar la limitación de éste, Procedencia de los datos: El Propio interesado, Información Adicional: Puede consultarse la información adicional y detallada sobre protección de datos Aquí.
WhatsApp
ONLINE VIEWINGS