Puerto de mazarron · Murcia, Costa Cálida REF: NBS-24476 · Wohnung

221.000€
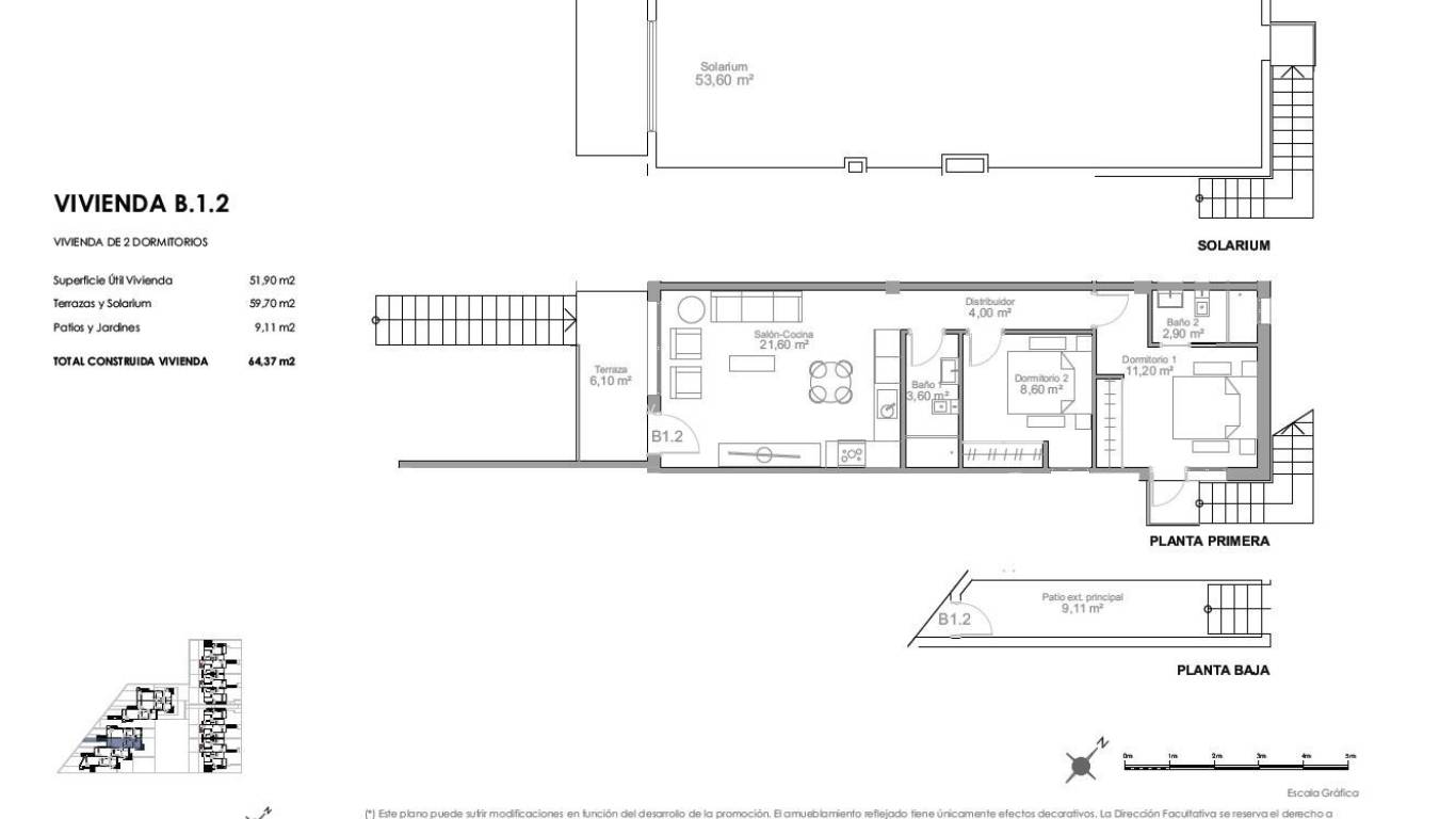
Schlafzimmer: 2
Das Badezimmer: 2
Gebaut: 64m2
Grundstück: 9m2
Nennleistung: B
Mit einem Gatter versehen
Views: Sea
In der Nähe von Schulen
In der Nähe des Einkaufszentrums
Standort: Küste, Urbanisierung
Anzahl der Parkplätze: 1
Klimaanlage: Vorinstalliert
Double Bedrooms: 2
Parking - Space
Terrace: 59 Msq.
Beach: 200 Meters
Useable Build Space: 51 Msq.
Garten
Solarium: Yes
Nennleistung
Energieeffizienzklasse B

Neubauwohnungen nur 200 Meter vom Strand in Puerto de Mazarrón entfernt Exklusives Wohnen an der Küste der Costa Cálida Wir präsentieren Ihnen eine neue Wohnanlage mit modernen Wohnungen in Puerto de Mazarrón, nur 200 Meter vom wunderschönen Strand Playa Negra entfernt. Dieses Projekt befindet sich in einer der begehrtesten Küstenregionen der Region Murcia und bietet eine außergewöhnliche Gelegenheit, das mediterrane Leben in der Nähe des Meeres, wichtiger Annehmlichkeiten und der Natur zu genießen. Puerto de Mazarrón ist bekannt für seine atemberaubenden Strände, das kristallklare Wasser, den charmanten Yachthafen und die entspannte Atmosphäre. Mit exzellenten Dienstleistungen, Freizeitmöglichkeiten im Freien und einem ganzjährig warmen Klima ist es ein ideales Ziel sowohl für den dauerhaften Wohnsitz als auch für Urlaubsreisen. Modernes Design und funktionale Grundrisse Diese exklusive Wohnanlage besteht aus 30 modernen Häusern mit 2 Schlafzimmern und 1 oder 2 Badezimmern, die sorgfältig entworfen wurden, um Komfort, Stil und Effizienz zu bieten. Der niedrige Komplex umfasst Wohnungen im Erdgeschoss mit privaten Terrassen und Gärten sowie Wohnungen im ersten Stock mit Terrassen und privaten Dachterrassen. Die Häuser verfügen über private Parkplätze entweder auf dem Grundstück oder innerhalb der Wohnanlage. Die Wohnungen sind so ausgerichtet, dass sie möglichst viel Tageslicht erhalten, und verfügen über offene Wohnbereiche, große Fenster und eine hochwertige Ausstattung. In der ersten Phase werden individuell gestaltbare Wohnungen mit funktionalen Grundrissen angeboten, die an Ihre Lebensgewohnheiten angepasst werden können. Die Wohnungen im Erdgeschoss verfügen über einen privaten Garten, eine hintere Terrasse und einen Parkplatz auf dem Grundstück oder einen Gemeinschaftsparkplatz. Die Wohnungen im obersten Stockwerk bieten einen privaten Zugangsbereich im Erdgeschoss, eine Terrasse im ersten Stock und eine Dachterrasse sowie einen zugewiesenen Parkplatz. Zu den optionalen Extras gehören private Pools auf den Terrassen im Erdgeschoss oder Whirlpools auf den Dachterrassen. Hochwertige Ausstattung Jede Immobilie umfasst Verstärkte Eingangstür Vorinstallation für Klimaanlage Komplette Badezimmer mit Möbeln, Spiegeln und Duschwänden Außenbereiche für Grillabende, Pergolen und Chill-out-Bereiche Diese Wohnanlage bietet eine sichere, familienfreundliche und etablierte Umgebung, nur wenige Gehminuten von Supermärkten, Schulen, medizinischen Einrichtungen, Parks und dem Strand entfernt. Erstklassige Lage in Puerto de Mazarrón Entfernungen zu wichtigen Sehenswürdigkeiten Playa Negra 0,2 km Yachthafen von Mazarrón 2 km Einkaufszentrum Mazarrón Park 5 km Cartagena 35 km Murcia Stadt 70 km Flughafen Murcia Corvera 45 km Golfplätze Camposol und Hacienda del Álamo 25–35 km Genießen Sie Wassersport, Wandern und Radfahren in der nahe gelegenen Sierra de las Moreras und entdecken Sie das Beste, was der Lebensstil an der Costa Cálida zu bieten hat. Machen Sie das Mittelmeer zu Ihrem Zuhause Verpassen Sie nicht die Gelegenheit, sich eine Neubauimmobilie nur wenige Schritte vom Strand in Puerto de Mazarrón zu sichern. Kontaktieren Sie uns noch heute für Verfügbarkeit, Details und Besichtigungstermine. 263

Diese hier angegebenen Informationen unterliegen Fehlern und sind nicht Bestandteil eines Vertrages. Das Angebot kann ohne vorherige Ankündigung geändert oder zurückgezogen werden. Die Preise beinhalten keine Einkaufskosten.

Berechnen Hypotheken

Geldwechsel

  • Pfund: 191.835 GBP
  • Russischen Rubel: 191.835 RUB
  • Schweizerfranken: 203.298 CHF
  • Chinesischen Yuan: 1.769.481 CNY
  • Dollar: 258.835 USD
  • Schwedische Krone: 2.391.220 SEK
  • Die norwegische Krone: 2.420.503 NOK

Nach Informationen fragen

Responsable del tratamiento: , Finalidad del tratamiento: Gestión y control de los servicios ofrecidos a través de la página Web de Servicios inmobiliarios, Envío de información a traves de newsletter y otros, Legitimación: Por consentimiento, Destinatarios: No se cederan los datos, salvo para elaborar contabilidad, Derechos de las personas interesadas: Acceder, rectificar y suprimir los datos, solicitar la portabilidad de los mismos, oponerse altratamiento y solicitar la limitación de éste, Procedencia de los datos: El Propio interesado, Información Adicional: Puede consultarse la información adicional y detallada sobre protección de datos Aquí.
WhatsApp
ONLINE VIEWINGS