Torrevieja · Alicante, Costa Blanca REF: NB-38784 · Wohnung

290.000€
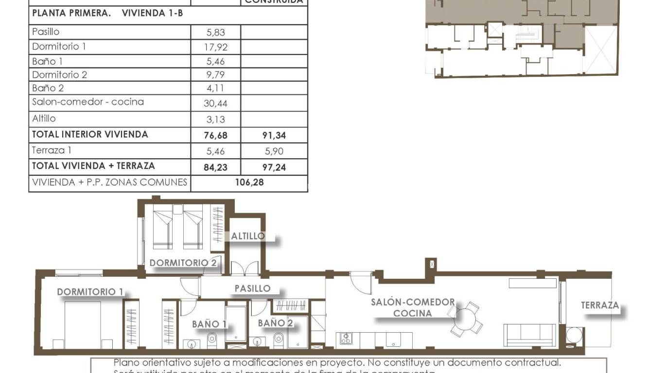
Schlafzimmer: 2
Das Badezimmer: 2
Gebaut: 91m2
Nennleistung: B
Gemeinschaftspool
Elevator/Lift
Mit einem Gatter versehen
Space
In der Nähe von Schulen
Near Childrens Parks
In der Nähe des Einkaufszentrums
Klimaanlage: Vorinstalliert
Double Bedrooms: 2
Useable Build Space: 76 Msq.
Beach: 150 Meters
Location: Coastal
Terrace: 5 Msq.
Nennleistung
Energieeffizienzklasse B

Moderne Neubauwohnungen im Herzen von Torrevieja Erstklassige Lage nur 150 m vom Meer entfernt Diese außergewöhnliche Neubauanlage befindet sich im Zentrum von Torrevieja, nur 150 m von den natürlichen Schwimmbädern und der Strandpromenade und nur 500 m vom Strand Playa del Cura entfernt. Umgeben von einem umfangreichen Angebot an Dienstleistungen wie Geschäften, Supermärkten, Parks, Cafés und Restaurants bietet die Gegend alles, was Sie brauchen, in nur wenigen Gehminuten. Die Kombination aus urbaner Annehmlichkeit und Küstenruhe macht sie zu einer der attraktivsten Wohngegenden der Stadt. Moderne Apartments mit 1 und 2 Schlafzimmern Die Wohnanlage bietet moderne Apartments mit 1 oder 2 Schlafzimmern und 1 oder 2 Badezimmern, darunter zwei exklusive Penthäuser mit privatem Solarium, Grill und privatem Pool. Alle Wohnungen sind offen gestaltet, um das natürliche Licht optimal zu nutzen, und verfügen über großzügige Terrassen und stilvolle Küchen im amerikanischen Stil. Jedes Apartment verfügt über eine voll ausgestattete Küche mit Geräten, komplette Badezimmer mit Möbeln, Duschwänden und Fußbodenheizung sowie Innenbeleuchtung. Außerdem ist eine Vorinstallation für eine Klimaanlage vorhanden, die das ganze Jahr über für Komfort sorgt. Attraktive Gemeinschaftsbereiche zum Entspannen Die Bewohner können hervorragende Gemeinschaftseinrichtungen genießen, die für Wohlbefinden und Freizeitgestaltung konzipiert sind. Im Erdgeschoss befinden sich ein erfrischender Gemeinschaftspool und eine entspannende Sauna. Die Dachterrasse bietet ein gemeinschaftliches Solarium, das ideal zum Sonnenbaden und Genießen der mediterranen Atmosphäre ist. Genießen Sie eine einzigartige Küsten- und Naturlandschaft Torrevieja ist bekannt für sein mildes mediterranes Klima mit einer durchschnittlichen Jahrestemperatur von 20 ºC, ideal für das ganze Jahr über. Die Stadt beherbergt die berühmten Salzseen und den geschützten Naturpark La Mata und Torrevieja, der nur 4 km von der Anlage entfernt liegt. Mit seinen lebhaften rosa und grünen Lagunen, malerischen Wanderwegen und einer vielfältigen Tierwelt bietet er eine gesunde und inspirierende Naturkulisse. Entfernungen zu wichtigen Sehenswürdigkeiten Puerto Deportivo de Torrevieja 1 km Parque Natural de La Mata 4 km Villamartin Golf 8 km Flughafen Alicante 45 km Flughafen Murcia 60 km Leben Sie den mediterranen Lebensstil Sichern Sie sich Ihr modernes Zuhause in einer der begehrtesten Küstenstädte der Costa Blanca. Kontaktieren Sie uns noch heute, um einen Besichtigungstermin zu vereinbaren und Ihren Platz in dieser herausragenden neuen Wohnanlage zu reservieren.

Diese hier angegebenen Informationen unterliegen Fehlern und sind nicht Bestandteil eines Vertrages. Das Angebot kann ohne vorherige Ankündigung geändert oder zurückgezogen werden. Die Preise beinhalten keine Einkaufskosten.

Berechnen Hypotheken

Geldwechsel

  • Pfund: 251.729 GBP
  • Russischen Rubel: 251.729 RUB
  • Schweizerfranken: 266.771 CHF
  • Chinesischen Yuan: 2.321.943 CNY
  • Dollar: 339.648 USD
  • Schwedische Krone: 3.137.800 SEK
  • Die norwegische Krone: 3.176.225 NOK

Nach Informationen fragen

Responsable del tratamiento: , Finalidad del tratamiento: Gestión y control de los servicios ofrecidos a través de la página Web de Servicios inmobiliarios, Envío de información a traves de newsletter y otros, Legitimación: Por consentimiento, Destinatarios: No se cederan los datos, salvo para elaborar contabilidad, Derechos de las personas interesadas: Acceder, rectificar y suprimir los datos, solicitar la portabilidad de los mismos, oponerse altratamiento y solicitar la limitación de éste, Procedencia de los datos: El Propio interesado, Información Adicional: Puede consultarse la información adicional y detallada sobre protección de datos Aquí.
WhatsApp
ONLINE VIEWINGS