Villajoyosa · Alicante, Costa Blanca REF: NB-51814 · Penthouse

730.000€
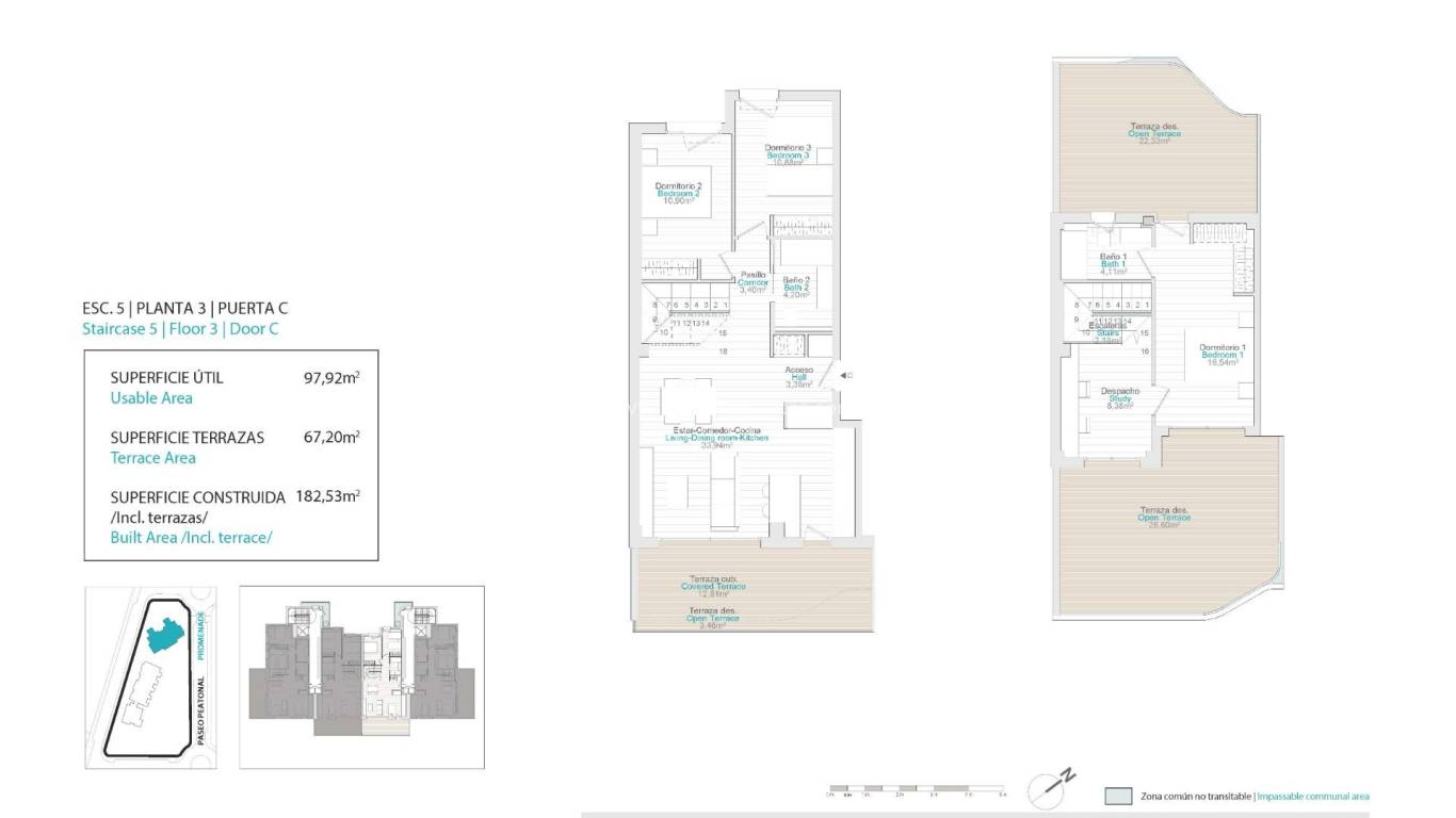
Schlafzimmer: 3
Das Badezimmer: 2
Gebaut: 115m2
Nennleistung: B
Gemeinschaftspool
Gym
Solarium: Yes
Elevator/Lift
Mit einem Gatter versehen
Views: Sea
In der Nähe von Schulen
In der Nähe des Einkaufszentrums
Standort: Küste, Urbanisierung
Doppelzimmer: 3
Anzahl der Parkplätze: 1
Klimaanlage: Vorinstalliert
Parking - Space
Useable Build Space: 97 Msq.
Terrace: 66 Msq.
Beach: 200 Meters
Nennleistung
Energieeffizienzklasse B

NEUBAU-KOMPLEX IN VILLAYOJOSA Neue Wohnanlage mit 42 Wohnungen und Penthäusern in Villayojosa, nur wenige Schritte vom Strand entfernt. Luxus-Immobilien mit 1, 2 und 3-Schlafzimmern bis ins kleinste Detail konzipiert. Nur 200 Meter vom Meer entfernt, mit geräumigen Terrassen sind perfekt zum Entspannen und genießen Sie den Blick aufs Meer. Das Hotel liegt in einer natürlichen Umgebung, diese Förderung hat einen Swimmingpool, Gärten, Kinderbereich, ausgestattet Fitnessraum und Sauna. Wohnungen im Erdgeschoss mit 1 Schlafzimmer und 1 Badezimmer mit Terrassen und privatem Garten. Wohnungen mit 1 und 2 Schlafzimmern und 1 und 2 Badezimmern mit großen Terrassen, die über einen überdachten und einen offenen Bereich verfügen. Penthäuser mit 3 Schlafzimmern und 2 Bädern mit Terrassen und privaten Solarien. Alle Immobilien haben einen privaten Parkplatz. Villajoyosa ist eine versteckte Perle an der spanischen Costa Blanca. Das bunte Fischerdorf liegt zwischen Benidorm und El Campello, etwa 30 Autominuten vom Flughafen Alicante entfernt. In den letzten Jahren hat sich der idyllische Ort zu einem begehrten Standort für Zweitwohnsitzler und Touristen entwickelt. Villajoyosa hat viel zu bieten, vom breiten Sandstrand bis zu den engen und farbenfrohen Gassen des historischen Ortskerns. Heute leben mehr als dreißigtausend Menschen in Villajoyosa, und vor allem die farbenfrohen Häuser bieten den vielen Künstlern eine Menge Inspiration. Villajoyosa ist auch für das köstliche Museum der Schokoladenfabrik Valor bekannt.

Diese hier angegebenen Informationen unterliegen Fehlern und sind nicht Bestandteil eines Vertrages. Das Angebot kann ohne vorherige Ankündigung geändert oder zurückgezogen werden. Die Preise beinhalten keine Einkaufskosten.

Berechnen Hypotheken

Geldwechsel

  • Pfund: 633.662 GBP
  • Russischen Rubel: 633.662 RUB
  • Schweizerfranken: 671.527 CHF
  • Chinesischen Yuan: 5.844.891 CNY
  • Dollar: 854.976 USD
  • Schwedische Krone: 7.898.600 SEK
  • Die norwegische Krone: 7.995.325 NOK

Nach Informationen fragen

Responsable del tratamiento: , Finalidad del tratamiento: Gestión y control de los servicios ofrecidos a través de la página Web de Servicios inmobiliarios, Envío de información a traves de newsletter y otros, Legitimación: Por consentimiento, Destinatarios: No se cederan los datos, salvo para elaborar contabilidad, Derechos de las personas interesadas: Acceder, rectificar y suprimir los datos, solicitar la portabilidad de los mismos, oponerse altratamiento y solicitar la limitación de éste, Procedencia de los datos: El Propio interesado, Información Adicional: Puede consultarse la información adicional y detallada sobre protección de datos Aquí.
WhatsApp
ONLINE VIEWINGS