Orihuela Costa · Alicante, Costa Blanca REF: M-72104 · Stadthaus

350.000€
Schlafzimmer: 5
Das Badezimmer: 3
Gebaut: 161m2
Grundstück: 306m2
Nennleistung: E
Light
Water
Appliances
Wardrobes cupboard
Auto Irrigation.
Solarium
Terrasse
Barbecue
Furniture
Residencial
Garten
Parking
Heating
Alarm
Balcon
Community Pool
Air-Conditioning
Pool Own
porch
Storeroom
Nennleistung
Energieeffizienzklasse E

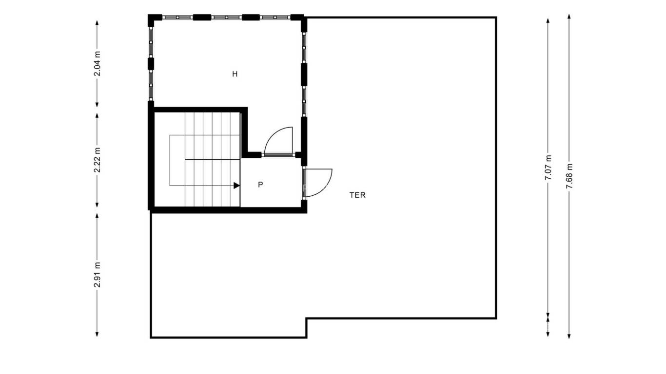
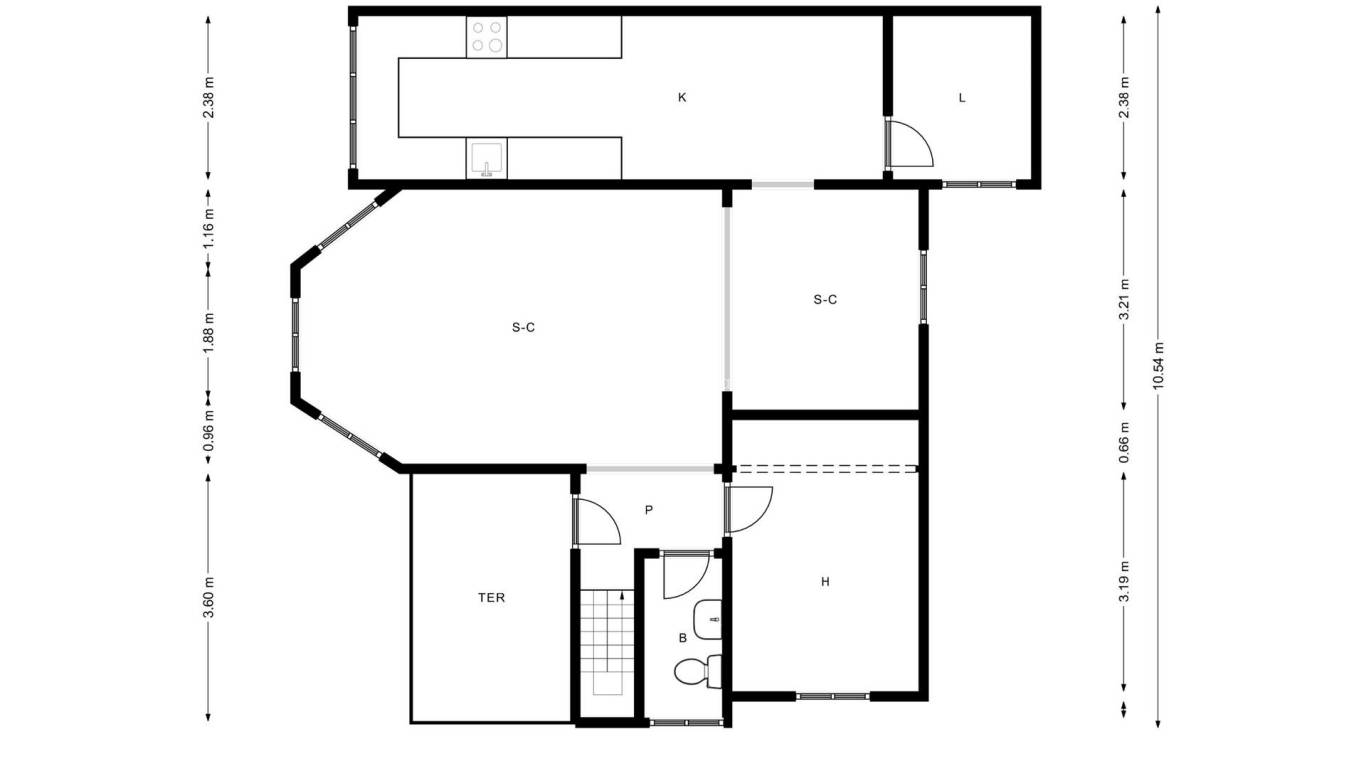
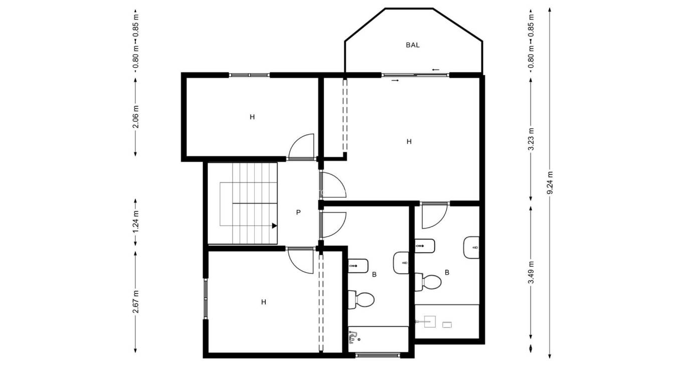
Willkommen in Ihrem neuen Zuhause in Orihuela Costa, in der bezaubernden Gegend von Las Mimosas!. . Dieses spektakuläre Haus bietet Ihnen die Möglichkeit, das Leben Ihrer Träume in einer paradiesischen Umgebung zu leben. Mit einer großzügigen Fläche von 161 Quadratmetern und einem Grundstück von mehr als 300 Quadratmetern ist dieses Haus eine Oase von Platz und Privatsphäre. Darüber hinaus garantiert Ihnen die Lage, nur 3000 Meter vom Strand entfernt, das Vergnügen des Meeres und der Sonne immer zum Greifen nah. Genießen Sie die Geräumigkeit dieses Hauses mit 5 Schlafzimmern, mit dem Vorteil eines Zimmers im Erdgeschoss für zusätzlichen Komfort. Auf dieser Etage finden wir auch ein Badezimmer. Der erste Stock bietet 3 Schlafzimmer und 2 Badezimmer, 1 en suite. Auf der Ebene des Solariums finden wir das fünfte Schlafzimmer sehr hell.. . Diese Immobilie ist bereit für Ihren Einzug und Sie werden sich vom ersten Moment an wie zu Hause fühlen. In der ausgestatteten Küche können Sie Ihrer kulinarischen Kreativität freien Lauf lassen und die Südostausrichtung sorgt den ganzen Tag über für unvergleichliche natürliche Helligkeit. Die zusätzlichen Annehmlichkeiten dieses Hauses sind zahllos. Genießen Sie den Komfort von fließendem Wasser, den Komfort einer Klimaanlage und die Sicherheit einer Alarmanlage. Einbauschränke, eine Speisekammer und eine Waschküche erleichtern die Organisation Ihres Alltags. Das Haus ist komplett möbliert, sodass Sie ohne Komplikationen einziehen und Ihre Räume vom ersten Tag an genießen können. Der Garten mit seinen Bäumen und einem Grillplatz wird zum perfekten Rahmen für Ihre Familientreffen und Momente im Freien. Entspannen Sie sich und tauchen Sie in das Wasser Ihres privaten Pools ein oder schließen Sie sich der Gemeinschaft im Gemeinschaftspool an. Das Solarium bietet Ihnen eine Ecke der Ruhe für Ihre Momente der Besinnung, während die klare Aussicht und die mediterrane Brise Ihre Seele streicheln.. . Die Lage dieses Hauses ist einfach außergewöhnlich, mit Einkaufszentren, Krankenhäusern, Parks, Supermärkten und Kinderbereichen in der Nähe macht den Alltag äußerst komfortabel. Die Gemeinschaftsgebühren betragen nur 402 Euro pro Jahr, was die einwandfreie Instandhaltung der Gemeinschaftsbereiche garantiert. Kurz gesagt, dieses Haus in Orihuela Costa ist viel mehr als eine Immobilie; Es ist ein Lebensstil.. . Hier erwartet Sie ein Leben voller Komfort, Schönheit und Ruhe. Lassen Sie sich diese Gelegenheit nicht entgehen und kontaktieren Sie uns noch heute, um Ihr neues Zuhause zu besichtigen!

Diese hier angegebenen Informationen unterliegen Fehlern und sind nicht Bestandteil eines Vertrages. Das Angebot kann ohne vorherige Ankündigung geändert oder zurückgezogen werden. Die Preise beinhalten keine Einkaufskosten.

Berechnen Hypotheken

Geldwechsel

  • Pfund: 303.811 GBP
  • Russischen Rubel: 303.811 RUB
  • Schweizerfranken: 321.965 CHF
  • Chinesischen Yuan: 2.802.345 CNY
  • Dollar: 409.920 USD
  • Schwedische Krone: 3.787.000 SEK
  • Die norwegische Krone: 3.833.375 NOK

Nach Informationen fragen

Responsable del tratamiento: , Finalidad del tratamiento: Gestión y control de los servicios ofrecidos a través de la página Web de Servicios inmobiliarios, Envío de información a traves de newsletter y otros, Legitimación: Por consentimiento, Destinatarios: No se cederan los datos, salvo para elaborar contabilidad, Derechos de las personas interesadas: Acceder, rectificar y suprimir los datos, solicitar la portabilidad de los mismos, oponerse altratamiento y solicitar la limitación de éste, Procedencia de los datos: El Propio interesado, Información Adicional: Puede consultarse la información adicional y detallada sobre protección de datos Aquí.
WhatsApp
ONLINE VIEWINGS