Torrevieja · Alicante, Costa Blanca REF: NB-18098 · Wohnung

255.000€
Schlafzimmer: 2
Das Badezimmer: 2
Gebaut: 93m2
Nennleistung: B
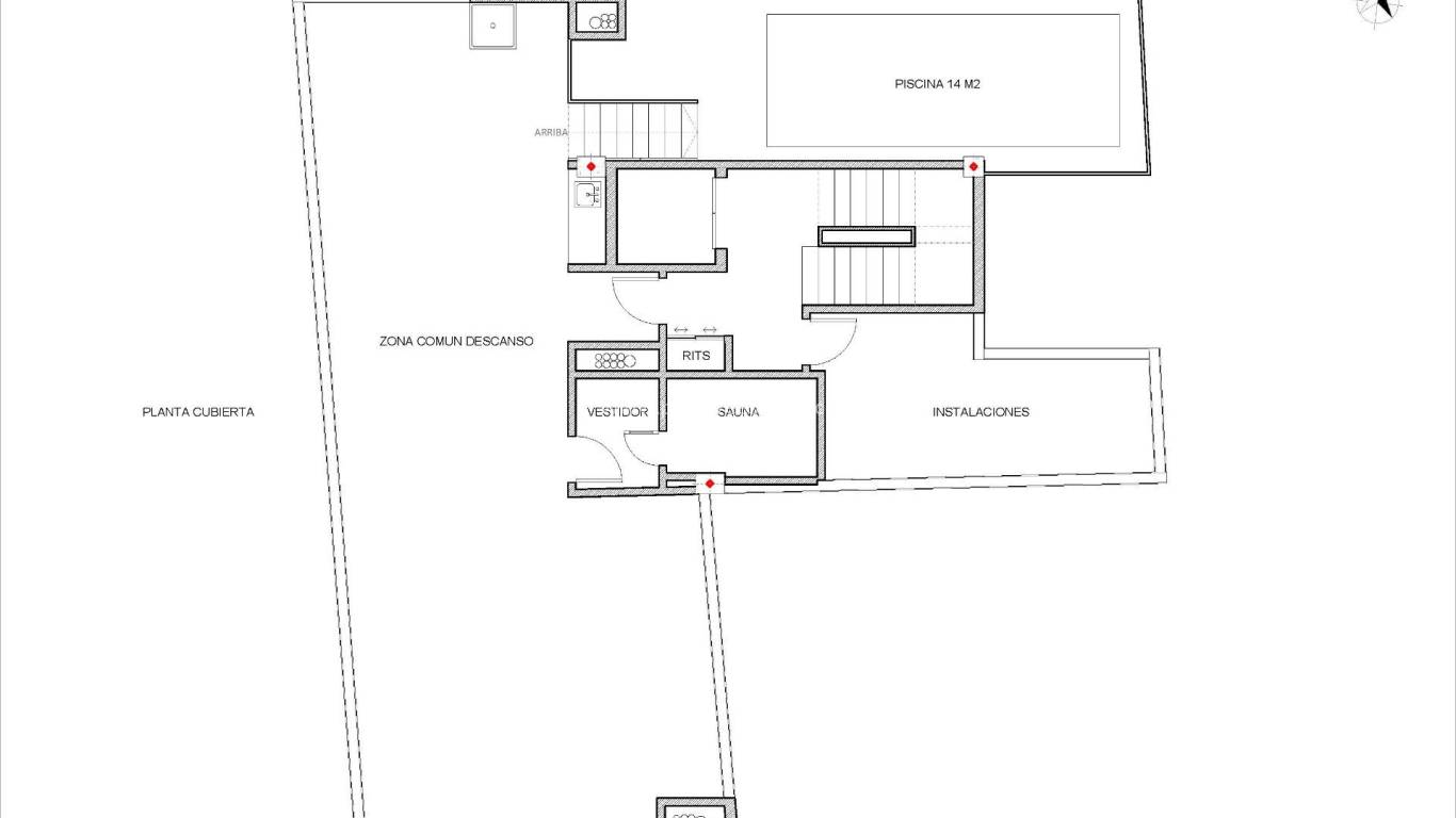
Gemeinschaftspool
BBQ
Elevator/Lift
Space
In der Nähe von Schulen
In der Nähe des Einkaufszentrums
Klimaanlage: Vorinstalliert
Double Bedrooms: 2
Beach: 400 Meters
Terrace: 13 Msq.
Useable Build Space: 67 Msq.
Location: Coastal
Has Main Electric
Nennleistung
Energieeffizienzklasse B

Neu gebaute Apartments in Torrevieja, nur 600 Meter vom Strand Playa del Cura entfernt Erstklassige Lage im Herzen von Torrevieja Entdecken Sie diese brandneuen Apartments und Penthäuser in einer der begehrtesten Gegenden von Torrevieja, nur 600 Meter vom Strand Playa del Cura und 400 Meter von der Strandpromenade entfernt. Dieses lebhafte Viertel im Stadtzentrum bietet alle wichtigen Annehmlichkeiten in Laufnähe, darunter Supermärkte, Geschäfte, Restaurants, Cafés und öffentliche Verkehrsmittel. Torrevieja ist eine bekannte Küstenstadt an der Costa Blanca, die für ihr mildes mediterranes Klima, ihre lebhafte Atmosphäre und ihren ganzjährigen Lebensstil am Meer bekannt ist. Moderne Apartments mit großzügiger Raumaufteilung Diese exklusive Neubauanlage besteht aus nur 14 Apartments und Penthäusern, darunter Studios und 1- oder 2-Zimmer-Wohnungen, die Komfort, Funktionalität und zeitgemäßen Stil bieten. Alle Wohnungen verfügen über eine offene Küche, die mit dem Wohn-Esszimmer verbunden und mit Geräten ausgestattet ist, wodurch helle und einladende Innenräume entstehen. Die Schlafzimmer sind mit Einbauschränken ausgestattet und die Badezimmer sind komplett mit Möbeln, Spiegeln, Fußbodenheizung und Duschwänden ausgestattet. Hochwertige Ausstattung und energieeffiziente Merkmale Die Wohnungen sind mit hochwertigen Materialien gebaut und legen großen Wert auf Energieeffizienz. Die Aluminiumfenster und -türen sind mit einer thermischen Trennung und Doppelverglasung für Wärme- und Schalldämmung ausgestattet. Motorisierte Jalousien sorgen für zusätzlichen Komfort und Sicherheit. Jede Wohnung verfügt über eine Vorinstallation für Klimaanlage und Kanalheizung, verstärkte Eingangstüren, ein Beleuchtungspaket und weiß lackierte Innentüren. Das Warmwasser wird durch ein aerothermisches System erzeugt, was den Energieverbrauch senkt und die Nachhaltigkeit verbessert. Dachterrasse mit Gemeinschaftspool Die Bewohner können eine exklusive Dachterrasse mit Gemeinschaftspool, Grill, Sauna und Liegewiese mit Sonnenliegen genießen, die mit dem Aufzug oder über eine Treppe erreichbar ist. Dieser private Bereich ist ideal zum Entspannen, Sonnenbaden und Genießen des Panoramablicks auf die Stadt. Er bietet einen ruhigen Rückzugsort über den belebten Straßen von Torrevieja und wertet die Anlage erheblich auf. Lebensstil und Umgebung von Torrevieja Torrevieja ist bekannt für seine ausgedehnte Küste, Sandstrände und ikonischen Salinen. Der Naturpark Lagunas de La Mata y Torrevieja ist etwa 5 km entfernt und bietet Wanderwege und einzigartige Landschaften. Mehrere Golfplätze, wie Villamartin Golf und Las Colinas Golf, sind zwischen 12 und 18 km entfernt. Der Yachthafen und der Hafen von Torrevieja sind etwa 1 km entfernt. Der Flughafen Alicante ist etwa 45 km entfernt und der internationale Flughafen Murcia etwa 65 km, beide mit ausgezeichneten Verbindungen innerhalb Europas. Ihr Zuhause an der Küste wartet auf Sie Verpassen Sie nicht diese Gelegenheit, eine moderne, neu gebaute Wohnung in Strandnähe in Torrevieja zu erwerben. Kontaktieren Sie uns noch heute für weitere Informationen oder um einen privaten Besichtigungstermin zu vereinbaren.

Diese hier angegebenen Informationen unterliegen Fehlern und sind nicht Bestandteil eines Vertrages. Das Angebot kann ohne vorherige Ankündigung geändert oder zurückgezogen werden. Die Preise beinhalten keine Einkaufskosten.

Berechnen Hypotheken

Geldwechsel

  • Pfund: 221.348 GBP
  • Russischen Rubel: 221.348 RUB
  • Schweizerfranken: 234.575 CHF
  • Chinesischen Yuan: 2.041.709 CNY
  • Dollar: 298.656 USD
  • Schwedische Krone: 2.759.100 SEK
  • Die norwegische Krone: 2.792.888 NOK

Nach Informationen fragen

Responsable del tratamiento: , Finalidad del tratamiento: Gestión y control de los servicios ofrecidos a través de la página Web de Servicios inmobiliarios, Envío de información a traves de newsletter y otros, Legitimación: Por consentimiento, Destinatarios: No se cederan los datos, salvo para elaborar contabilidad, Derechos de las personas interesadas: Acceder, rectificar y suprimir los datos, solicitar la portabilidad de los mismos, oponerse altratamiento y solicitar la limitación de éste, Procedencia de los datos: El Propio interesado, Información Adicional: Puede consultarse la información adicional y detallada sobre protección de datos Aquí.
WhatsApp
ONLINE VIEWINGS