Polop · Alicante, Costa Blanca REF: NB-79740 · Villa

970.000€
Schlafzimmer: 4
Das Badezimmer: 4
Gebaut: 200m2
Grundstück: 400m2
Nennleistung: B
Garten
Privater Pool
Laundry room
Key ready
Games Room
Solarium: Yes
Mit einem Gatter versehen
Views: Sea
Near Trees
In der Nähe von Schulen
In der Nähe des Einkaufszentrums
Under-Build / Basement
Number of Parking Spaces: 2
Double Bedrooms: 4
Parking - Space
Useable Build Space: 100 Msq.
Terrace: 66 Msq.
Location: Rural, Mountain, Urbanisation
Beach: 8000 Meters
Storage / Trastero
Nennleistung
Energieeffizienzklasse B

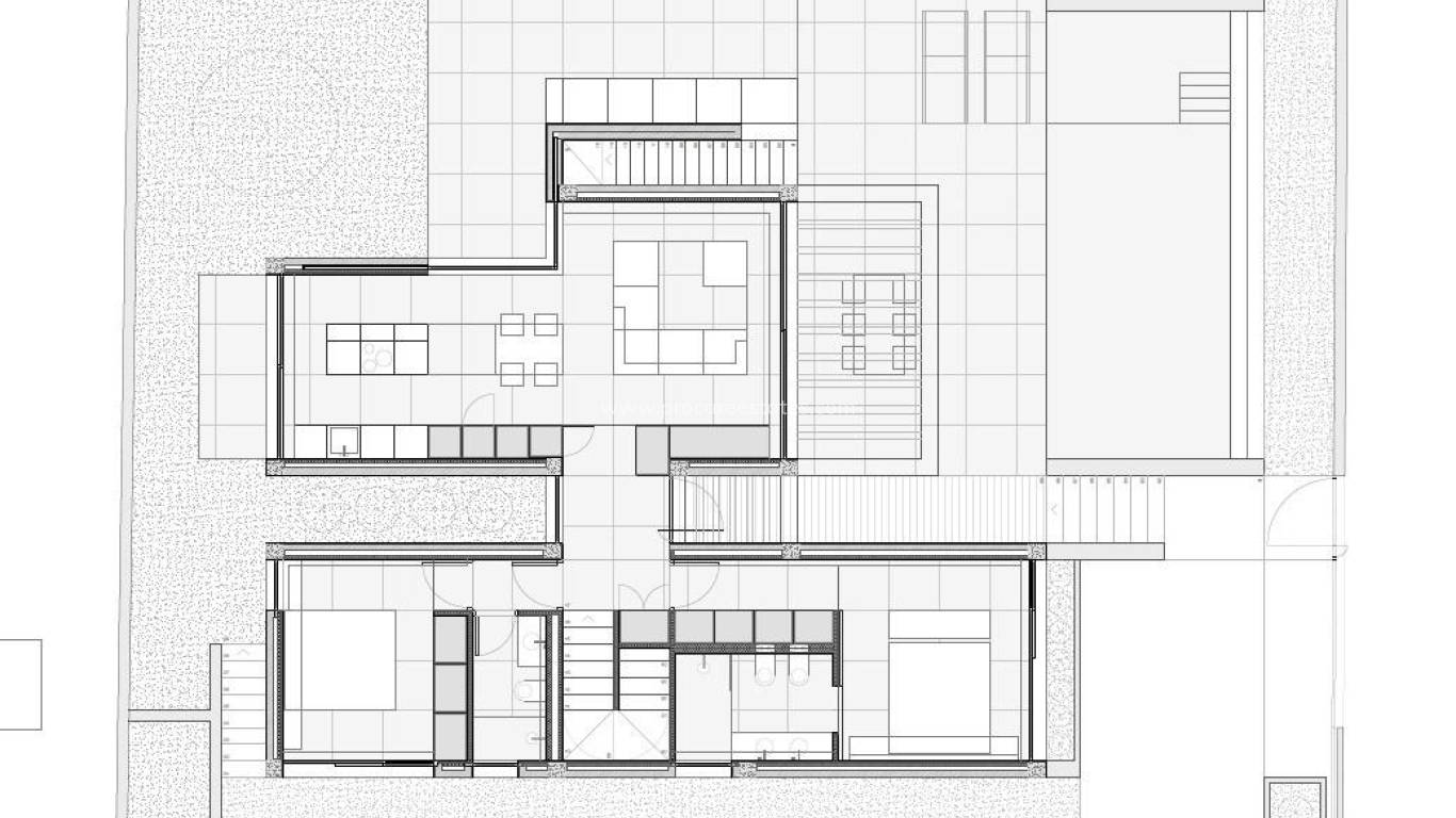
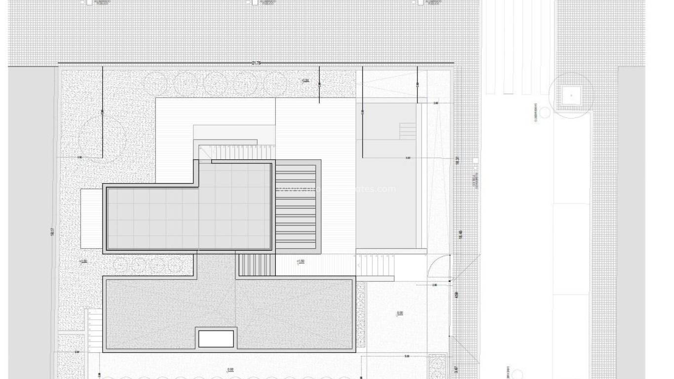
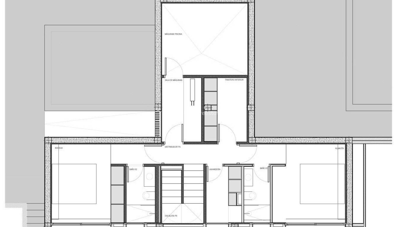
Bezugsfertige Neubauvilla mit Meerblick in La Alberca Polop Luxuriöse moderne Villa in natürlicher Berglandschaft Diese bezugsfertige, moderne Villa befindet sich in La Alberca, einer ruhigen Wohngegend von Polop, umgeben von Wald und Bergen. Dank ihrer erhöhten Lage bietet die Immobilie einen Panoramablick auf das Mittelmeer, die Berge und das historische Stadtzentrum von Polop. Die Villa bietet Privatsphäre, Ruhe und eine hervorragende Anbindung an die Küste und die umliegenden Städte. Polop ist ein charmantes Dorf in der Region Marina Baixa an der Costa Blanca, das für seinen traditionellen Charakter und seine natürliche Umgebung bekannt ist. Die Immobilie liegt in der Nähe aller Dienstleistungen in La Nucia, darunter Geschäfte, Restaurants, Sportzentren und Schulen, während die Strände und lebhaften Küstenstädte nur eine kurze Autofahrt entfernt sind. Großzügiger Grundriss über Hauptgeschoss, Keller und Solarium Die Villa verteilt sich auf ein Hauptgeschoss, ein Untergeschoss und ein Dachsolarium und bietet großzügigen Wohnraum und Flexibilität. Im Hauptgeschoss führt eine einladende Eingangshalle mit Einbauschrank zu zwei Schlafzimmern mit eigenem Bad, darunter eine Master-Suite mit hochschiebbaren Fenstertüren, die sich zu einem Juliette-Balkon und einer Terrasse öffnen. Der offene Wohn- und Essbereich ist nahtlos mit einer überdachten Pergola-Terrasse und einem privaten Salzwasser-Swimmingpool verbunden. Das Untergeschoss verfügt über zwei weitere Schlafzimmer mit eigenem Bad und großen Fenstern, ein flexibles Spielzimmer oder Kinozimmer mit Wasser- und Stromanschlüssen für einen Barbereich, einen voll ausgestatteten Waschraum mit Haier-Geräten und zwei technische Lagerräume. Das Solarium auf dem Dach bietet einen weitläufigen Außenbereich mit Panoramablick auf das Meer und ist für die zukünftige Installation von Sonnenkollektoren vorbereitet. Eine Außenküche, mehrere Abstellräume und ein mediterran gestalteter Garten mit automatischer Bewässerung vervollständigen den Außenbereich. Hochwertige Ausstattung und Energieeffizienz Diese Villa zeichnet sich durch ihre hochwertige Ausstattung und moderne Installationen aus, darunter: Zentrale Kücheninsel mit integrierten BOSCH-Geräten Naturstein-Arbeitsplatten im Innen- und Außenbereich Vorinstallation für Fußbodenheizung Aerothermisches Klimatisierungssystem von Mitsubishi Energieeffizienzklasse A Vorinstallation für Smart-Home-System Salzwasser-Swimmingpool mit optionaler Heizung Privater Parkplatz für zwei Fahrzeuge Große Fenster mit Sonnenschutzglas maximieren das natürliche Licht und sorgen gleichzeitig für Komfort und Sicherheit. Ausgezeichnete Lage und Entfernungen Zentrum von Polop 2 km La Nucia 4 km Benidorm 12 km Altea 10 km Strände 10 km Villaitana Golf 14 km Flughafen Alicante 65 km Sichern Sie sich Ihr Traumhaus in Polop Diese außergewöhnliche, bezugsfertige Villa vereint Privatsphäre, Design und Panoramablick in einer der attraktivsten Regionen im Landesinneren der Costa Blanca. Kontaktieren Sie uns noch heute, um einen privaten Besichtigungstermin zu vereinbaren und diese Luxusvilla in La Alberca Polop zu Ihrem neuen Zuhause zu machen.

Diese hier angegebenen Informationen unterliegen Fehlern und sind nicht Bestandteil eines Vertrages. Das Angebot kann ohne vorherige Ankündigung geändert oder zurückgezogen werden. Die Preise beinhalten keine Einkaufskosten.

Berechnen Hypotheken

Geldwechsel

  • Pfund: 841.989 GBP
  • Russischen Rubel: 841.989 RUB
  • Schweizerfranken: 892.303 CHF
  • Chinesischen Yuan: 7.766.499 CNY
  • Dollar: 1.136.064 USD
  • Schwedische Krone: 10.495.400 SEK
  • Die norwegische Krone: 10.623.925 NOK

Nach Informationen fragen

Responsable del tratamiento: , Finalidad del tratamiento: Gestión y control de los servicios ofrecidos a través de la página Web de Servicios inmobiliarios, Envío de información a traves de newsletter y otros, Legitimación: Por consentimiento, Destinatarios: No se cederan los datos, salvo para elaborar contabilidad, Derechos de las personas interesadas: Acceder, rectificar y suprimir los datos, solicitar la portabilidad de los mismos, oponerse altratamiento y solicitar la limitación de éste, Procedencia de los datos: El Propio interesado, Información Adicional: Puede consultarse la información adicional y detallada sobre protección de datos Aquí.
WhatsApp
ONLINE VIEWINGS