Pilar de la Horadada · Alicante, Costa Blanca REF: NB-71737 · Wohnung

291.500€
Schlafzimmer: 3
Das Badezimmer: 2
Gebaut: 104m2
Grundstück: 48m2
Nennleistung: B
Garten
Privater Pool
Laundry room
Mit einem Gatter versehen
In der Nähe von Schulen
In der Nähe des Einkaufszentrums
Standort: Küste, Urbanisierung
Doppelzimmer: 3
Anzahl der Parkplätze: 1
Klimaanlage: Vorinstalliert
Terrace: 15 Msq.
Useable Build Space: 95 Msq.
Beach: 3000 Meters
Parking - Space
Nennleistung
Energieeffizienzklasse B

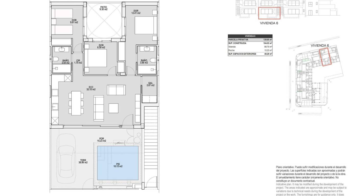
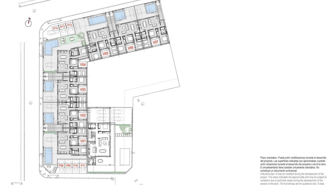
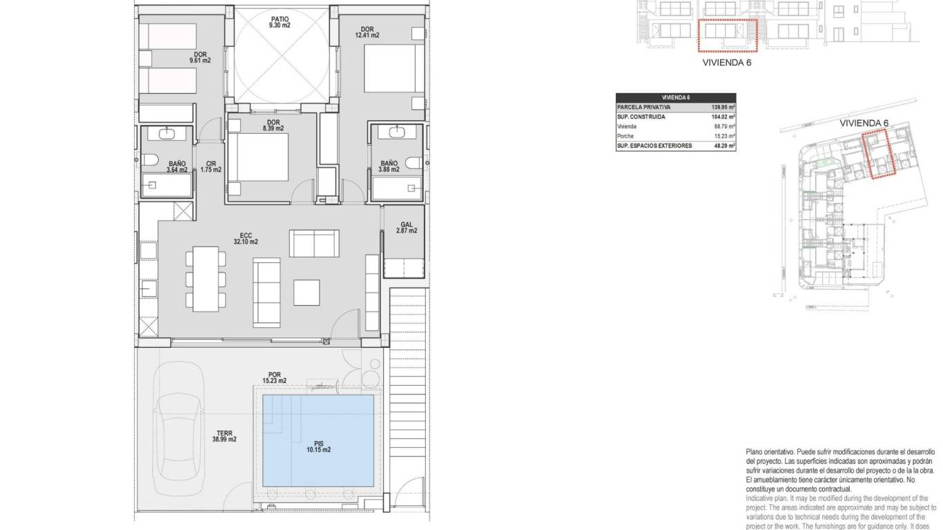
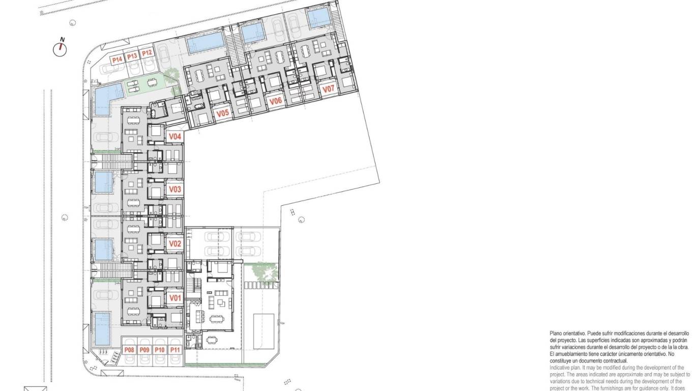
Neubau-Bungalows zum Verkauf in Pilar de la Horadada, 3 km vom Strand entfernt Boutique-Wohnanlage in Pilar de la Horadada Entdecken Sie diese exklusive Neubau-Wohnanlage mit modernen Bungalows in Pilar de la Horadada, der südlichsten Stadt der Costa Blanca. Dieses Boutique-Projekt besteht aus nur 14 sorgfältig gestalteten Häusern mit 2 oder 3 Schlafzimmern und 2 Bädern, die eine ideale Kombination aus Komfort, Stil und mediterranem Lebensstil bieten. Die Wohnanlage befindet sich in einer ruhigen Wohngegend in Laufnähe zum Stadtzentrum, sodass die Bewohner bequem Geschäfte, Restaurants, Supermärkte und wichtige Dienstleistungen erreichen können. Pilar de la Horadada ist bekannt für seine einladende Atmosphäre, seinen traditionellen spanischen Charme und seine lebhafte Hauptstraße mit Cafés, Boutiquen und charmanten Plätzen. Moderne Bungalows mit privaten Außenbereichen Die Häuser wurden so konzipiert, dass sie helle Innenräume und funktionale Grundrisse bieten, die sich sowohl für das dauerhafte Wohnen als auch für den Urlaubseinsatz eignen. Die Bungalows im Erdgeschoss verfügen über einen privaten Garten und einen privaten Swimmingpool und bieten somit den perfekten Rahmen, um das Leben im Freien zu genießen, sich zu sonnen oder Familie und Freunde zu unterhalten. Die Bungalows im Obergeschoss verfügen über eine geräumige Terrasse und ein privates Solarium auf dem Dach. Das Solarium ist mit einer Sommerküche ausgestattet und bietet die Möglichkeit, gegen Aufpreis einen privaten Pool oder Whirlpool hinzuzufügen, was es zu einem idealen Ort macht, um sich zu entspannen und das warme mediterrane Klima und die freie Aussicht zu genießen. Jede Immobilie verfügt über einen privaten Parkplatz innerhalb der Wohnanlage für zusätzlichen Komfort. Hochwertige Bauweise und moderne Ausstattung Diese neu gebauten Häuser sind mit hochwertigen Materialien und modernen Installationen ausgestattet, die das ganze Jahr über Komfort und Energieeffizienz gewährleisten. Aluminium-Außenfenster mit thermischer Trennung Voll ausgestattete Küchen mit Geräten Badezimmer mit Spiegeln und Duschwänden LED-Beleuchtung im Innen- und Außenbereich Warmwassersystem mit energieeffizienter aerothermischer Technologie Vorinstallation für Klimaanlage Die Kombination aus modernem Design und praktischen Ausstattungsmerkmalen macht diese Häuser zu einer ausgezeichneten Option für Käufer, die eine zeitgemäße Immobilie an der Costa Blanca suchen. Ausgezeichnete Lage in der Nähe von Stränden und Golfplätzen Pilar de la Horadada genießt eine strategisch günstige Lage in der Nähe einiger der besten Strände und Golfplätze der Region. Strand Torre de la Horadada 3 km Strand Mil Palmeras 3 km Lo Romero Golf 6 km Internationaler Flughafen Murcia 45 km Flughafen Alicante Elche 75 km Die Gegend bietet außerdem eine hervorragende Verkehrsanbindung an nahegelegene Küstenstädte, Yachthäfen und Freizeiteinrichtungen und ist somit ein idealer Ausgangspunkt, um die Costa Blanca und die Costa Calida zu erkunden. Finden Sie Ihr neues Zuhause an der Costa Blanca Wenn Sie auf der Suche nach einem modernen, neu gebauten Bungalow in Strandnähe mit hervorragender Ausstattung und fantastischer Lage sind, ist diese Wohnanlage in Pilar de la Horadada eine hervorragende Gelegenheit. Kontaktieren Sie uns noch heute für weitere Informationen oder um einen Besichtigungstermin zu vereinbaren.

Diese hier angegebenen Informationen unterliegen Fehlern und sind nicht Bestandteil eines Vertrages. Das Angebot kann ohne vorherige Ankündigung geändert oder zurückgezogen werden. Die Preise beinhalten keine Einkaufskosten.

Berechnen Hypotheken

Geldwechsel

  • Pfund: 253.031 GBP
  • Russischen Rubel: 253.031 RUB
  • Schweizerfranken: 268.151 CHF
  • Chinesischen Yuan: 2.333.953 CNY
  • Dollar: 341.405 USD
  • Schwedische Krone: 3.154.030 SEK
  • Die norwegische Krone: 3.192.654 NOK

Nach Informationen fragen

Responsable del tratamiento: , Finalidad del tratamiento: Gestión y control de los servicios ofrecidos a través de la página Web de Servicios inmobiliarios, Envío de información a traves de newsletter y otros, Legitimación: Por consentimiento, Destinatarios: No se cederan los datos, salvo para elaborar contabilidad, Derechos de las personas interesadas: Acceder, rectificar y suprimir los datos, solicitar la portabilidad de los mismos, oponerse altratamiento y solicitar la limitación de éste, Procedencia de los datos: El Propio interesado, Información Adicional: Puede consultarse la información adicional y detallada sobre protección de datos Aquí.
WhatsApp
ONLINE VIEWINGS