La Romana · Alicante, Costa Blanca REF: NB-51742 · Villa

402.000€
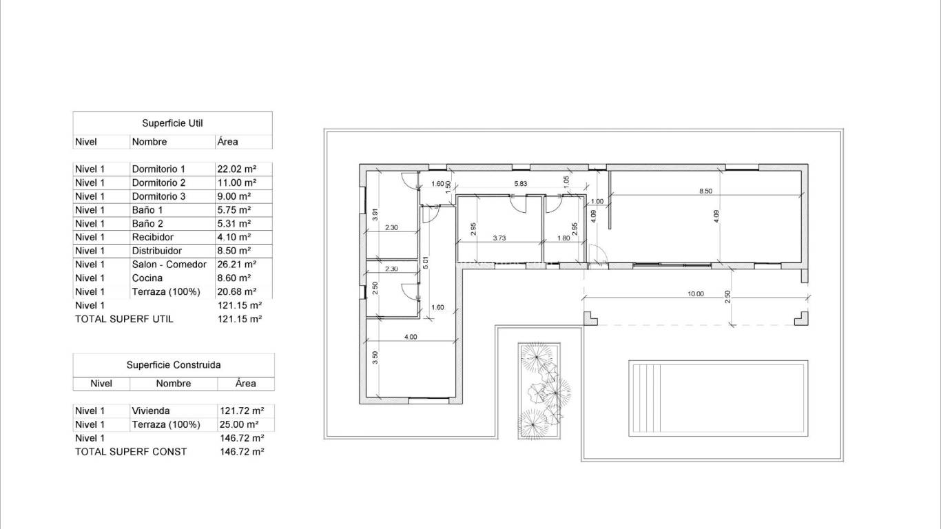
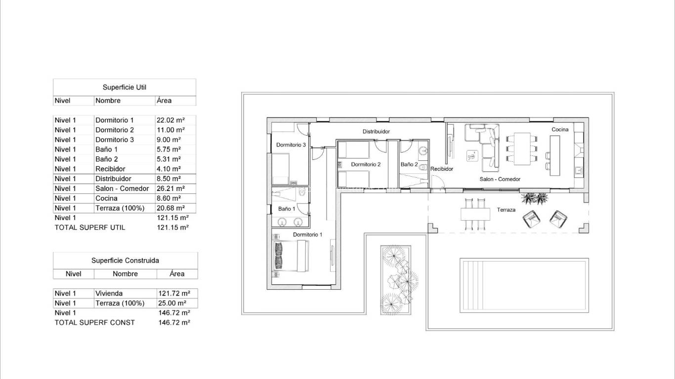
Habitaciones: 3
Baños: 2
Construidos: 146m2
Parcela: 10.227m2
Calificación energética: B
Jardín
Piscina privada
Cerrado
Terrace: 20 Msq.
Cerca de Escuelas
Dormitorios Dobles: 3
Número de plazas de aparcamiento: 1
Aire Acondicionado: Preinstalado
Useable Build Space: 120 Msq.
Parking - Space
Beach: 40000 Meters
Calificación energética
Calificación energética B

Villas de obra nueva situadas en La Romana. Villas de obra nueva con varios modelos a elegir entre 2 o 3 dormitorios, de una o 2 plantas y construidas con losa o con estructura: dependiendo del modelo y la parcela elegida, se calculará el precio exacto. Todas las villas se construyen en parcelas rústicas de más de 10.000 m2 de los cuales se vallarán 2.500 m2. Las villas disponen de cocina americana con el salón, armarios empotrados, piscina privada, porche y plaza de parking exterior. Hay varias parcelas a elegir, para el cálculo del precio se ha considerado una parcela con un precio de 73.000 eur (si se elige otra parcela, se pagará o abonará la diferencia según el precio de la misma). Realizada en régimen de auto promoción, entrega en unos 12 meses desde la concesión de la licencia. Si busca un entorno tranquilo, cerca de pueblos típicos españoles alejados de la masificación turística, rodeado de montañas, con una amplísima parcela y a unos 30 minutos del mar, esta es su casa. La Romana es un típico pueblo español con todos los servicios para el día a día, rodeado de montañas y con varios parajes naturales en las cercanías donde se pueden hacer rutas de senderismo o mountain bike. Situado a 30 minutos del aeropuerto de Alicante.

Esta información que se proporciona aquí está sujeta a errores y no forma parte de ningún contrato. La oferta se puede cambiar o retirar sin previo aviso. Los precios no incluyen los costes de compra

Calcular hipoteca

Cambio de divisas

  • Libras: 348.948 GBP
  • Rublo Ruso: 348.948 RUB
  • Franco Suizo: 369.800 CHF
  • Yuan Chino: 3.218.693 CNY
  • Dolar: 470.822 USD
  • Corona Sueca: 4.349.640 SEK
  • Corona Noruega: 4.402.905 NOK

Solicitar información

Responsable del tratamiento: , Finalidad del tratamiento: Gestión y control de los servicios ofrecidos a través de la página Web de Servicios inmobiliarios, Envío de información a traves de newsletter y otros, Legitimación: Por consentimiento, Destinatarios: No se cederan los datos, salvo para elaborar contabilidad, Derechos de las personas interesadas: Acceder, rectificar y suprimir los datos, solicitar la portabilidad de los mismos, oponerse altratamiento y solicitar la limitación de éste, Procedencia de los datos: El Propio interesado, Información Adicional: Puede consultarse la información adicional y detallada sobre protección de datos Aquí.
WhatsApp
ONLINE VIEWINGS