Orihuela Costa · Alicante, Costa Blanca REF: NB-82007 · Villa

1.700.000€
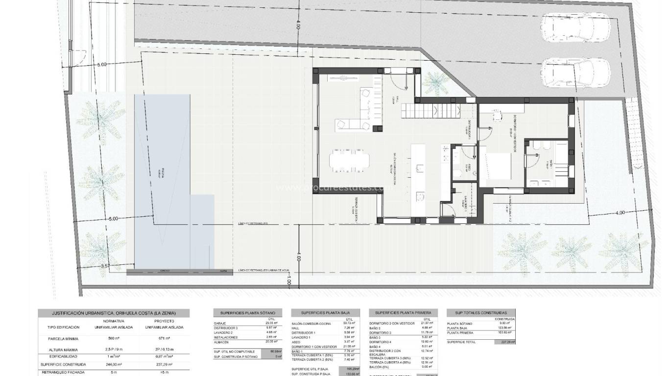
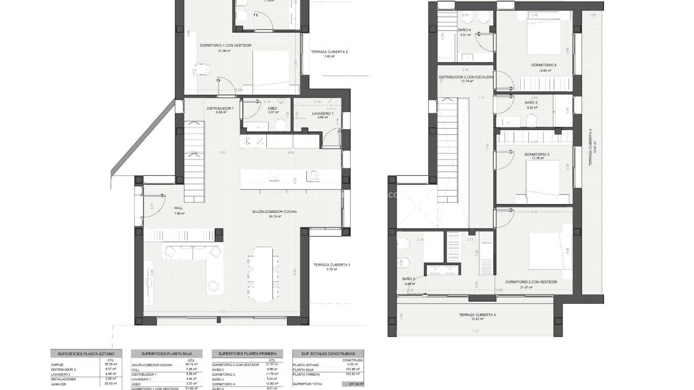
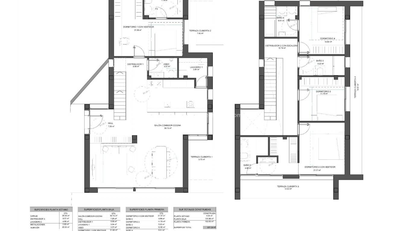
Habitaciones: 4
Baños: 4
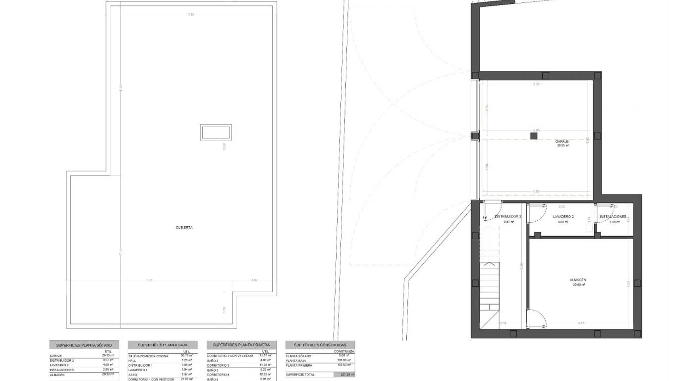
Construidos: 237m2
Parcela: 671m2
Calificación energética: B
Under-Build / Basement
Number of Parking Spaces: 2
Beach: 600 Meters
Double Bedrooms: 4
Terrace: 75 Msq.
Parking - Space - Garage - Double Garage
Useable Build Space: 193 Msq.
Storage / Trastero
Toilet: 1
Jardín
Piscina privada
Cerrado
Near Trees
Cerca de Escuelas
Cerca Centro Comercial
Ubicación: Costa, Urbanización
Aire Acondicionado: Preinstalado
Calificación energética
Calificación energética B

Villa de lujo de nueva construcción en venta en La Zenia, Orihuela Costa Vida exclusiva cerca de la playa en la Costa Blanca Situada a solo 600 m de las playas de arena de La Zenia, esta impresionante villa de lujo en Orihuela Costa ofrece el equilibrio perfecto entre comodidad, diseño y estilo de vida mediterráneo. Con 4 amplios dormitorios, cada uno con su propio cuarto de baño en suite, además de un aseo para invitados, esta casa es ideal para familias o para aquellos que buscan un espacioso refugio vacacional cerca del mar. Diseño premium y características exteriores Situada en una generosa parcela privada de 670 m2, la villa está diseñada con acabados de alta calidad y atención al detalle. Cuenta con: Orientación sur-sureste para una óptima luz natural Gran piscina privada Garaje subterráneo privado con espacio para 2 vehículos y parking en superficie para varios vehículos adicionales. Precioso jardín paisajístico ideal para la vida al aire libre Esta propiedad le permite disfrutar del clima soleado de la Costa Blanca durante todo el año. Ubicación privilegiada en La Zenia La Zenia es una zona residencial muy cotizada en Orihuela Costa, conocida por su animada comunidad, sus servicios durante todo el año y su proximidad a la playa. Los residentes disfrutan de acceso a: Centro comercial La Zenia Boulevard: 2,5 km Campo de golf Villamartín: 4,5 km Centro de Torrevieja: 9 km Aeropuerto de Alicante: 40 km Aeropuerto de Murcia-Corvera: 60 km Rodeada de restaurantes, bares, colegios internacionales y supermercados, La Zenia es una de las zonas más dinámicas del sur de la Costa Blanca. Asegúrese la villa de sus sueños en La Zenia Tanto si busca una residencia familiar de lujo como una inversión de primera calidad en la costa mediterránea, esta villa es una oportunidad excepcional. Póngase en contacto con nosotros hoy mismo para obtener más información, concertar una visita y hacer realidad la casa de sus sueños antes de que sea demasiado tarde.

Esta información que se proporciona aquí está sujeta a errores y no forma parte de ningún contrato. La oferta se puede cambiar o retirar sin previo aviso. Los precios no incluyen los costes de compra

Calcular hipoteca

Cambio de divisas

  • Libras: 1.475.651 GBP
  • Rublo Ruso: 1.475.651 RUB
  • Franco Suizo: 1.563.830 CHF
  • Yuan Chino: 13.611.390 CNY
  • Dolar: 1.991.040 USD
  • Corona Sueca: 18.394.000 SEK
  • Corona Noruega: 18.619.250 NOK

Solicitar información

Responsable del tratamiento: , Finalidad del tratamiento: Gestión y control de los servicios ofrecidos a través de la página Web de Servicios inmobiliarios, Envío de información a traves de newsletter y otros, Legitimación: Por consentimiento, Destinatarios: No se cederan los datos, salvo para elaborar contabilidad, Derechos de las personas interesadas: Acceder, rectificar y suprimir los datos, solicitar la portabilidad de los mismos, oponerse altratamiento y solicitar la limitación de éste, Procedencia de los datos: El Propio interesado, Información Adicional: Puede consultarse la información adicional y detallada sobre protección de datos Aquí.
WhatsApp
ONLINE VIEWINGS