Torrevieja · Alicante, Costa Blanca REF: NB-38794 · Villa

750.000€
Habitaciones: 4
Baños: 4
Construidos: 238m2
Parcela: 420m2
Calificación energética: B
Terrace: 102 Msq.
Storage / Trastero
Jardín
Piscina privada
Key ready
Solarium: Yes
Cerrado
Near Trees
Cerca de Escuelas
Cerca Centro Comercial
Número de plazas de aparcamiento: 1
Aire Acondicionado: Preinstalado
Under-Build / Basement
Beach: 1200 Meters
Double Bedrooms: 4
Parking - Space
Location: Coastal
Useable Build Space: 180 Msq.
Calificación energética
Calificación energética B

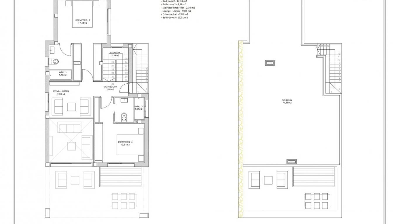
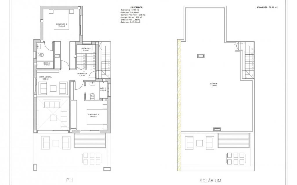
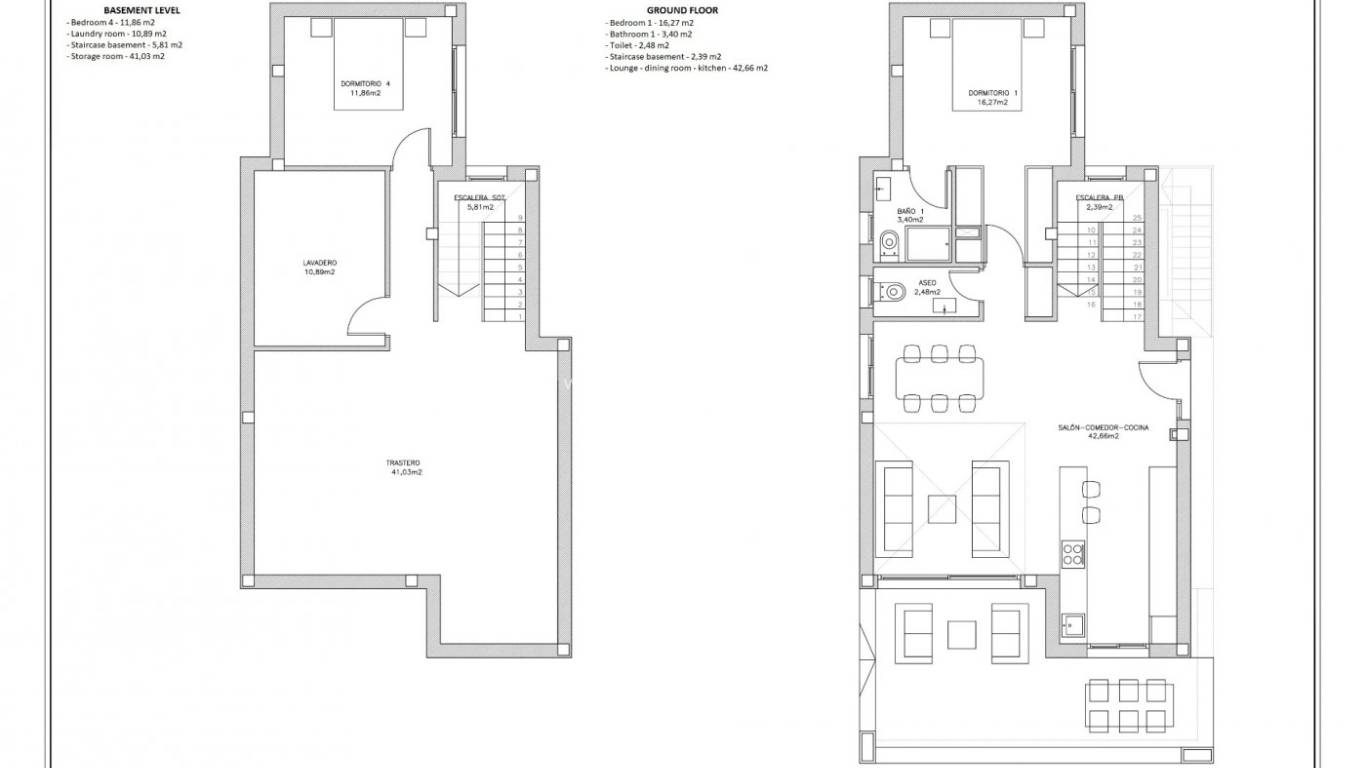
2 VILLAS DE OBRA NUEVA EN TORREVIEJA 2 nuevas villas hermosas en Torrevieja. Las villas tienen 4 dormitorios, 4 baños, cocina abierta con el salón, armarios empotrados, jardín privado con la piscina y plaza de aparcamiento fuera de la carretera, solarium privado y sótano. Villas situado a 15 minutos a pie de la famosa Playa de La Mata (5 minutos en coche). Torrevieja es una ciudad española en la provincia de Alicante, en la Costa Blanca. Es conocida por su clima y su costa típicamente mediterráneos. Cuenta con paseos marítimos con complejos turísticos a lo largo de sus playas de arena. El pequeño Museo del Mar y la Sal alberga exposiciones sobre la historia pesquera y salinera de la ciudad. En el interior, el Parque Natural de las Lagunas de La Mata-Torrevieja cuenta con senderos y dos lagunas saladas, una rosa y otra verde. El aeropuerto de Alicante se encuentra a 40 minutos y el de Murcia a una hora.

Esta información que se proporciona aquí está sujeta a errores y no forma parte de ningún contrato. La oferta se puede cambiar o retirar sin previo aviso. Los precios no incluyen los costes de compra

Calcular hipoteca

Cambio de divisas

  • Libras: 651.023 GBP
  • Rublo Ruso: 651.023 RUB
  • Franco Suizo: 689.925 CHF
  • Yuan Chino: 6.005.025 CNY
  • Dolar: 878.400 USD
  • Corona Sueca: 8.115.000 SEK
  • Corona Noruega: 8.214.375 NOK

Solicitar información

Responsable del tratamiento: , Finalidad del tratamiento: Gestión y control de los servicios ofrecidos a través de la página Web de Servicios inmobiliarios, Envío de información a traves de newsletter y otros, Legitimación: Por consentimiento, Destinatarios: No se cederan los datos, salvo para elaborar contabilidad, Derechos de las personas interesadas: Acceder, rectificar y suprimir los datos, solicitar la portabilidad de los mismos, oponerse altratamiento y solicitar la limitación de éste, Procedencia de los datos: El Propio interesado, Información Adicional: Puede consultarse la información adicional y detallada sobre protección de datos Aquí.
WhatsApp
ONLINE VIEWINGS