Fuente Alamo · Murcia, Costa Cálida REF: NB-24584 · Villa

242.000€
Habitaciones: 2
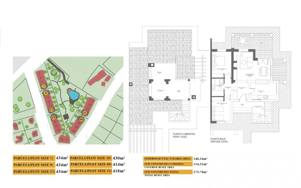
Baños: 1
Construidos: 175m2
Parcela: 430m2
Calificación energética: B
Key ready
Cerrado
Número de plazas de aparcamiento: 1
Location: Rural, Urbanisation
Aire Acondicionado: Preinstalado
Double Bedrooms: 2
Parking - Space
Terrace: 45 Msq.
Beach: 7500 Meters
Useable Build Space: 148 Msq.
Storage / Trastero
Jardín
Calificación energética
Calificación energética B

PAREADO LLAVE EN MANO EN FUENTE ALAMO, MURCIA Residencial de adosados, villas independientes y pareados en Fuente Álamo, Murcia. Hay siete modelos diferentes de casas para elegir, diseñados para adaptarse al gusto de todos. Diseños rústicos combinados con materiales de primera calidad y un enfoque en el espacio de vida cómodo hay algo para todos. Los residentes de esta comunidad privada de hermosas y amplias casas también podrán disfrutar de sus propios jardines y piscinas comunitarias. Este pareado de diseño inusual tiene 2 dormitorios y 1 baño, cocina independiente, salón con puertas de patio que dan acceso al porche cubierto y a la terraza semicubierta de la azotea. Tiene la opción de una piscina privada con un coste adicional. Fuente Álamo de Murcia es una localidad y municipio de la Región de Murcia, en el sur de España. Está situada a 22 km al noroeste de Cartagena y a 35 km al suroeste de Murcia. La ciudad se encuentra en la cuenca del Mar Menor, rodeada por las sierras de Algarrobo, Los Gómez, Los Victorias y el Carrascoy. El agua de estas montañas fluye hacia la Rambla de Fuente Álamo y luego hacia el Mar Menor. Fuente Álamo se encuentra a 30 minutos del aeropuerto de Murcia - Corvera.

Esta información que se proporciona aquí está sujeta a errores y no forma parte de ningún contrato. La oferta se puede cambiar o retirar sin previo aviso. Los precios no incluyen los costes de compra

Calcular hipoteca

Cambio de divisas

  • Libras: 210.063 GBP
  • Rublo Ruso: 210.063 RUB
  • Franco Suizo: 222.616 CHF
  • Yuan Chino: 1.937.621 CNY
  • Dolar: 283.430 USD
  • Corona Sueca: 2.618.440 SEK
  • Corona Noruega: 2.650.505 NOK

Solicitar información

Responsable del tratamiento: , Finalidad del tratamiento: Gestión y control de los servicios ofrecidos a través de la página Web de Servicios inmobiliarios, Envío de información a traves de newsletter y otros, Legitimación: Por consentimiento, Destinatarios: No se cederan los datos, salvo para elaborar contabilidad, Derechos de las personas interesadas: Acceder, rectificar y suprimir los datos, solicitar la portabilidad de los mismos, oponerse altratamiento y solicitar la limitación de éste, Procedencia de los datos: El Propio interesado, Información Adicional: Puede consultarse la información adicional y detallada sobre protección de datos Aquí.
WhatsApp
ONLINE VIEWINGS