Hondon de las Nieves · Alicante, Costa Blanca REF: NB-39416 · Villa

333.000€
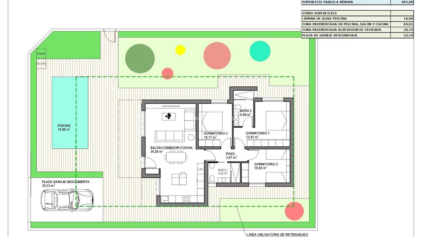
Habitaciones: 3
Baños: 2
Construidos: 101m2
Parcela: 439m2
Calificación energética: B
Dormitorios Dobles: 3
Número de plazas de aparcamiento: 1
Aire Acondicionado: Preinstalado
Useable Build Space: 83 Msq.
Parking - Space
Location: Rural, Mountain
Beach: 30000 Meters
Jardín
Piscina privada
Cerrado
Terrace: 20 Msq.
Cerca de Escuelas
Calificación energética
Calificación energética B

Villas de nueva construcción en la urbanización La Montañosa, Hondón de las Nieves Vida tranquila en el Mediterráneo, en la campiña de Alicante Descubra una exclusiva colección de villas de nueva construcción situadas en La Montañosa, una tranquila zona residencial cerca del encantador pueblo de Hondón de las Nieves. Conocida por su ambiente tradicional español, sus hermosos paisajes montañosos y su estilo de vida relajado, esta ubicación en el interior ofrece el equilibrio ideal entre tranquilidad y comodidad. Disfrute de un entorno rural rodeado de naturaleza a solo 30 km de las playas de la Costa Blanca y de las animadas localidades costeras. Villas personalizables de una sola planta con comodidades modernas Este proyecto residencial ofrece villas personalizables diseñadas en una sola planta para ofrecer el máximo confort y comodidad. Elija entre diferentes estilos arquitectónicos, incluyendo diseños ibicencos, modernos y mediterráneos, todos con 3 dormitorios y 2 baños, uno de ellos en suite. Las superficies construidas oscilan entre 100 y 125 metros cuadrados, con amplias zonas de estar diáfanas, cocinas amuebladas, armarios empotrados y grandes ventanales que llenan la vivienda de luz natural. Cada villa está construida en parcelas privadas a partir de 400 metros cuadrados, lo que le proporciona espacio, privacidad y la oportunidad de disfrutar de la vida al aire libre en un entorno tranquilo. El precio final depende del modelo de villa, el sistema de construcción y la parcela seleccionada. Este precio de referencia incluye una parcela valorada en 85 500 euros, con ajustes si se elige una parcela diferente. Espacios exteriores diseñados para el relax Disfrute del estilo de vida mediterráneo con jardines privados, una piscina de 6 x 3 metros, un porche cubierto y aparcamiento privado dentro de la parcela. Todas las parcelas están valladas, lo que ofrece privacidad y seguridad. Tanto si desea relajarse junto a la piscina, disfrutar de las vistas a la montaña o recibir invitados, estas villas le ofrecen una experiencia al aire libre excepcional. Construcción de alta calidad y características modernas Entregadas aproximadamente 12 meses después de la aprobación de la licencia, cada villa está construida con altos estándares y características de primera calidad, entre las que se incluyen: Puerta de entrada blindada y puerta motorizada para vehículos Persianas motorizadas en los dormitorios Cocina totalmente amueblada Baños totalmente equipados con tocadores, espejos y mamparas de ducha Preinstalación para aire acondicionado por conductos Sistema de agua caliente aerotérmica Ubicación ideal cerca de la naturaleza y de las principales atracciones Aeropuerto de Alicante: 35 km Playas de la Costa Blanca: 30 km Ciudad y puerto de Alicante: 40 km Elche: 28 km Alenda Golf: 20 km Font del Llop Golf: 25 km Su nueva casa mediterránea le espera Disfrute de la paz, la privacidad y la vida moderna en una de las zonas residenciales más bonitas del interior de Alicante. Póngase en contacto con nosotros hoy mismo para recibir más información o concertar una visita a estas impresionantes villas de nueva construcción en Hondón de las Nieves.

Esta información que se proporciona aquí está sujeta a errores y no forma parte de ningún contrato. La oferta se puede cambiar o retirar sin previo aviso. Los precios no incluyen los costes de compra

Calcular hipoteca

Cambio de divisas

  • Libras: 289.054 GBP
  • Rublo Ruso: 289.054 RUB
  • Franco Suizo: 306.327 CHF
  • Yuan Chino: 2.666.231 CNY
  • Dolar: 390.010 USD
  • Corona Sueca: 3.603.060 SEK
  • Corona Noruega: 3.647.183 NOK

Solicitar información

Responsable del tratamiento: , Finalidad del tratamiento: Gestión y control de los servicios ofrecidos a través de la página Web de Servicios inmobiliarios, Envío de información a traves de newsletter y otros, Legitimación: Por consentimiento, Destinatarios: No se cederan los datos, salvo para elaborar contabilidad, Derechos de las personas interesadas: Acceder, rectificar y suprimir los datos, solicitar la portabilidad de los mismos, oponerse altratamiento y solicitar la limitación de éste, Procedencia de los datos: El Propio interesado, Información Adicional: Puede consultarse la información adicional y detallada sobre protección de datos Aquí.
WhatsApp
ONLINE VIEWINGS