Finestrat · Alicante, Costa Blanca REF: NB-95261 · Villa

804.900€
Habitaciones: 3
Baños: 2
Construidos: 110m2
Parcela: 544m2
Calificación energética: B
Jardín
Piscina privada
Cerrado
Views: Sea
Cerca de Escuelas
Cerca Centro Comercial
Ubicación: Costa, Urbanización
Dormitorios Dobles: 3
Número de plazas de aparcamiento: 1
Aire Acondicionado: Preinstalado
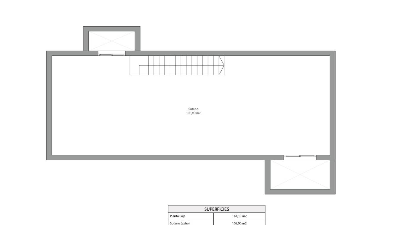
Under-Build / Basement
Parking - Space
Beach: 4000 Meters
Terrace: 50 Msq.
Useable Build Space: 252 Msq.
Toilet: 1
Calificación energética
Calificación energética B

Villas de obra nueva con vistas al mar en Finestrat-Benidorm Exclusivo complejo residencial con vistas al mar y a la ciudad de Benidorm Conjunto de solo 7 villas independientes de obra nueva en Finestrat-Benidorm, que ofrece impresionantes vistas panorámicas al mar Mediterráneo y al skyline de Benidorm. Estas modernas viviendas cuentan con 3 dormitorios, 2 baños y 1 aseo todo en una planta, con la posibilidad de añadir un sótano por un coste extra. Si se elige añadir el sótano, éste tendrá ventilación natural y cruzada mediante 2 patios ingleses en fachadas opuestas, se puede habilitar un dormitorio y un baño extra y además se puede añadir una sala de juegos, despacho, sala de cine o lo que los futuros dueños quieran diseñar. Las viviendas cuentan con parcelas privadas de más de 500 m2 con piscina privada, área de parking y vistas al mar. Construidas con materiales de alta calidad, estas viviendas aprovechan al máximo la luz natural durante todo el día y cuentan con amplias terrazas para disfrutar de los más de 320 días de sol al año de Alicante. Ubicación privilegiada cerca de lo mejor de la Costa Blanca Este exclusivo complejo residencial está situado cerca de algunas de las mejores playas, zonas comerciales e instalaciones de ocio de la Costa Blanca. Distancias a lugares clave: Playas (Levante, Poniente, Cala de Finestrat) - 4 km. Campos de golf (Sierra Cortina, Villaitana) - 1 km. Centro de Benidorm - 5 minutos en coche. Aeropuerto Internacional de Alicante - 40 km (30 minutos en coche). Conexión tren de alta velocidad (AVE) - 30 minutos. La zona ofrece una excelente conectividad y está rodeada de servicios esenciales, como hospitales, colegios, transporte público, centros comerciales y restaurantes. Características Premium para confort y calidad Cada vivienda incluye: Plaza de parking dentro de la parcela. Puerta de seguridad blindada. Ventanas de PVC con rotura de puente térmico y doble acristalamiento. Preinstalación de aire acondicionado por conductos. Sistema de aerotermia para agua caliente. Piscina privada de 36m2. Una oportunidad única de inversión y calidad de vida Situado en la hermosa comarca de la Marina Baixa, Finestrat ofrece un ambiente tranquilo a la vez que se encuentra a pocos minutos de la vibrante Benidorm. Disfrute de lo mejor de ambos mundos: relájese en un entorno sereno mientras tiene acceso a las principales atracciones como Terra Mítica, Aqualandia, Mundomar y Terra Natura. Con su proximidad a playas, campos de golf y actividades al aire libre como senderismo en el Puig Campana, esta es una de las mejores zonas para invertir en la Costa Blanca. ¡No se pierda esta oportunidad única! Póngase en contacto con nosotros hoy mismo para programar una visita y encontrar la casa de sus sueños en Finestrat-Benidorm.

Esta información que se proporciona aquí está sujeta a errores y no forma parte de ningún contrato. La oferta se puede cambiar o retirar sin previo aviso. Los precios no incluyen los costes de compra

Calcular hipoteca

Cambio de divisas

  • Libras: 698.677 GBP
  • Rublo Ruso: 698.677 RUB
  • Franco Suizo: 740.428 CHF
  • Yuan Chino: 6.444.593 CNY
  • Dolar: 942.699 USD
  • Corona Sueca: 8.709.018 SEK
  • Corona Noruega: 8.815.667 NOK

Solicitar información

Responsable del tratamiento: , Finalidad del tratamiento: Gestión y control de los servicios ofrecidos a través de la página Web de Servicios inmobiliarios, Envío de información a traves de newsletter y otros, Legitimación: Por consentimiento, Destinatarios: No se cederan los datos, salvo para elaborar contabilidad, Derechos de las personas interesadas: Acceder, rectificar y suprimir los datos, solicitar la portabilidad de los mismos, oponerse altratamiento y solicitar la limitación de éste, Procedencia de los datos: El Propio interesado, Información Adicional: Puede consultarse la información adicional y detallada sobre protección de datos Aquí.
WhatsApp
ONLINE VIEWINGS