Torrevieja · Alicante, Costa Blanca REF: M-81511 · Villa

449.000€
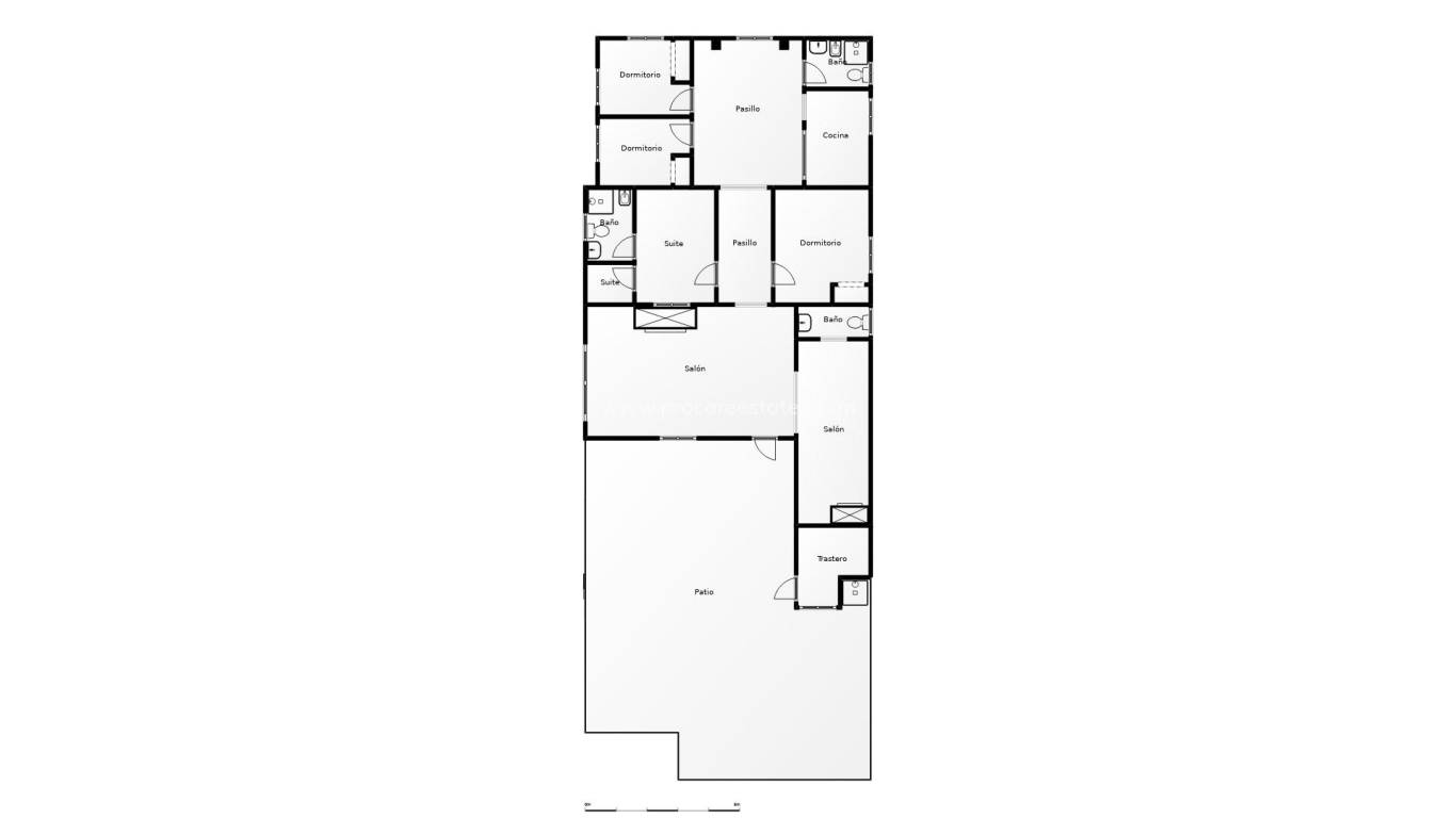
Habitaciones: 4
Baños: 2
Construidos: 309m2
Calificación energética: En proceso
Ceilings
Mirador
Apart. Separate
Alarm Theft
Barbecue
Residencial
Parking
Air-Conditioning
Pool Own
Telephone
Light
Appliances
Wardrobes cupboard
Calificación energética
Calificación energética En proceso

Se presenta una exclusiva propiedad con gran potencial, ubicada a las afueras de Torrevieja, en la prestigiosa urbanización de Los Altos, frente al Hotel Atlas, en una zona con alta afluencia turística y residencial durante todo el año. . La vivienda es perfecta para vivir todo el año y las edificaciones anexas tienen potencial para aumentar el espacio de la vivienda e incluso para obtener un rendimiento utilizándolas para aumentar el espacio útil y utilizarlas como alquiler de larga estancia .. . La finca se compone de dos propiedades independientes sobre una parcela de aproximadamente 440 m2, y un total de aproximadamente 310 m2 construidos, ofreciendo múltiples posibilidades tanto para familias numerosas como para quienes buscan una vivienda con espacio adicional para invitados, alquiler o uso privado como se ha mencionado anteriormente.. . La vivienda principal, en planta baja, destaca por su amplitud, carácter y comodidad. Cuenta con 4 amplias habitaciones y 2 baños completos, uno de ellos adaptado para personas con discapacidad o muy mayores, un gran salón comedor con chimenea y cocina independiente, distribuidos todos los espacios luminosos y confortables pensados para la vida familiar, aunque el corazón de la casa es un gran salón de estilo castellano con chimenea tradicional, que aporta calidez y personalidad a la vivienda. . La finca no tiene acometida de agua . se entregan las dos propiedades totalmente vacías sin mobiliario ni electrodomésticos. . . Desde la vivienda principal se accede directamente al patio comunitario donde se encuentra la piscina privada, creando un entorno perfecto para el descanso, el ocio y reuniones al aire libre.. . La segunda propiedad se trata de un espacio independiente, que anteriormente estaba conectado internamente con la vivienda principal a través de la parcela central de las dos propiedades, pero que actualmente se encuentra separado, lo que permite mantener total privacidad entre ambas zonas o volver a integrarlas fácilmente si se desea.. . Este segundo espacio ofrece múltiples posibilidades de uso una vez realizadas las pertinentes obras de cambio de uso, pudiendo construirse una segunda vivienda, apartamento para invitados, zona familiar adicional o espacio independiente dentro de la misma propiedad.. Cuenta también con una terraza-solarium encima de ésta segunda propiedad ideal para disfrutar del verano, como zona de barbacoas y chill out, dos aseos, perfecta para reunirse en familia o amigos .. . . Ubicación. . Situada en una zona estratégica de Los Altos, rodeada de urbanizaciones residenciales y muy cerca de todos los servicios, la propiedad se encuentra a pocos minutos de playas, centros comerciales, restaurantes, campos de golf y principales conexiones.. . Una propiedad singular, con carácter y versatilidad, ideal para quienes buscan amplitud, privacidad y una ubicación privilegiada en la Costa Blanca y muchas posibilidades de ampliación y conseguir añadir valor a la propiedad actual.. Precio: 449.000€ Impuestos y gastos de compraventa No incluidos (según Normativa aplicable). Se informará del desglose de gastos adicionales antes de la reserva.

Esta información que se proporciona aquí está sujeta a errores y no forma parte de ningún contrato. La oferta se puede cambiar o retirar sin previo aviso. Los precios no incluyen los costes de compra

Calcular hipoteca

Cambio de divisas

  • Libras: 389.745 GBP
  • Rublo Ruso: 389.745 RUB
  • Franco Suizo: 413.035 CHF
  • Yuan Chino: 3.595.008 CNY
  • Dolar: 525.869 USD
  • Corona Sueca: 4.858.180 SEK
  • Corona Noruega: 4.917.673 NOK

Solicitar información

Responsable del tratamiento: , Finalidad del tratamiento: Gestión y control de los servicios ofrecidos a través de la página Web de Servicios inmobiliarios, Envío de información a traves de newsletter y otros, Legitimación: Por consentimiento, Destinatarios: No se cederan los datos, salvo para elaborar contabilidad, Derechos de las personas interesadas: Acceder, rectificar y suprimir los datos, solicitar la portabilidad de los mismos, oponerse altratamiento y solicitar la limitación de éste, Procedencia de los datos: El Propio interesado, Información Adicional: Puede consultarse la información adicional y detallada sobre protección de datos Aquí.
WhatsApp
ONLINE VIEWINGS