Vera · Almería REF: NBS-70995 · Villa

370.000€
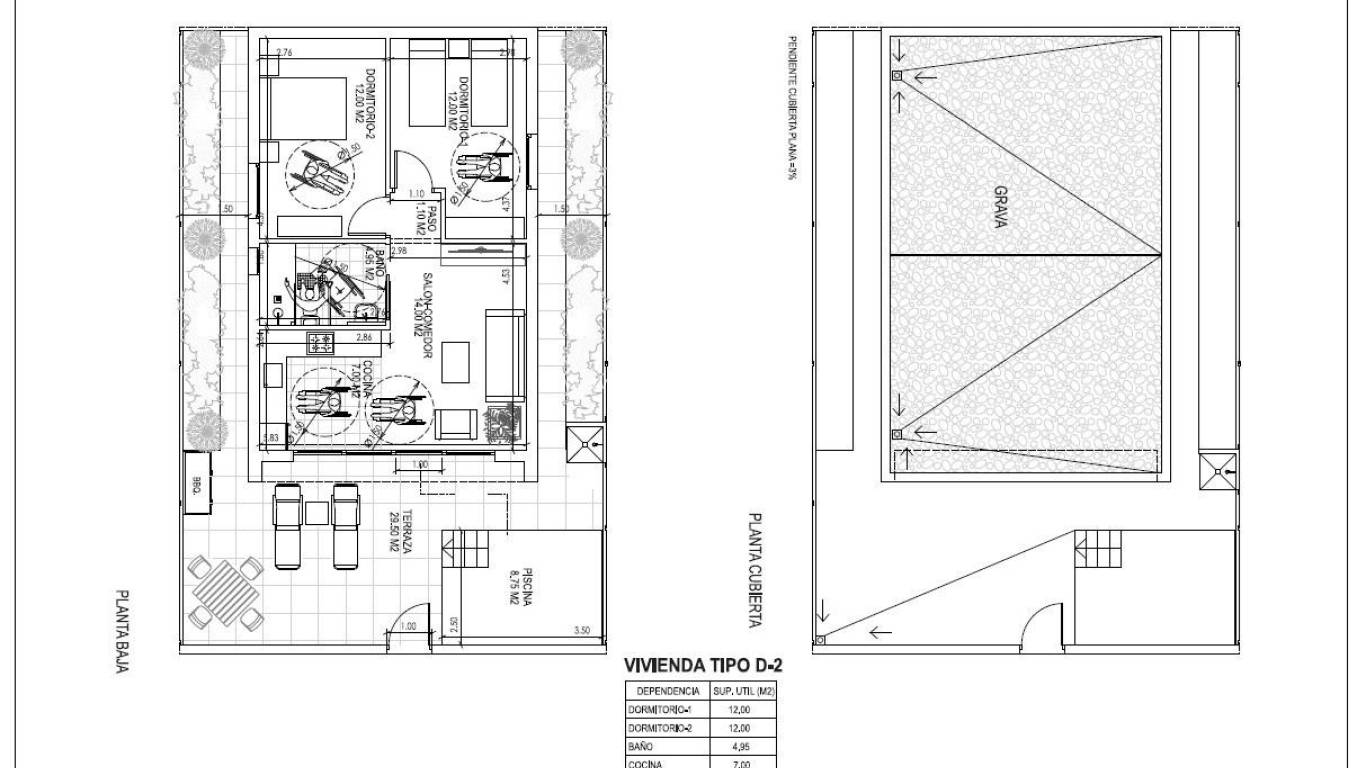
Habitaciones: 2
Baños: 1
Construidos: 56m2
Calificación energética: A
Jardín
Piscina privada
Piscina comunitaria
Games Room
Gym
Cerrado
Views: Sea
Cerca de Escuelas
Near Childrens Parks
Cerca Centro Comercial
Ubicación: Costa, Urbanización
Número de plazas de aparcamiento: 1
Aire Acondicionado: Preinstalado
Double Bedrooms: 2
First Line to the Sea
Parking - Space
Terrace: 56 Msq.
Beach: 20 Meters
Useable Build Space: 51 Msq.
Licensed Tourist Property
Calificación energética
Calificación energética A

Apartamentos turísticos de lujo y villas con playa privada en primera línea de Vera Playa-Almería Exclusivo complejo mediterráneo en Vera Playa Descubra un complejo residencial de lujo único en Vera Playa, una de las zonas costeras más atractivas de Almería. Esta excepcional promoción establece un nuevo estándar de lujo mediterráneo, combinando arquitectura contemporánea, luz natural y proximidad directa al mar. Diseñado para ofrecer privacidad, comodidad y sofisticación, el complejo proporciona un estilo de vida inigualable en una ubicación privilegiada frente al mar. Vera Playa es conocida por sus amplias playas de arena, su ambiente relajado y su excelente clima, lo que la convierte en un destino ideal tanto para la inversión como para la vida vacacional. Elegantes apartamentos y villas privadas junto al mar El proyecto consta de 156 apartamentos turísticos y 44 villas adosadas y unifamiliares, cuidadosamente distribuidas en un entorno ajardinado. Los apartamentos se encuentran en modernos edificios de baja altura y ofrecen distribuciones de 1 y 2 dormitorios. Las viviendas de la planta baja cuentan con amplias terrazas y, en algunas unidades seleccionadas, la opción de un jacuzzi privado; los apartamentos de las plantas intermedias incluyen generosos espacios exteriores con vistas al mar, y los áticos presumen de terrazas y soláriums privados con impresionantes vistas al mar. Las villas representan el máximo nivel de exclusividad dentro del complejo. Situadas en la zona más privilegiada en primera línea, estas viviendas ofrecen 2 dormitorios, 1 baño, piscinas privadas y zonas de barbacoa, lo que permite a los residentes disfrutar de independencia y comodidad a solo unos pasos de la playa. Playa privada e instalaciones de resort de primera categoría Una de las características más destacadas de esta promoción es su playa de arena privada dentro del complejo, que ofrece un entorno seguro con acceso directo a Vera Playa. Los residentes también pueden disfrutar de una amplia gama de servicios al estilo de un resort, que incluyen dos piscinas comunitarias, una de ellas climatizada, un club de playa con gastronomía internacional y un club social con gimnasio, sauna, centro de negocios, club infantil y zona de juegos. Cada propiedad incluye una plaza de aparcamiento exterior, y todo el complejo ha sido diseñado para cumplir con las normas de accesibilidad, incluyendo viviendas adaptadas para personas con movilidad reducida. Ubicación privilegiada con excelente conectividad Centro de Vera a 6 km Acceso directo a la playa de Vera Playa Puerto deportivo de Garrucha a 5 km Mojácar a 10 km Desert Springs Golf a 8 km Valle del Este Golf a 6 km Aeropuerto de Almería a 85 km Futura estación de tren de alta velocidad AVE en las inmediaciones La zona ofrece un fácil acceso a través de las autopistas AP 7 y A 7, lo que garantiza desplazamientos cómodos a lo largo de la costa y a las principales ciudades. Oportunidad de inversión de alto rendimiento Se trata de propiedades turísticas con licencia completa gestionadas por un operador hotelero profesional, lo que permite a los propietarios disfrutar de su uso personal al tiempo que generan ingresos por alquiler cuando no las utilizan. Además, el IVA es deducible, lo que ofrece un ahorro significativo en la compra y mejora el potencial de inversión. Asegúrese su propiedad de lujo en Vera Playa Tanto si busca una vivienda vacacional de primera categoría como una inversión de alto rendimiento en la costa mediterránea, este exclusivo complejo ofrece una oportunidad única. Póngase en contacto con nosotros hoy mismo para obtener más información o concertar una visita y asegurarse su plaza en esta excepcional promoción. 263

Esta información que se proporciona aquí está sujeta a errores y no forma parte de ningún contrato. La oferta se puede cambiar o retirar sin previo aviso. Los precios no incluyen los costes de compra

Calcular hipoteca

Cambio de divisas

  • Libras: 321.171 GBP
  • Rublo Ruso: 321.171 RUB
  • Franco Suizo: 340.363 CHF
  • Yuan Chino: 2.962.479 CNY
  • Dolar: 433.344 USD
  • Corona Sueca: 4.003.400 SEK
  • Corona Noruega: 4.052.425 NOK

Solicitar información

Responsable del tratamiento: , Finalidad del tratamiento: Gestión y control de los servicios ofrecidos a través de la página Web de Servicios inmobiliarios, Envío de información a traves de newsletter y otros, Legitimación: Por consentimiento, Destinatarios: No se cederan los datos, salvo para elaborar contabilidad, Derechos de las personas interesadas: Acceder, rectificar y suprimir los datos, solicitar la portabilidad de los mismos, oponerse altratamiento y solicitar la limitación de éste, Procedencia de los datos: El Propio interesado, Información Adicional: Puede consultarse la información adicional y detallada sobre protección de datos Aquí.
WhatsApp
ONLINE VIEWINGS