Vera · Almería REF: NB-86613 · Attique

395.000€
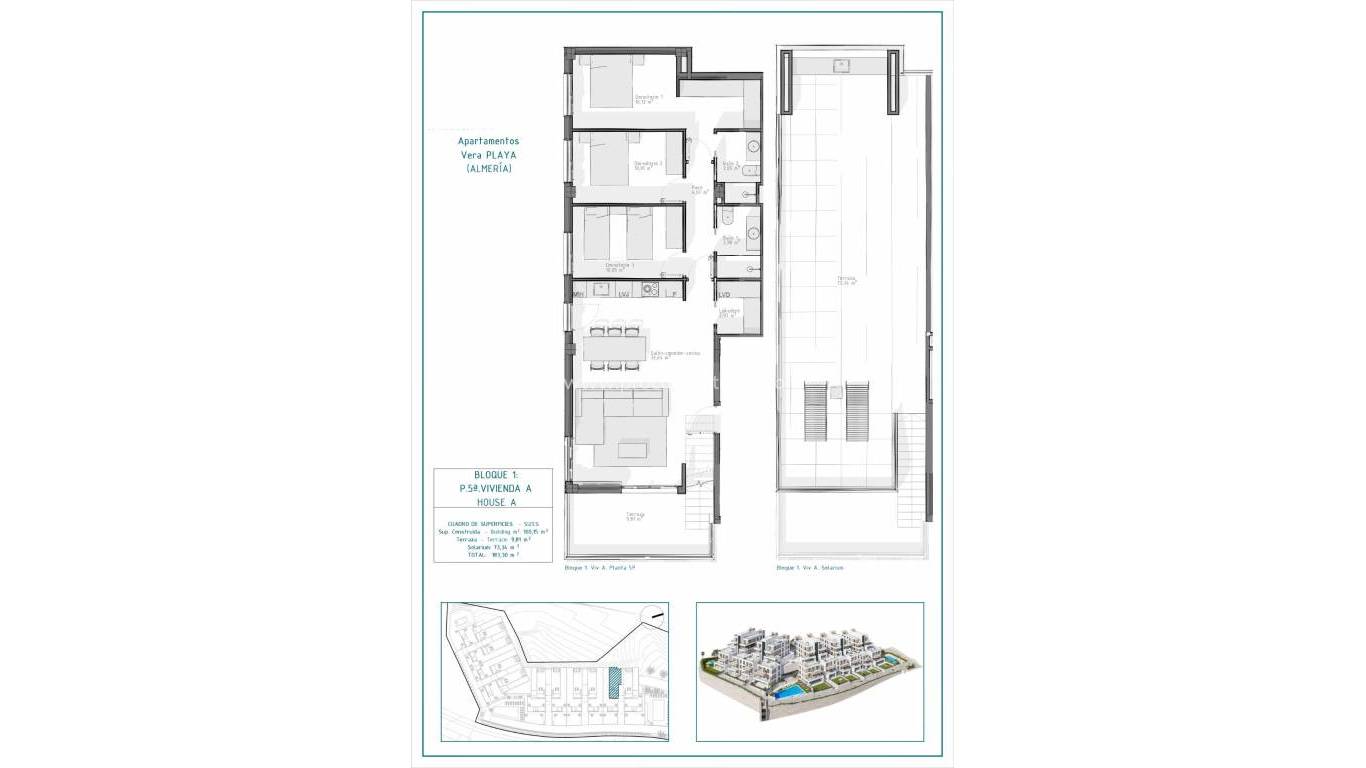
Chambres: 3
Salles de bain: 2
Construit: 100m2
Énergie: B
Piscine communautaire
Solarium: Yes
Elevator/Lift
Fermé
Views: Sea
Près des écoles
Près du centre commercial
Emplacement : Côtier, Urbanisation
Chambres doubles : 3
Nombre de Places de Stationnement : 1
Climatisation : préinstallée
Useable Build Space: 85 Msq.
Parking - Space
Terrace: 82 Msq.
Beach: 1800 Meters
Storage / Trastero
Énergie
Classe énergétique B

Appartements neufs à Vera Playa, Almería – Maisons modernes près de la mer Une vie contemporaine à Pueblo Salinas, à seulement 2 km de la plage Découvrez un superbe nouveau complexe résidentiel situé dans le quartier très prisé de Vera Playa, au sein de l'urbanisation exclusive de Pueblo Salinas. Ce complexe moderne offre un style de vie privilégié à seulement 2 km des plages de Vera (Almería), avec des vues spectaculaires sur la mer et un environnement méditerranéen paisible, idéal pour vivre toute l'année ou passer des vacances agréables. Des maisons élégantes alliant confort et style moderne Ce nouveau projet comprend 60 appartements de haute qualité répartis dans 5 immeubles de faible densité, avec seulement deux propriétés par étage. Choisissez entre des agencements de 2 ou 3 chambres conçus dans un souci de fonctionnalité, de confort et de style. Les options comprennent : Rez-de-chaussée avec jardins privés Appartements intermédiaires avec terrasses spacieuses Penthouses au dernier étage avec grands solariums comprenant une cuisine d'été et une pergola avec panneaux solaires. Toutes les propriétés disposent de : Cuisines ouvertes entièrement équipées avec réfrigérateur intégré, lave-vaisselle, plaque à induction, four, micro-ondes et hotte aspirante Espaces de vie lumineux et éclairage LED dans toute la maison (sauf dans les chambres) Volets motorisés en aluminium dans les chambres Salles de bains aux finitions modernes, avec sèche-serviettes, receveurs de douche avec parois en verre et meubles encastrés Pré-installation de la climatisation gainable Système aérothermique pour une production efficace d'eau chaude Porte d'entrée sécurisée Des équipements collectifs exceptionnels Les résidents bénéficieront d'un accès à un large éventail d'équipements conçus pour améliorer leur confort et leurs loisirs, notamment : Deux piscines extérieures idéales pour les mois d'été Une piscine intérieure chauffée pour une utilisation toute l'année Une place de parking privée et un espace de rangement inclus avec chaque propriété Pré-installation pour la recharge de véhicules électriques dans les parkings Emplacement privilégié avec d'excellentes connexions Vera Playa est une destination côtière très prisée, connue pour ses larges plages de sable et son style de vie décontracté. L'emplacement du complexe offre un accès facile aux services et attractions essentiels : Plage : 2 km Desert Springs Golf Resort : 8 km Centre-ville de Vera : 5 km Port de plaisance et restaurants de Garrucha : 6 km Parque Comercial Mojácar : 10 km Aéroport d'Almería : 85 km (1 heure en voiture) Faites de Vera Playa votre nouveau chez-vous Que vous recherchiez une résidence permanente, une maison de vacances ou un investissement intelligent, ces appartements neufs offrent un rapport qualité-prix inégalé dans l'une des zones les plus prisées de la Costa de Almería. Contactez-nous dès aujourd'hui pour obtenir plus d'informations et planifier votre visite.

Cette information donnée ici est sujette à des erreurs et ne fait partie d'aucun contrat. L'offre peut être modifiée ou retirée sans préavis. Les prix n'incluent pas les coûts d'achat

Calculer les hypothèques

Échange de devises

  • Livres sterling: 342.872 GBP
  • Rouble russe: 342.872 RUB
  • Franc suisse: 363.361 CHF
  • Yuan chinois: 3.162.647 CNY
  • Dollar: 462.624 USD
  • Couronne suédoise: 4.273.900 SEK
  • La couronne norvégienne: 4.326.238 NOK

Demander des informations

Responsable del tratamiento: , Finalidad del tratamiento: Gestión y control de los servicios ofrecidos a través de la página Web de Servicios inmobiliarios, Envío de información a traves de newsletter y otros, Legitimación: Por consentimiento, Destinatarios: No se cederan los datos, salvo para elaborar contabilidad, Derechos de las personas interesadas: Acceder, rectificar y suprimir los datos, solicitar la portabilidad de los mismos, oponerse altratamiento y solicitar la limitación de éste, Procedencia de los datos: El Propio interesado, Información Adicional: Puede consultarse la información adicional y detallada sobre protección de datos Aquí.
WhatsApp
ONLINE VIEWINGS