Orihuela · Alicante, Costa Blanca REF: NB-73276 · Villa

1.250.000€
Chambres: 3
Salles de bain: 3
Construit: 251m2
Intrigue: 700m2
Énergie: B
Près de la propriété Golf / Golf Resort
Près des écoles
Près du centre commercial
Chambres doubles : 3
Location: Rural, Urbanisation
Under-Build / Basement
Number of Parking Spaces: 2
Beach: 7000 Meters
Parking - Space
Terrace: 80 Msq.
Useable Build Space: 130 Msq.
Storage / Trastero
Toilet: 1
Jardin
Piscine privée
Fermé
Énergie
Classe énergétique B

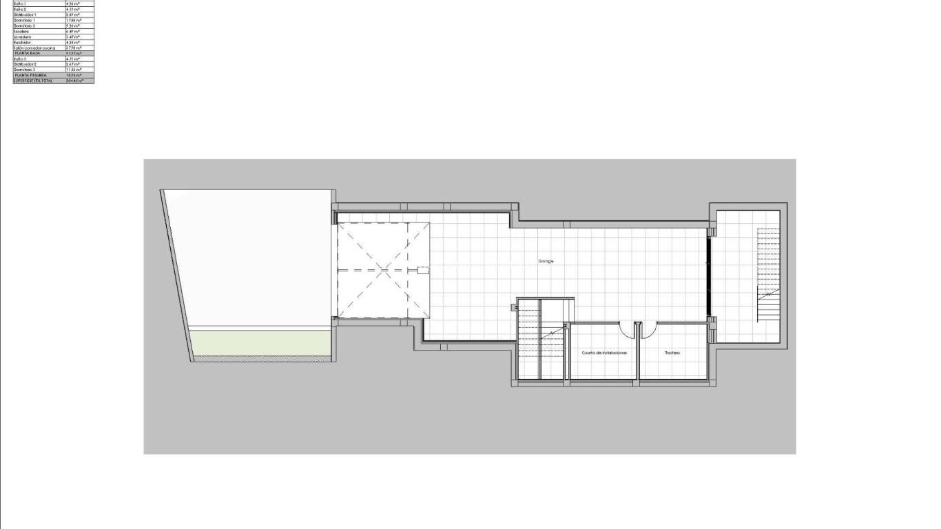
Villa neuve à Las Colinas Golf & Country Club, Orihuela Emplacement exclusif sur la Costa Blanca Sud Cette superbe villa neuve est située à Las Colinas Golf & Country Club, l'un des complexes les plus prestigieux d'Orihuela Costa. Nichée dans une vallée luxuriante de 330 hectares entourée de forêts méditerranéennes et d'espaces verts, la communauté offre un style de vie exclusif avec un maximum d'intimité. La station balnéaire se trouve à seulement 40 km de l'aéroport d'Alicante et à 60 km de l'aéroport de Murcie-Corvera, avec de magnifiques plages méditerranéennes à quelques minutes en voiture. Villa moderne avec un agencement spacieux Conçue dans un souci d'élégance et de confort, cette villa est répartie sur deux étages plus un sous-sol. Elle comprend 3 chambres, chacune avec salle de bains attenante, et des toilettes pour invités. Le rez-de-chaussée comprend une cuisine ouverte sur le salon, deux chambres et un accès à une grande terrasse avec une piscine privée de 60 m² et un jardin paysager. Le premier étage offre une suite privée, tandis que le sous-sol comprend un garage spacieux pour deux voitures, bénéficiant de la lumière naturelle et d'une ventilation via un patio anglais. Qualités et technologie haut de gamme Construite selon les normes les plus élevées, cette villa comprend : Climatisation centrale entièrement installée Chauffage et eau chaude via un système aérothermique Éclairage intérieur LED inclus Salles de bains entièrement équipées avec meubles et parois de douche Cuisine équipée d'appareils électroménagers haut de gamme Système domotique pour un confort et une efficacité maximaux Mode de vie et services du complexe Las Colinas Golf & Country Club est internationalement reconnu pour son parcours de golf 18 trous de championnat, considéré comme l'un des meilleurs d'Espagne. Le complexe offre une large gamme de services aux résidents, notamment des courts de tennis et de padel, une salle de sport moderne, des installations de bien-être et de massage, des restaurants gastronomiques et une supérette proposant du pain frais tous les jours. Avec plus de 200 000 m² de paysages méditerranéens, les résidents peuvent profiter de promenades pittoresques à travers la flore indigène, ainsi que des champs d'orangers et de citronniers. La combinaison de la nature, de l'exclusivité et des services haut de gamme fait de Las Colinas un lieu de vie vraiment unique. Votre maison exclusive à Orihuela Costa vous attend Cette villa à Las Colinas Golf est plus qu'une simple propriété, c'est un style de vie qui allie luxe, intimité et nature. Contactez-nous dès aujourd'hui pour organiser une visite et acquérir votre nouvelle maison dans l'un des complexes les plus prestigieux de la Costa Blanca Sud.

Cette information donnée ici est sujette à des erreurs et ne fait partie d'aucun contrat. L'offre peut être modifiée ou retirée sans préavis. Les prix n'incluent pas les coûts d'achat

Calculer les hypothèques

Échange de devises

  • Livres sterling: 1.085.038 GBP
  • Rouble russe: 1.085.038 RUB
  • Franc suisse: 1.149.875 CHF
  • Yuan chinois: 10.008.375 CNY
  • Dollar: 1.464.000 USD
  • Couronne suédoise: 13.525.000 SEK
  • La couronne norvégienne: 13.690.625 NOK

Demander des informations

Responsable del tratamiento: , Finalidad del tratamiento: Gestión y control de los servicios ofrecidos a través de la página Web de Servicios inmobiliarios, Envío de información a traves de newsletter y otros, Legitimación: Por consentimiento, Destinatarios: No se cederan los datos, salvo para elaborar contabilidad, Derechos de las personas interesadas: Acceder, rectificar y suprimir los datos, solicitar la portabilidad de los mismos, oponerse altratamiento y solicitar la limitación de éste, Procedencia de los datos: El Propio interesado, Información Adicional: Puede consultarse la información adicional y detallada sobre protección de datos Aquí.
WhatsApp
ONLINE VIEWINGS