Torrevieja · Alicante, Costa Blanca REF: NB-38794 · Villa

750.000€
Chambres: 4
Salles de bain: 4
Construit: 238m2
Intrigue: 420m2
Énergie: B
Jardin
Piscine privée
Key ready
Solarium: Yes
Fermé
Near Trees
Près des écoles
Près du centre commercial
Nombre de Places de Stationnement : 1
Climatisation : préinstallée
Under-Build / Basement
Beach: 1200 Meters
Double Bedrooms: 4
Parking - Space
Location: Coastal
Useable Build Space: 180 Msq.
Terrace: 102 Msq.
Storage / Trastero
Énergie
Classe énergétique B

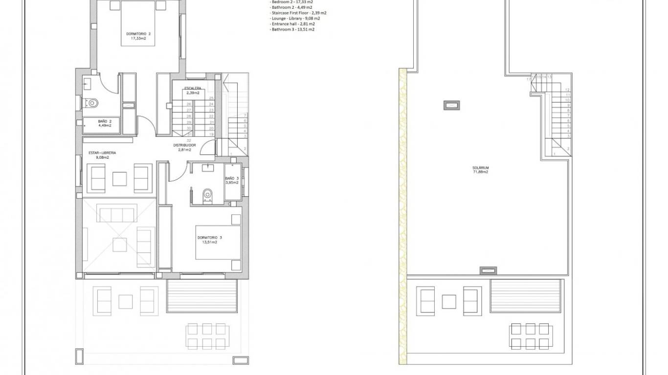
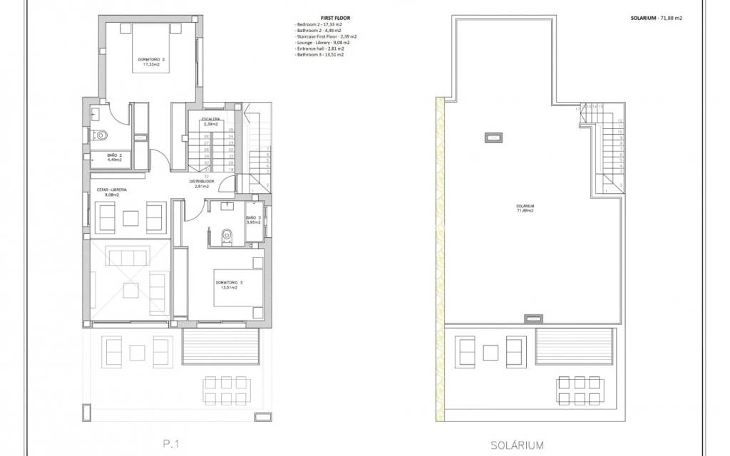
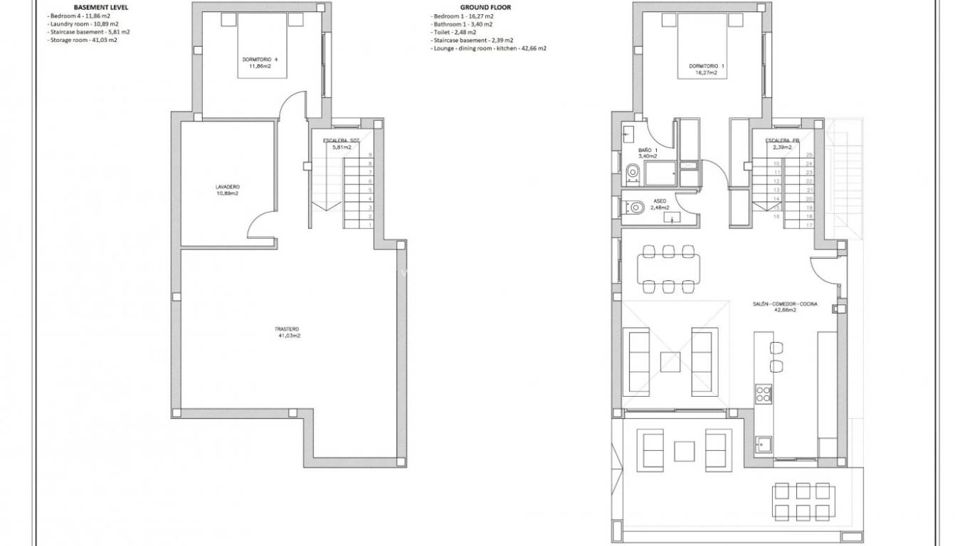
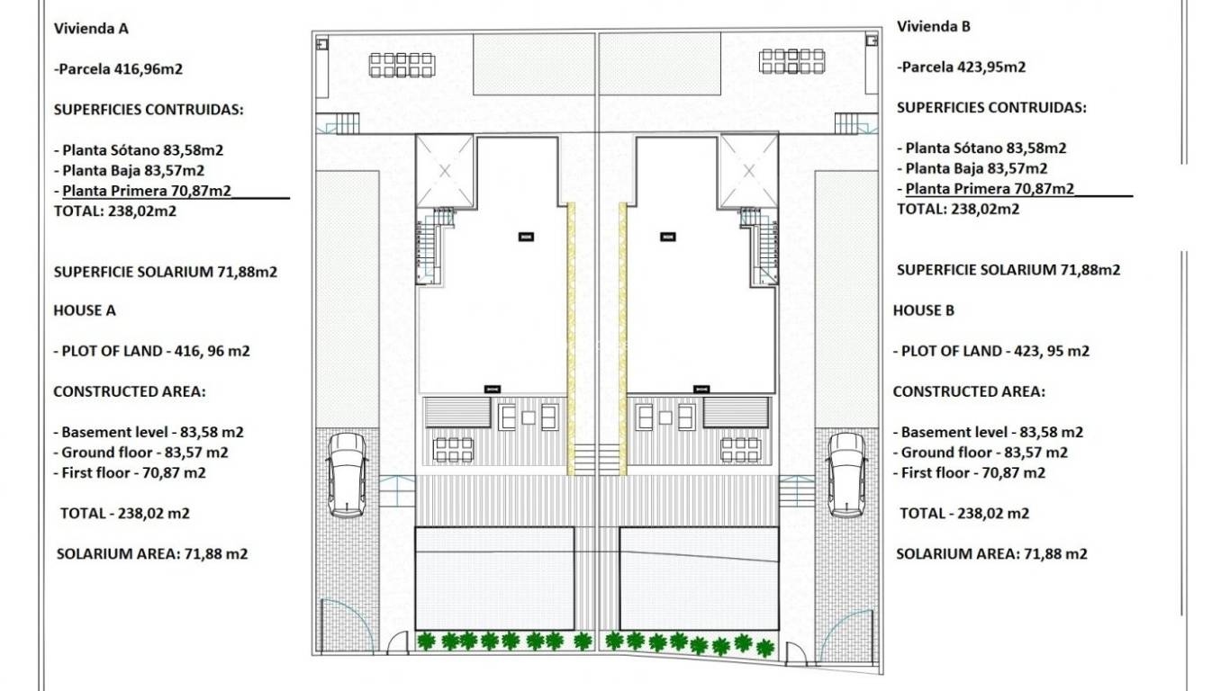
2 NOUVELLES VILLAS À TORREVIEJA 2 Nouvelles belles villas à Torrevieja. Villas a 4 chambres à coucher, 4 salles de bains, cuisine ouverte sur le salon, placards, jardin privé avec la piscine et un espace de stationnement hors route, solarium privé et sous-sol. Villas situé à 15 minutes à pied de la célèbre Playa de La Mata (5 minutes en voiture). Torrevieja est une ville espagnole de la province d'Alicante, sur la Costa Blanca. Elle est connue pour son climat et son littoral typiquement méditerranéens. Elle possède des promenades avec des stations balnéaires le long de ses plages de sable. Le petit musée de la mer et du sel abrite des expositions sur l'histoire de la pêche et du sel de la ville. À l'intérieur, le parc naturel Lagunas de La Mata-Torrevieja dispose de sentiers et de deux lagunes salées, l'une rose et l'autre verte. L'aéroport d'Alicante se trouve à 40 minutes et celui de Murcie à environ 1 heure.

Cette information donnée ici est sujette à des erreurs et ne fait partie d'aucun contrat. L'offre peut être modifiée ou retirée sans préavis. Les prix n'incluent pas les coûts d'achat

Calculer les hypothèques

Échange de devises

  • Livres sterling: 651.023 GBP
  • Rouble russe: 651.023 RUB
  • Franc suisse: 689.925 CHF
  • Yuan chinois: 6.005.025 CNY
  • Dollar: 878.400 USD
  • Couronne suédoise: 8.115.000 SEK
  • La couronne norvégienne: 8.214.375 NOK

Demander des informations

Responsable del tratamiento: , Finalidad del tratamiento: Gestión y control de los servicios ofrecidos a través de la página Web de Servicios inmobiliarios, Envío de información a traves de newsletter y otros, Legitimación: Por consentimiento, Destinatarios: No se cederan los datos, salvo para elaborar contabilidad, Derechos de las personas interesadas: Acceder, rectificar y suprimir los datos, solicitar la portabilidad de los mismos, oponerse altratamiento y solicitar la limitación de éste, Procedencia de los datos: El Propio interesado, Información Adicional: Puede consultarse la información adicional y detallada sobre protección de datos Aquí.
WhatsApp
ONLINE VIEWINGS