Els Poblets · Alicante, Costa Blanca REF: NB-42448 · Villa

475.000€
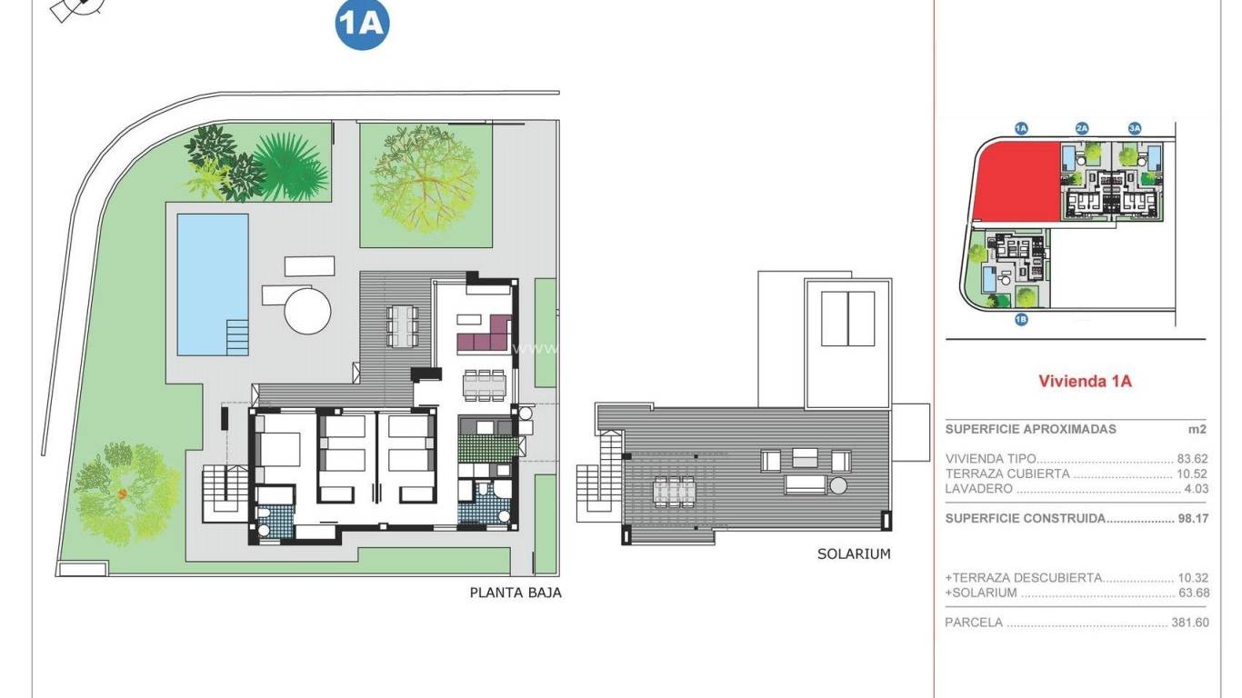
Chambres: 3
Salles de bain: 2
Construit: 98m2
Intrigue: 381m2
Énergie: B
Solarium: Yes
Près des écoles
Près du centre commercial
Chambres doubles : 3
Nombre de Places de Stationnement : 1
Useable Build Space: 83 Msq.
Parking - Space
Location: Coastal
Terrace: 83 Msq.
Beach: 1600 Meters
Jardin
Énergie
Classe énergétique B

VILLAS NEUVES A ELS POBLETS La nouvelle construction comprendra 4 magnifiques propriétés avec jardins, parking privé et la possibilité d'une piscine privée. Dans un emplacement imbattable, à proximité du centre-ville, du centre commercial et de tous les services, des maisons de trois chambres à coucher, deux salles de bains avec jardin et solarium seront construites. Les nouvelles villas sont construites sur un étage et disposent de 3 chambres à coucher, 2 salles de bains, une cuisine ouverte sur le salon, des armoires équipées, un jardin privé avec un espace de stationnement hors route, un solarium privé. Possibilité de piscine privée moyennant un supplément. Caractéristiques : -Placards doublés intégrés, distribués avec barre de suspension, tiroirs et éclairage LED intérieur. -Installation d'un éclairage LED linéaire dans toute la maison. -Installation de conduits d'air conditionné dans le salon et les chambres (y compris la machine). -Chargeurs USB dans les chambres. -Installation de panneaux photovoltaïques individuels sans batterie sur le toit conformément à la réglementation. -Pré-installation d'un chargeur de voiture électrique. -Structure en béton armé. -Façade avec finition monocouche. -Menuiserie extérieure en PVC à rupture de pont thermique, double vitrage avec chambre d'air de type ¨Climalit¨ et faible émissivité. -Porte d'entrée blindée. -Revêtement de sol intérieur en porcelaine ou similaire, la plinthe sera laquée pour s'harmoniser avec la menuiserie intérieure. -Parois verticales des salles de bains et des toilettes en porcelaine ou similaire. -Murs recouverts d'une peinture plastique lisse. -Cuisine avec armoires hautes et basses, plan de travail en Silestone ou similaire, équipée d'une plaque de cuisson à induction avec système de ventilation intégré et d'un four électrique. -Sanitaires en porcelaine vitrifiée suspendus avec réservoir de chasse d'eau intégré. -Receveurs de douche plats en résine, avec parois de douche incluses. - Lavabo avec armoire et miroir avec éclairage LED intégré dans toutes les salles de bains et les toilettes. -Robinets mélangeurs. -Portes intérieures laquées blanches. Els Poblets est situé entre Alicante et Valence, à une heure de l'un ou l'autre aéroport. Els Poblets se trouve dans une plaine formée par les sols alluviaux de la rivière Girona. Elle s'étend sur environ 1 km de côte sur la Méditerranée et contient la plage d'Almadrava. À la frontière de Denia et d'El Verger, il y a 24 km de magnifiques plages BLUE FLAG à choisir. La ville et la plage se trouvent à environ 1 km l'une de l'autre. Alors que de nombreuses villes côtières espagnoles sont fermées en hiver, Els Poblets est ouverte toute l'année avec toutes les commodités telles que bars, banques, magasins, restaurants, supermarchés, coiffeurs et c'est une ville accueillante avec des nationalités mélangées, principalement espagnoles avec quelques ex-patrons.

Cette information donnée ici est sujette à des erreurs et ne fait partie d'aucun contrat. L'offre peut être modifiée ou retirée sans préavis. Les prix n'incluent pas les coûts d'achat

Calculer les hypothèques

Échange de devises

  • Livres sterling: 412.314 GBP
  • Rouble russe: 412.314 RUB
  • Franc suisse: 436.953 CHF
  • Yuan chinois: 3.803.183 CNY
  • Dollar: 556.320 USD
  • Couronne suédoise: 5.139.500 SEK
  • La couronne norvégienne: 5.202.438 NOK

Demander des informations

Responsable del tratamiento: , Finalidad del tratamiento: Gestión y control de los servicios ofrecidos a través de la página Web de Servicios inmobiliarios, Envío de información a traves de newsletter y otros, Legitimación: Por consentimiento, Destinatarios: No se cederan los datos, salvo para elaborar contabilidad, Derechos de las personas interesadas: Acceder, rectificar y suprimir los datos, solicitar la portabilidad de los mismos, oponerse altratamiento y solicitar la limitación de éste, Procedencia de los datos: El Propio interesado, Información Adicional: Puede consultarse la información adicional y detallada sobre protección de datos Aquí.
WhatsApp
ONLINE VIEWINGS