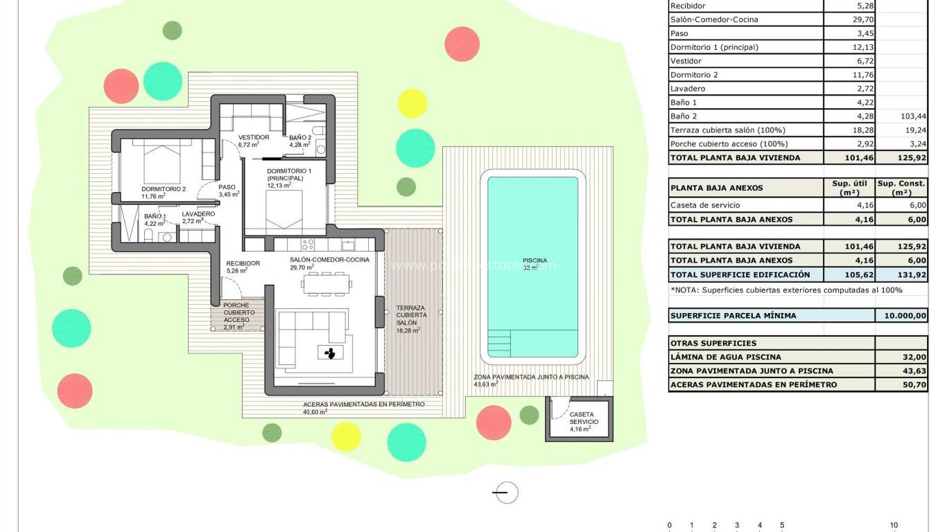
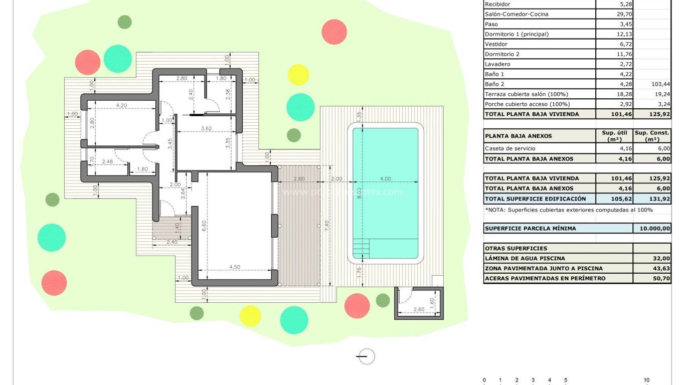
Villas neuves sur de vastes terrains rustiques à Pinoso, Alicante Une vie méditerranéenne paisible au cœur de la nature Découvrez ce projet exclusif de villas neuves à Pinoso, une charmante ville de l'intérieur de la province d'Alicante, connue pour son caractère espagnol traditionnel, ses magnifiques paysages montagneux et son environnement paisible. Parfaites pour ceux qui recherchent l'intimité et l'espace, ces villas sont construites sur des terrains rustiques de plus de 10 000 m² et offrent la combinaison parfaite entre le confort moderne et la vie à la campagne, à seulement 45 km de la côte. Villas personnalisables avec de multiples options d'aménagement Choisissez parmi plusieurs modèles de villas avec 2, 3 ou 4 chambres et 2 salles de bains (dont une en suite), toutes conçues sur un seul étage pour offrir un maximum de confort. Le prix final est calculé en fonction du modèle choisi, du système de construction (dalle ou structure) et du terrain sélectionné. Pour cette annonce, un terrain au prix de 73 000 euros a été pris en compte. Si vous choisissez un autre terrain, la différence sera à payer en fonction du prix de celui-ci. Chaque villa dispose d'une grande cuisine et d'un salon ouverts, de placards encastrés et de finitions de haute qualité dans toutes les pièces. Les grandes baies vitrées inondent les maisons de lumière naturelle et assurent une intégration parfaite entre les espaces intérieurs et extérieurs. Des espaces extérieurs exceptionnels avec piscine privée Chaque propriété est située dans une zone clôturée d'environ 2 500 m² au sein d'un terrain rustique de 10 000 m², ce qui garantit une grande intimité et beaucoup d'espace. Les villas comprennent une piscine privée de 8 x 4 m, un porche, un débarras et un parking extérieur privé. Profitez de la vue paisible sur la campagne et les montagnes environnantes tout en vous relaxant dans votre piscine ou en recevant vos invités dans votre grand jardin. Construction de haute qualité et caractéristiques modernes Construites dans le cadre d'un programme d'autopromotion avec une livraison environ 12 mois après l'obtention du permis, chaque villa est équipée de spécifications de première qualité, notamment : Porte d'entrée blindée et porte motorisée pour les véhicules Volets roulants motorisés dans les chambres Cuisine entièrement équipée Salles de bains avec meubles, miroirs et parois de douche Pré-installation pour la climatisation par conduits Système d'eau chaude aérothermique Emplacement privilégié à proximité de destinations clés Pinoso offre tous les services essentiels, tels que des magasins, des restaurants, des écoles et des services de santé, tout en conservant une atmosphère détendue et authentiquement espagnole. Il est entouré de parcs naturels, de vignobles et de sentiers de randonnée, idéaux pour les amateurs de plein air. Distances clés : Elche : 33 km Plages de la Costa Blanca : 45 km Aéroport d'Alicante : 45 km Votre refuge rural idéal à Alicante Ces villas nouvellement construites à Pinoso allient la tranquillité de la vie rurale au confort d'un design moderne, ce qui les rend idéales pour y vivre à l'année, y passer des vacances ou comme investissement. Contactez-nous dès aujourd'hui pour obtenir plus d'informations ou pour commencer à concevoir la maison de vos rêves à Pinoso.
Cette information donnée ici est sujette à des erreurs et ne fait partie d'aucun contrat. L'offre peut être modifiée ou retirée sans préavis. Les prix n'incluent pas les coûts d'achat