Torrevieja · Alicante, Costa Blanca REF: NB-38784 · Appartement

290.000€
Chambres: 2
Salles de bain: 2
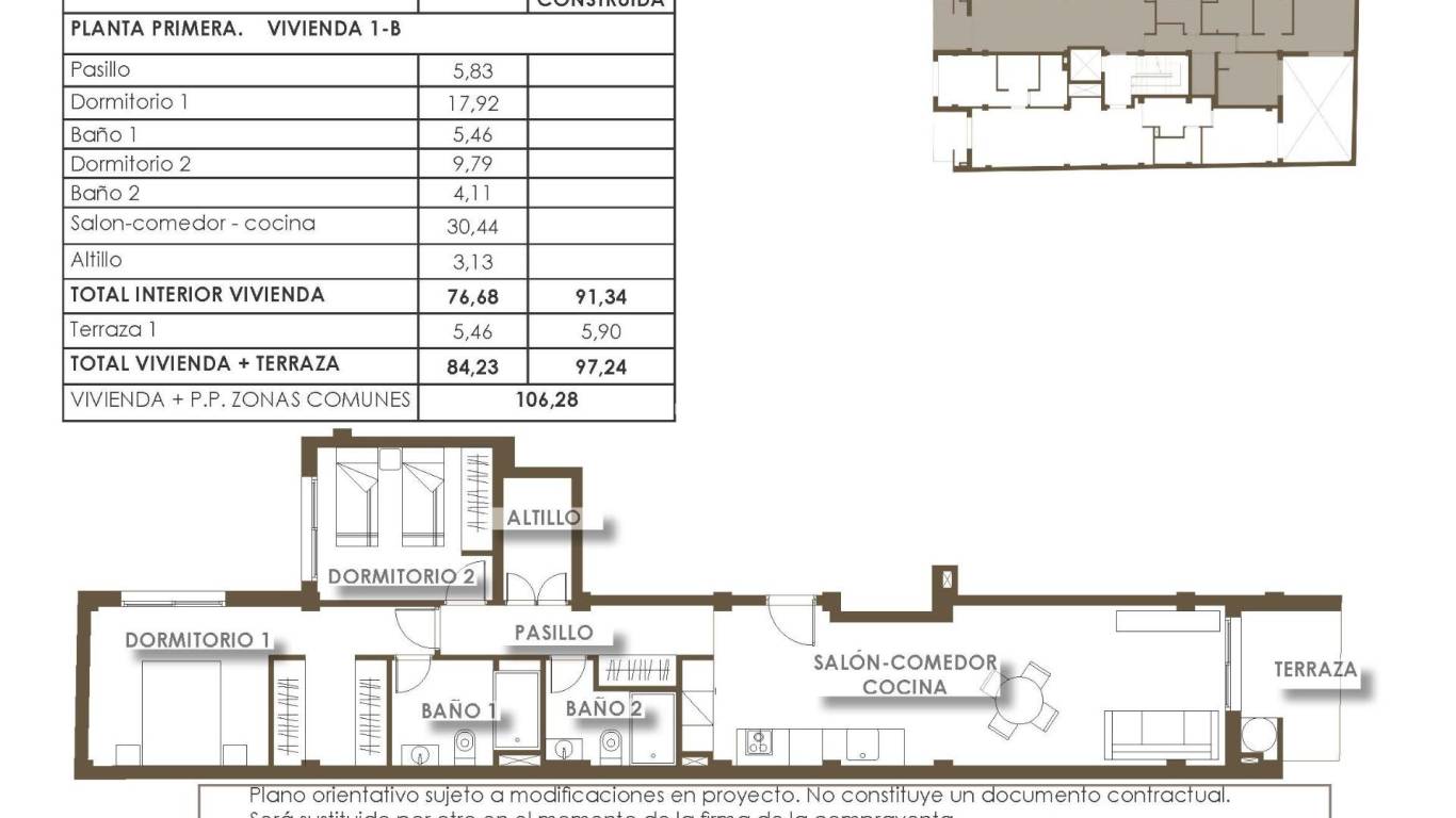
Construit: 91m2
Énergie: B
Piscine communautaire
Elevator/Lift
Fermé
Space
Près des écoles
Near Childrens Parks
Près du centre commercial
Climatisation : préinstallée
Double Bedrooms: 2
Useable Build Space: 76 Msq.
Beach: 150 Meters
Location: Coastal
Terrace: 5 Msq.
Énergie
Classe énergétique B

Appartements modernes neufs au cœur de Torrevieja Emplacement privilégié à seulement 150 m de la mer Ce nouveau complexe exceptionnel est situé en plein centre de Torrevieja, à seulement 150 m des piscines naturelles et de la promenade en bord de mer, et à seulement 500 m de Playa del Cura. Entouré d'une large gamme de services, notamment des magasins, des supermarchés, des parcs, des cafés et des restaurants, le quartier offre tout ce dont vous avez besoin à quelques pas. La combinaison du confort urbain et de la tranquillité côtière en fait l'un des quartiers résidentiels les plus attrayants de la ville. Appartements contemporains avec 1 ou 2 chambres Le projet propose des appartements modernes comprenant 1 ou 2 chambres et 1 ou 2 salles de bains, dont deux penthouses exclusifs avec solarium privé, barbecue et piscine privée. Toutes les maisons sont conçues avec des agencements ouverts qui maximisent la lumière naturelle, et comprennent des terrasses spacieuses et des cuisines élégantes de style américain. Chaque appartement comprend une cuisine entièrement équipée avec des appareils électroménagers, des salles de bains complètes avec des meubles, des parois de douche et le chauffage au sol, ainsi que l'éclairage intérieur. Il y a également une préinstallation pour la climatisation centralisée, garantissant un confort tout au long de l'année. Des espaces communs attrayants pour la détente Les résidents peuvent profiter d'excellentes installations communes conçues pour le bien-être et les loisirs. Le rez-de-chaussée dispose d'une piscine commune rafraîchissante et d'un sauna relaxant. La terrasse sur le toit offre un solarium commun, idéal pour prendre le soleil et profiter de l'atmosphère méditerranéenne. Profitez d'un environnement côtier et naturel unique Torrevieja est réputée pour son climat méditerranéen doux, avec une température moyenne annuelle de 20 ºC, parfaite pour vivre toute l'année. La ville abrite les célèbres lacs salés et le parc naturel protégé de La Mata et Torrevieja, situé à seulement 4 km du complexe. Avec ses lagunes roses et vertes, ses sentiers de randonnée pittoresques et sa faune diversifiée, il offre un cadre naturel sain et inspirant. Distances par rapport aux principaux points d'intérêt Puerto Deportivo de Torrevieja 1 km Parque Natural de La Mata 4 km Villamartin Golf 8 km Aéroport d'Alicante 45 km Aéroport de Murcie 60 km Vivez le style de vie méditerranéen Assurez-vous une maison moderne dans l'une des villes côtières les plus prisées de la Costa Blanca. Contactez-nous dès aujourd'hui pour planifier une visite et réserver votre place dans ce nouveau développement exceptionnel.

Cette information donnée ici est sujette à des erreurs et ne fait partie d'aucun contrat. L'offre peut être modifiée ou retirée sans préavis. Les prix n'incluent pas les coûts d'achat

Calculer les hypothèques

Échange de devises

  • Livres sterling: 251.729 GBP
  • Rouble russe: 251.729 RUB
  • Franc suisse: 266.771 CHF
  • Yuan chinois: 2.321.943 CNY
  • Dollar: 339.648 USD
  • Couronne suédoise: 3.137.800 SEK
  • La couronne norvégienne: 3.176.225 NOK

Demander des informations

Responsable del tratamiento: , Finalidad del tratamiento: Gestión y control de los servicios ofrecidos a través de la página Web de Servicios inmobiliarios, Envío de información a traves de newsletter y otros, Legitimación: Por consentimiento, Destinatarios: No se cederan los datos, salvo para elaborar contabilidad, Derechos de las personas interesadas: Acceder, rectificar y suprimir los datos, solicitar la portabilidad de los mismos, oponerse altratamiento y solicitar la limitación de éste, Procedencia de los datos: El Propio interesado, Información Adicional: Puede consultarse la información adicional y detallada sobre protección de datos Aquí.
WhatsApp
ONLINE VIEWINGS