Vera · Almería REF: NBS-74133 · Appartement

180.000€
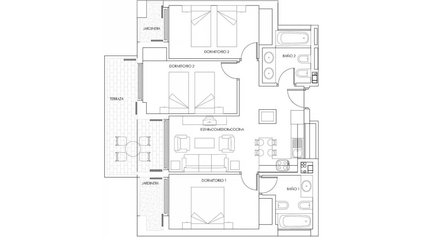
Chambres: 3
Salles de bain: 2
Construit: 93m2
Énergie: B
Furnished
Piscine communautaire
Games Room
Gym
Elevator/Lift
Fermé
Près des écoles
Near Childrens Parks
Près du centre commercial
Emplacement : Côtier, Urbanisation
Chambres doubles : 3
Nombre de Places de Stationnement : 1
Useable Build Space: 85 Msq.
Parking - Space
Terrace: 12 Msq.
Beach: 700 Meters
Licensed Tourist Property
Énergie
Classe énergétique B

Appartements touristiques sous licence destinés à l'investissement près de la plage à Vera, Almería Complexe immobilier exclusif de style resort à Puerto Vera Découvrez une opportunité unique d'investir dans un complexe d'appartements touristiques entièrement géré, situé à Puerto Vera, dans le quartier très prisé de Puerto Rey à Vera, Almería. Ce complexe exclusif se compose de 181 appartements entièrement rénovés répartis dans 7 immeubles, conçus pour offrir une combinaison parfaite entre art de vivre, confort et rentabilité. Situé à seulement 700 mètres de la plage de Puerto Rey et à quelques pas d'El Playazo de Vera, cet emplacement est idéal pour profiter du climat méditerranéen et d'un environnement côtier préservé. Un investissement intelligent avec un potentiel locatif garanti Ce projet est spécialement conçu pour les investisseurs à la recherche d'un bien immobilier sans souci offrant un fort rendement locatif. Chaque appartement est doté d'une licence touristique et est géré par un opérateur professionnel. Les propriétaires peuvent profiter d'une utilisation personnelle du bien jusqu'à 2 mois par an, tandis que la société de gestion se charge des locations le reste du temps, générant ainsi des revenus. De plus, ce type de bien bénéficie du remboursement de la TVA, offrant des avantages financiers significatifs aux acheteurs. Appartements modernes, entièrement équipés et meublés Le complexe propose des appartements de 1, 2 et 3 chambres avec 1 ou 2 salles de bains, disponibles en rez-de-chaussée avec de grandes terrasses, à l'étage intermédiaire ou en penthouse, certains avec solarium privé. Tous les logements sont livrés entièrement meublés et équipés, avec climatisation, Wi-Fi et cuisine moderne dotée d'appareils électroménagers tels que four, lave-vaisselle, micro-ondes et lave-linge. Chaque propriété comprend également une place de parking souterrain. Installations et équipements de style resort Les résidents et leurs invités peuvent profiter d’un large éventail d’installations communes haut de gamme conçues pour offrir une expérience de vacances complète. Celles-ci comprennent des piscines extérieures, une salle de sport entièrement équipée, un centre d’affaires, un restaurant, un mini-cinéma et un club pour enfants dédié avec un espace de jeux. Le complexe est conçu pour offrir confort, loisirs et détente en un seul endroit, ce qui le rend très attractif tant pour les vacanciers que pour les investisseurs. Découvrez Vera et ses environs Vera est une charmante ville côtière réputée pour ses plages naturelles et son mode de vie décontracté. La région offre un accès facile à des attractions culturelles et naturelles telles que Mojácar (à 8 km), la marina de Garrucha (à 6 km), le parc naturel de Cabo de Gata (à 60 km) et le désert de Tabernas (à 70 km). Les amateurs de golf apprécieront les parcours à proximité, tels que Desert Springs Golf (à 8 km), Valle del Este Golf (à 5 km) et Marina Golf Mojácar (à 7 km). L'aéroport d'Almería se trouve à environ 85 km. Une nouvelle gare de train à grande vitesse, actuellement en projet, améliorera considérablement les liaisons dans la région ainsi que la valeur des biens immobiliers situés à cet endroit. Une opportunité d'investissement unique sur la Costa de Almería Ce programme immobilier allie emplacement, services et rentabilité, ce qui en fait un choix idéal pour les investisseurs à la recherche d'un rendement sûr et attractif. Contactez-nous dès aujourd'hui pour recevoir plus d'informations ou organiser une visite et réserver votre bien immobilier à Vera. 263

Cette information donnée ici est sujette à des erreurs et ne fait partie d'aucun contrat. L'offre peut être modifiée ou retirée sans préavis. Les prix n'incluent pas les coûts d'achat

Calculer les hypothèques

Échange de devises

  • Livres sterling: 156.245 GBP
  • Rouble russe: 156.245 RUB
  • Franc suisse: 165.582 CHF
  • Yuan chinois: 1.441.206 CNY
  • Dollar: 210.816 USD
  • Couronne suédoise: 1.947.600 SEK
  • La couronne norvégienne: 1.971.450 NOK

Demander des informations

Responsable del tratamiento: , Finalidad del tratamiento: Gestión y control de los servicios ofrecidos a través de la página Web de Servicios inmobiliarios, Envío de información a traves de newsletter y otros, Legitimación: Por consentimiento, Destinatarios: No se cederan los datos, salvo para elaborar contabilidad, Derechos de las personas interesadas: Acceder, rectificar y suprimir los datos, solicitar la portabilidad de los mismos, oponerse altratamiento y solicitar la limitación de éste, Procedencia de los datos: El Propio interesado, Información Adicional: Puede consultarse la información adicional y detallada sobre protección de datos Aquí.
WhatsApp
ONLINE VIEWINGS