Orihuela · Alicante, Costa Blanca REF: NBS-72201 · Villa

469.900€
Slaapkamers: 3
Badkamers: 2
Gebouwd: 114m2
Plot: 298m2
Energy Rating: B
Nabij Commercieel Centrum
Dubbele slaapkamers: 3
Aantal parkeerplaatsen: 1
Location: Urbanisation
Parking - Space
Useable Build Space: 100 Msq.
Beach: 14000 Meters
Terrace: 121 Msq.
Prive zwembad
Solarium: Yes
Omheind
In de buurt van Golf / Golf Resort eigendom
In de buurt van scholen
Energy Rating
Energielabel B

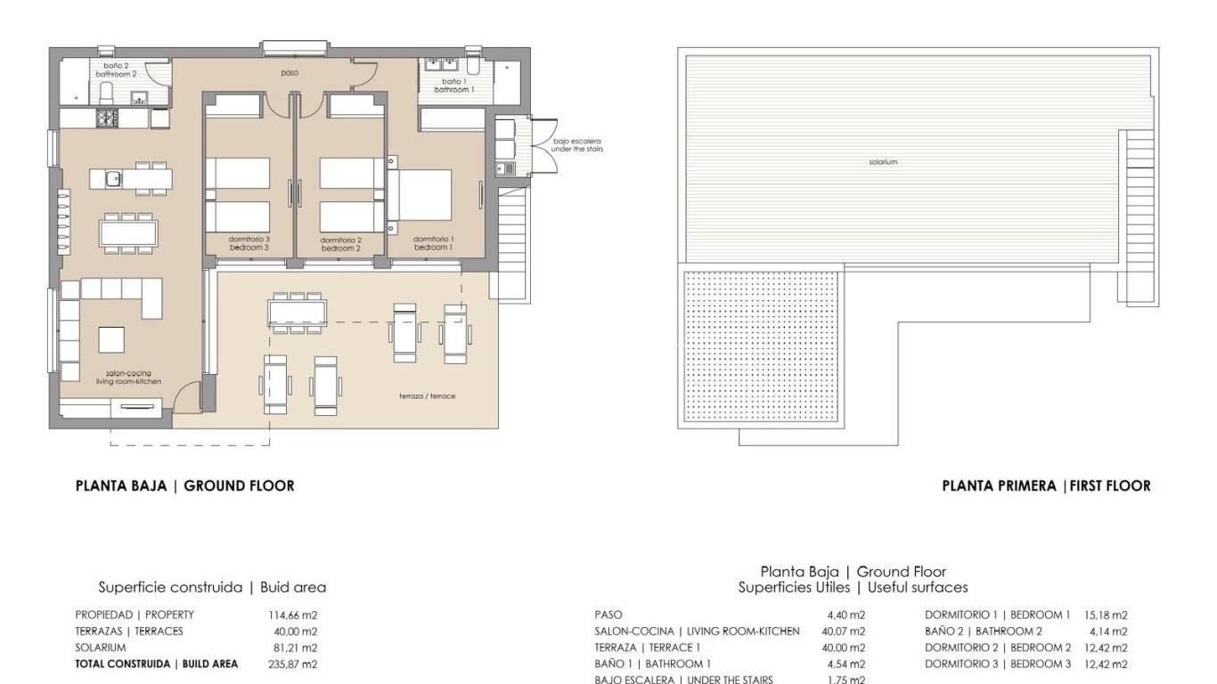
Nieuwbouwwoningen in Vistabella Golf Resort – Orihuela Ervaar het moderne mediterrane leven in het hart van de Costa Blanca met deze prachtige nieuwbouwwoningen in Vistabella Golf Resort. Gelegen tussen San Miguel de Salinas en Los Montesinos, in de gemeente Orihuela, biedt dit exclusieve project luxe, comfort en een ongeëvenaarde locatie voor zowel golfliefhebbers als mensen die op zoek zijn naar een bepaalde levensstijl. Twee verschillende villamodellen Kopers kunnen kiezen uit twee elegante ontwerpen: Gelijkvloerse villa's met 3 slaapkamers, 2 badkamers en een solarium op het dak. Villa's met twee verdiepingen, 4 slaapkamers, 3 badkamers en een solariumterras op de eerste verdieping. Beide modellen staan op percelen van ongeveer 300 m² en beschikken over een privézwembad en parkeergelegenheid op het terrein. Premium kwaliteit en modern comfort Elke villa is voorzien van luxe afwerkingen, waaronder volledig geïnstalleerde airconditioning, ingerichte keukens met apparatuur, buitenverlichting, elektrische rolluiken en elegante doucheschermen in de badkamers. De combinatie van stijl en functionaliteit zorgt voor een woning die zowel mooi als praktisch is. Exclusieve levensstijl in een golfresort Vistabella Golf Resort is een omheinde gemeenschap met een 18-holes golfbaan, paddle-tennisbanen, een bowlingbaan, een supermarkt en een breed scala aan bars en restaurants. Toekomstige upgrades zullen het resort tot een echte 5-sterrenbestemming maken, met geplande toevoegingen zoals een champagnebar, een sushibar, een spahotel, een kunststrand, een tennisbaan, een voetbalveld en een gastronomische bar. Toplocatie aan de Costa Blanca Het resort biedt uitstekende toegang tot de beste stranden, golfbanen en diensten van de regio. Afstanden tot belangrijke bezienswaardigheden zijn onder andere: Strand van La Mata: 18 km Strand van Guardamar del Segura: 20 km Torrevieja: 15 km Luchthaven Alicante: 55 km Luchthaven Murcia: 68 km Villamartín Golf: 12 km Las Colinas Golf & Country Club: 14 km Uw droomhuis wacht op u Of het nu gaat om een permanente woning, een vakantiehuis of een investering in verhuur, deze nieuwbouwwoningen in Vistabella Golf Resort bieden uitzonderlijke waarde in een van de meest gewilde kustgebieden van Spanje. Neem vandaag nog contact met ons op om een bezichtiging te regelen en uw plek in deze luxe golfgemeenschap veilig te stellen. 263

Deze informatie is hier onderhevig aan fouten en maakt geen deel uit van een contract. De aanbieding kan zonder kennisgeving worden gewijzigd of ingetrokken. Prijzen zijn exclusief aankoopkosten.

Bereken hypotheken

Wisselkantoor

  • Pounds: 407.887 GBP
  • Russische roebel: 407.887 RUB
  • Zwitserse frank: 432.261 CHF
  • Chinese yuan: 3.762.348 CNY
  • Dollar: 550.347 USD
  • Zweedse kroon: 5.084.318 SEK
  • De Noorse kroon: 5.146.580 NOK

Vraag voor informatie

Responsable del tratamiento: , Finalidad del tratamiento: Gestión y control de los servicios ofrecidos a través de la página Web de Servicios inmobiliarios, Envío de información a traves de newsletter y otros, Legitimación: Por consentimiento, Destinatarios: No se cederan los datos, salvo para elaborar contabilidad, Derechos de las personas interesadas: Acceder, rectificar y suprimir los datos, solicitar la portabilidad de los mismos, oponerse altratamiento y solicitar la limitación de éste, Procedencia de los datos: El Propio interesado, Información Adicional: Puede consultarse la información adicional y detallada sobre protección de datos Aquí.
WhatsApp
ONLINE VIEWINGS