Fuente Alamo · Murcia, Costa Cálida REF: NB-24584 · Villa

242.000€
Slaapkamers: 2
Badkamers: 1
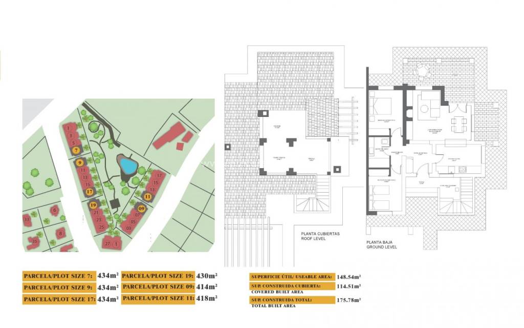
Gebouwd: 175m2
Plot: 430m2
Energy Rating: B
Beach: 7500 Meters
Useable Build Space: 148 Msq.
Storage / Trastero
Tuin
Key ready
Omheind
Aantal parkeerplaatsen: 1
Location: Rural, Urbanisation
Airconditioning: vooraf geïnstalleerd
Double Bedrooms: 2
Parking - Space
Terrace: 45 Msq.
Energy Rating
Energielabel B

SLEUTELKLARE HALFVRIJSTAANDE VILLA IN FUENTE ALAMO, MURCIA Residentie van herenhuizen, onafhankelijke en halfvrijstaande villa's in Fuente Álamo, Murcia. U kunt kiezen uit zeven verschillende modellen huizen, ontworpen naar ieders smaak. Rustieke ontwerpen gecombineerd met materialen van topkwaliteit en een focus op comfortabele leefruimte is er voor elk wat wils. De bewoners van deze besloten gemeenschap van mooie, ruime woningen zullen ook kunnen genieten van hun eigen gemeenschappelijke tuinen en zwembaden. Deze ongebruikelijke design halfvrijstaande villa heeft 2 slaapkamers en 1 badkamer, onafhankelijke keuken, woonkamer met openslaande deuren naar de overdekte veranda en het half overdekte dakterras. Een optie voor een privé zwembad tegen meerprijs. Fuente Álamo de Murcia is een stad en gemeente in de regio Murcia, Zuid-Spanje. Het ligt 22 km ten noordwesten van Cartagena en 35 km ten zuidwesten van Murcia. De stad ligt in het stroomgebied van de Mar Menor, omgeven door de bergen Algarrobo, Los Gómez, Los Victorias en de Carrascoy. Het water van deze bergen stroomt naar beneden in de Rambla de Fuente Álamo en vervolgens naar de Mar Menor. Fuente Álamo ligt op 30 minuten van de luchthaven van Murcia - Corvera.

Deze informatie is hier onderhevig aan fouten en maakt geen deel uit van een contract. De aanbieding kan zonder kennisgeving worden gewijzigd of ingetrokken. Prijzen zijn exclusief aankoopkosten.

Bereken hypotheken

Wisselkantoor

  • Pounds: 210.063 GBP
  • Russische roebel: 210.063 RUB
  • Zwitserse frank: 222.616 CHF
  • Chinese yuan: 1.937.621 CNY
  • Dollar: 283.430 USD
  • Zweedse kroon: 2.618.440 SEK
  • De Noorse kroon: 2.650.505 NOK

Vraag voor informatie

Responsable del tratamiento: , Finalidad del tratamiento: Gestión y control de los servicios ofrecidos a través de la página Web de Servicios inmobiliarios, Envío de información a traves de newsletter y otros, Legitimación: Por consentimiento, Destinatarios: No se cederan los datos, salvo para elaborar contabilidad, Derechos de las personas interesadas: Acceder, rectificar y suprimir los datos, solicitar la portabilidad de los mismos, oponerse altratamiento y solicitar la limitación de éste, Procedencia de los datos: El Propio interesado, Información Adicional: Puede consultarse la información adicional y detallada sobre protección de datos Aquí.
WhatsApp
ONLINE VIEWINGS