Els Poblets · Alicante, Costa Blanca REF: NB-42448 · Villa

475.000€
Slaapkamers: 3
Badkamers: 2
Gebouwd: 98m2
Plot: 381m2
Energy Rating: B
Tuin
Solarium: Yes
In de buurt van scholen
Nabij Commercieel Centrum
Dubbele slaapkamers: 3
Aantal parkeerplaatsen: 1
Useable Build Space: 83 Msq.
Parking - Space
Location: Coastal
Terrace: 83 Msq.
Beach: 1600 Meters
Energy Rating
Energielabel B

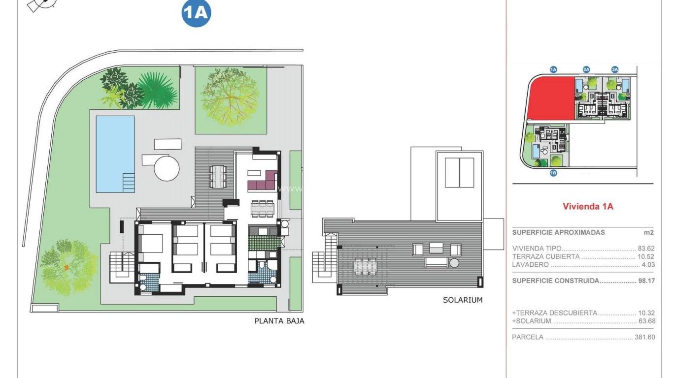
NIEUWBOUW VILLA'S IN ELS POBLETS Nieuwbouwproject met 4 prachtige woningen met tuinen, privéparkeerplaatsen en de mogelijkheid van een privézwembad. Op een onovertroffen locatie naast het stadscentrum, het winkelcentrum en allerlei voorzieningen zullen woningen met drie slaapkamers en twee badkamers met tuin en solarium worden gebouwd. Nieuwbouw villa's gebouwd over 1 verdieping en heeft 3 slaapkamers, 2 badkamers, open keuken met de woonkamer, inbouwkasten, eigen tuin met de off road parkeerplaats, prive solarium. Er is een optie voor een privézwembad tegen een meerprijs. Kenmerken: -Ingebouwde beklede kasten, verdeeld met opknoping bar, laden en interieur LED-verlichting. Installatie van lineaire LED-verlichting in het hele huis. -Installatie van airconditioning in de woonkamer en slaapkamers (inclusief de machine). USB-opladers in slaapkamers. -Installatie van individuele fotovoltaïsche panelen zonder batterij op het dak volgens de voorschriften. -Pre-installatie van oplader voor elektrische auto's. -Structuur van gewapend beton. -Gevel met eenlaagse afwerking. -PVC buitenschrijnwerk met thermische onderbreking, dubbele beglazing met luchtkamer van het type ¨Climalit¨ en lage emissiviteit. -Gepantserde toegangsdeur. -Porseleinen of gelijkwaardige binnenvloeren, de plinten worden gelakt zodat ze bij het binnenschrijnwerk passen. -Verticale wanden van badkamers en toiletten in porselein of gelijkwaardig. -Wanden afgewerkt met gladde kunststofverf. -Keuken met hoge en lage kasten, Silestone of gelijkaardig werkblad uitgerust met inductiekookplaat met geïntegreerd ventilatiesysteem en elektrische oven. -Sanitair van geglazuurd porselein met ingebouwd reservoir. -Vlakke douchebakken van hars, inclusief doucheschermen. - Wastafel met meubel en spiegel met ingebouwde LED-verlichting in alle badkamers en toiletten. -Mengkranen. -Binnendeuren wit gelakt. Els Poblets ligt tussen Alicante en Valencia, op 1 uur van beide luchthavens. Els Poblets ligt in een vlakte gevormd door alluviale gronden van de rivier de Girona. Het strekt zich uit over ongeveer 1 km kustlijn aan de Middellandse Zee en bevat het strand van Almadrava. Grenzend aan Denia en El Verger zijn er 24 km prachtige BLUE FLAG stranden om uit te kiezen. De stad en het strand liggen ongeveer 1 km uit elkaar. Terwijl veel Spaanse kustplaatsen in de winter gesloten zijn, is Els Poblets het hele jaar geopend met alle voorzieningen zoals bars, banken, winkels, restaurants, supermarkten, kappers en is het een vriendelijke stad met gemengde nationaliteiten, voornamelijk Spanjaarden met enkele ex-patriotten.

Deze informatie is hier onderhevig aan fouten en maakt geen deel uit van een contract. De aanbieding kan zonder kennisgeving worden gewijzigd of ingetrokken. Prijzen zijn exclusief aankoopkosten.

Bereken hypotheken

Wisselkantoor

  • Pounds: 412.314 GBP
  • Russische roebel: 412.314 RUB
  • Zwitserse frank: 436.953 CHF
  • Chinese yuan: 3.803.183 CNY
  • Dollar: 556.320 USD
  • Zweedse kroon: 5.139.500 SEK
  • De Noorse kroon: 5.202.438 NOK

Vraag voor informatie

Responsable del tratamiento: , Finalidad del tratamiento: Gestión y control de los servicios ofrecidos a través de la página Web de Servicios inmobiliarios, Envío de información a traves de newsletter y otros, Legitimación: Por consentimiento, Destinatarios: No se cederan los datos, salvo para elaborar contabilidad, Derechos de las personas interesadas: Acceder, rectificar y suprimir los datos, solicitar la portabilidad de los mismos, oponerse altratamiento y solicitar la limitación de éste, Procedencia de los datos: El Propio interesado, Información Adicional: Puede consultarse la información adicional y detallada sobre protección de datos Aquí.
WhatsApp
ONLINE VIEWINGS