Hondon de las Nieves · Alicante, Costa Blanca REF: NB-39416 · Villa

333.000€
Slaapkamers: 3
Badkamers: 2
Gebouwd: 101m2
Plot: 439m2
Energy Rating: B
Tuin
Prive zwembad
Omheind
Terrace: 20 Msq.
In de buurt van scholen
Dubbele slaapkamers: 3
Aantal parkeerplaatsen: 1
Airconditioning: vooraf geïnstalleerd
Useable Build Space: 83 Msq.
Parking - Space
Location: Rural, Mountain
Beach: 30000 Meters
Energy Rating
Energielabel B

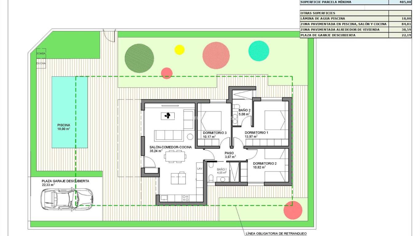
Nieuwbouwwoningen in de urbanisatie La Montañosa, Hondón de las Nieves Rustig mediterraan leven op het platteland van Alicante Ontdek een exclusieve collectie nieuwbouwwoningen in La Montañosa, een rustige woonwijk in de buurt van het charmante dorpje Hondón de las Nieves. Deze locatie in het binnenland staat bekend om zijn traditionele Spaanse sfeer, prachtige berglandschap en ontspannen levensstijl en biedt de ideale balans tussen rust en gemak. Geniet van een landelijke omgeving midden in de natuur, op slechts 30 km van de stranden van de Costa Blanca en levendige kustplaatsjes. Aanpasbare gelijkvloerse villa's met modern comfort Dit woonproject biedt aanpasbare villa's die zijn ontworpen op één verdieping voor maximaal comfort en gemakkelijk wonen. Kies uit verschillende architecturale stijlen, waaronder ibicenco, moderne en mediterrane ontwerpen, allemaal met 3 slaapkamers en 2 badkamers, waarvan één en suite. De bouwoppervlakte varieert tussen 100 en 125 vierkante meter, met ruime open woonruimtes, ingerichte keukens, inbouwkasten en grote ramen die het huis met natuurlijk licht vullen. Elke villa is gebouwd op een privéterrein vanaf 400 vierkante meter, waardoor u ruimte, privacy en de mogelijkheid heeft om te genieten van het buitenleven in een rustige omgeving. De uiteindelijke prijs is afhankelijk van het villamodel, het bouwsysteem en het gekozen perceel. Deze referentieprijs is inclusief een perceel ter waarde van 85.500 euro, met aanpassingen indien een ander perceel wordt gekozen. Buitenruimtes ontworpen voor ontspanning Geniet van de mediterrane levensstijl met privétuinen, een zwembad van 6 x 3 meter, een overdekte veranda en een eigen parkeerplaats op het perceel. Alle percelen zijn omheind, wat privacy en veiligheid biedt. Of u nu wilt ontspannen bij het zwembad, wilt genieten van het uitzicht op de bergen of gasten wilt ontvangen, deze villa's bieden een uitzonderlijke buitenervaring. Hoogwaardige constructie en moderne voorzieningen Elke villa wordt ongeveer 12 maanden na goedkeuring van de vergunning opgeleverd en is gebouwd volgens hoge normen met eersteklas voorzieningen, waaronder: Gepantserde toegangsdeur en gemotoriseerde poort voor voertuigen Gemotoriseerde rolluiken in slaapkamers Volledig ingerichte keuken Volledig uitgeruste badkamers met wastafels, spiegels en doucheschermen Voorbereiding voor airconditioning met luchtkanalen Aerothermisch warmwatersysteem Ideale locatie dicht bij de natuur en belangrijke bezienswaardigheden Luchthaven Alicante: 35 km Stranden van de Costa Blanca: 30 km Stad en haven van Alicante: 40 km Elche: 28 km Alenda Golf: 20 km Font del Llop Golf: 25 km Uw nieuwe mediterrane thuis wacht op u Geniet van rust, privacy en modern wonen in een van de mooiste woonwijken van het binnenland van Alicante. Neem vandaag nog contact met ons op voor meer informatie of om een bezichtiging te regelen van deze prachtige nieuwbouwwoningen in Hondón de las Nieves.

Deze informatie is hier onderhevig aan fouten en maakt geen deel uit van een contract. De aanbieding kan zonder kennisgeving worden gewijzigd of ingetrokken. Prijzen zijn exclusief aankoopkosten.

Bereken hypotheken

Wisselkantoor

  • Pounds: 289.054 GBP
  • Russische roebel: 289.054 RUB
  • Zwitserse frank: 306.327 CHF
  • Chinese yuan: 2.666.231 CNY
  • Dollar: 390.010 USD
  • Zweedse kroon: 3.603.060 SEK
  • De Noorse kroon: 3.647.183 NOK

Vraag voor informatie

Responsable del tratamiento: , Finalidad del tratamiento: Gestión y control de los servicios ofrecidos a través de la página Web de Servicios inmobiliarios, Envío de información a traves de newsletter y otros, Legitimación: Por consentimiento, Destinatarios: No se cederan los datos, salvo para elaborar contabilidad, Derechos de las personas interesadas: Acceder, rectificar y suprimir los datos, solicitar la portabilidad de los mismos, oponerse altratamiento y solicitar la limitación de éste, Procedencia de los datos: El Propio interesado, Información Adicional: Puede consultarse la información adicional y detallada sobre protección de datos Aquí.
WhatsApp
ONLINE VIEWINGS