Villajoyosa · Alicante, Costa Blanca REF: NB-51814 · Penthouse

730.000€
Slaapkamers: 3
Badkamers: 2
Gebouwd: 115m2
Energy Rating: B
Gemeenschappelijk zwembad
Gym
Solarium: Yes
Elevator/Lift
Omheind
Views: Sea
In de buurt van scholen
Nabij Commercieel Centrum
Locatie: Kust, Urbanisatie
Dubbele slaapkamers: 3
Aantal parkeerplaatsen: 1
Airconditioning: vooraf geïnstalleerd
Parking - Space
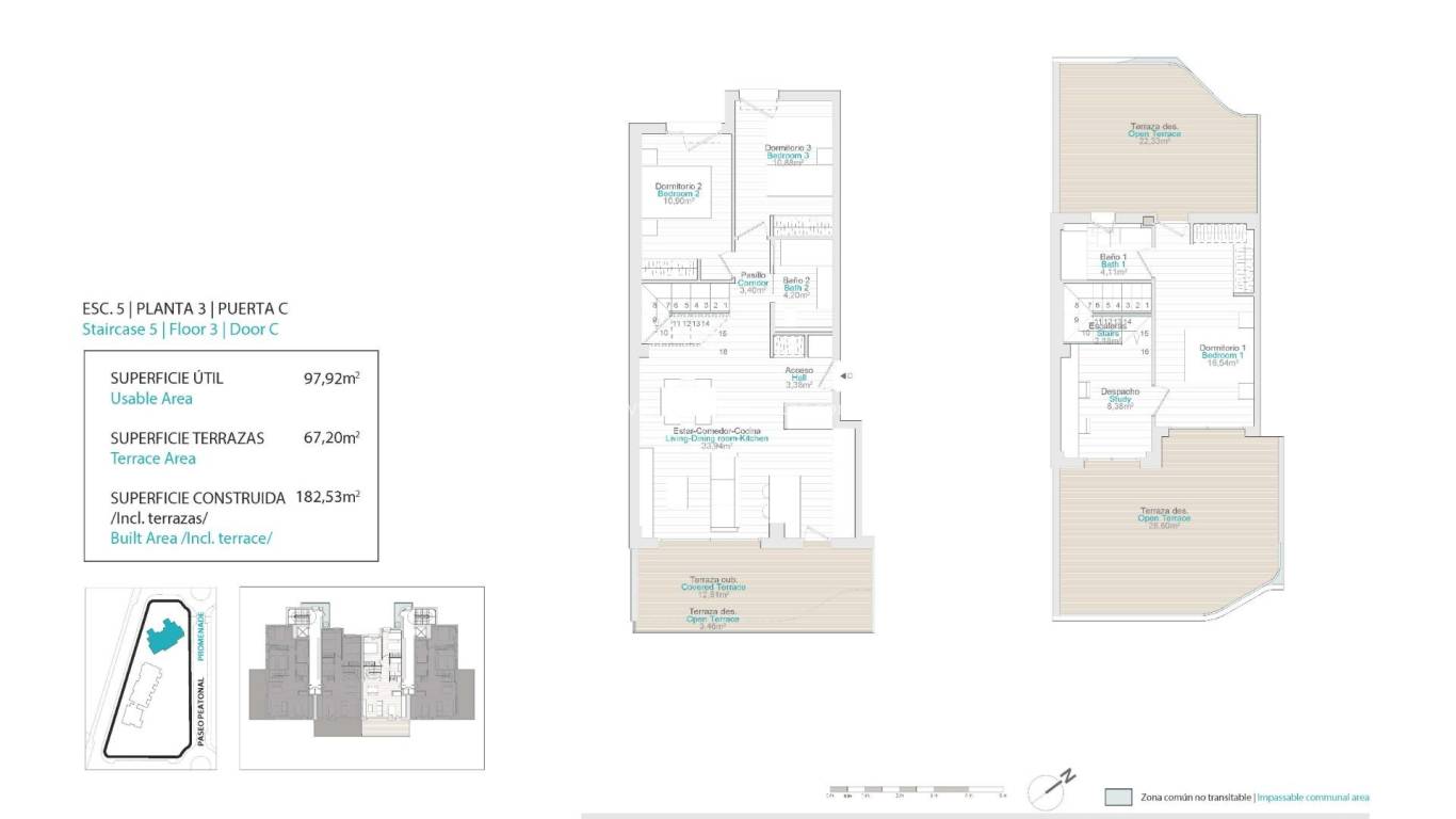
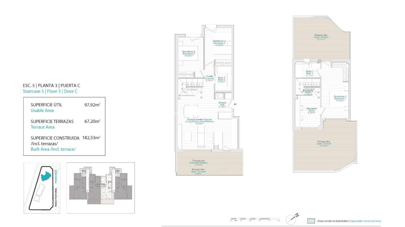
Useable Build Space: 97 Msq.
Terrace: 66 Msq.
Beach: 200 Meters
Energy Rating
Energielabel B

NIEUWBOUW COMPLEX IN VILLAYOJOSA Nieuwbouw wooncomplex van 42 appartementen en penthouses in Villayojosa gelegen op steenworp afstand van het strand. Luxe woningen met 1, 2 en 3 slaapkamers ontworpen tot in het kleinste detail. Op slechts 200 meter van de zee, met ruime terrassen zijn perfect om te ontspannen en te genieten van het uitzicht op zee. Gelegen in een natuurlijke omgeving, heeft deze promotie een zwembad, tuinen, kinderruimte, uitgeruste fitnessruimte en sauna. Gelijkvloerse woningen met 1 slaapkamer en 1 badkamer met terrassen en privétuinen. Appartementen met 1 en 2 slaapkamers en 1 en 2 badkamers met grote terrassen waar u een overdekt gedeelte en een open gedeelte heeft. Penthouses met 3 slaapkamers en 2 badkamers met terrassen en privé solariums. Alle woningen hebben een eigen parkeerplaats. Villajoyosa is een verborgen parel aan de Spaanse Costa Blanca. Dit kleurrijke vissersdorp ligt tussen Benidorm en El Campello, op ongeveer 30 minuten rijden van de luchthaven van Alicante. De laatste jaren is het idyllische plaatsje uitgegroeid tot een gewilde locatie voor tweedehuisbewoners en toeristen. Villajoyosa heeft veel te bieden, van het brede zandstrand tot de smalle en kleurrijke straatjes van het historische centrum. Vandaag de dag wonen er meer dan dertigduizend mensen in Villajoyosa en vooral de kleurrijke huizen bieden volop inspiratie voor de vele kunstenaars. Villajoyosa staat ook bekend om het heerlijke museum van de chocoladefabriek Valor.

Deze informatie is hier onderhevig aan fouten en maakt geen deel uit van een contract. De aanbieding kan zonder kennisgeving worden gewijzigd of ingetrokken. Prijzen zijn exclusief aankoopkosten.

Bereken hypotheken

Wisselkantoor

  • Pounds: 633.662 GBP
  • Russische roebel: 633.662 RUB
  • Zwitserse frank: 671.527 CHF
  • Chinese yuan: 5.844.891 CNY
  • Dollar: 854.976 USD
  • Zweedse kroon: 7.898.600 SEK
  • De Noorse kroon: 7.995.325 NOK

Vraag voor informatie

Responsable del tratamiento: , Finalidad del tratamiento: Gestión y control de los servicios ofrecidos a través de la página Web de Servicios inmobiliarios, Envío de información a traves de newsletter y otros, Legitimación: Por consentimiento, Destinatarios: No se cederan los datos, salvo para elaborar contabilidad, Derechos de las personas interesadas: Acceder, rectificar y suprimir los datos, solicitar la portabilidad de los mismos, oponerse altratamiento y solicitar la limitación de éste, Procedencia de los datos: El Propio interesado, Información Adicional: Puede consultarse la información adicional y detallada sobre protección de datos Aquí.
WhatsApp
ONLINE VIEWINGS