Orihuela Costa · Alicante, Costa Blanca REF: M-55110 · Appartement

325.000€
Slaapkamers: 2
Badkamers: 2
Gebouwd: 76m2
Energy Rating: B
Wardrobes cupboard
Laundry
Garage
Solarium
Terras
Furniture
Residencial
Armored door
Heating
Balcon
Community Pool
Pergola
Storeroom
Telephone
Light
Water
Appliances
Energy Rating
Energielabel B

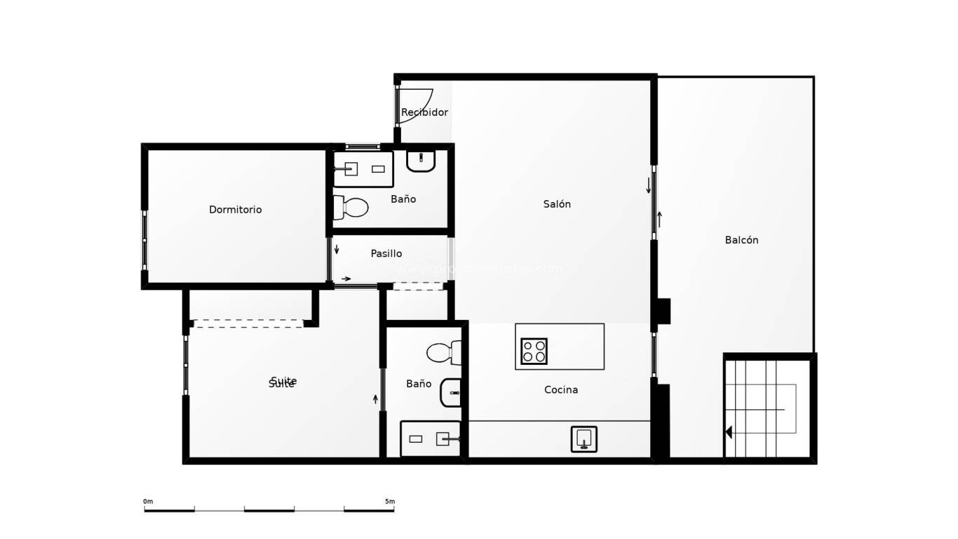
Ontdek deze prachtige bungalow op de bovenste verdieping, gelegen in de prestigieuze wijk PAU 26, Orihuela Costa, waar modern design, comfort en levenskwaliteit perfect samenkomen.. . Deze zo goed als nieuwe woning, gebouwd in 2022, beschikt over 76 m2 bebouwde oppervlakte, een functionele indeling en een uitstekende zuidgerichte ligging, waardoor u de hele dag kunt genieten van natuurlijk licht.. . Via de straat bereikt u een privé en exclusief wooncomplex met slechts 24 woningen, wat rust, privacy en een aangename woonomgeving garandeert. Bij binnenkomst wordt u verwelkomd door een lichte en ruime woon-eetkamer met een moderne open keuken. Vanuit de woonkamer heeft u toegang tot een balkon van 12 m2, voorzien van een elektrisch zonnescherm en kunstgras, ideaal om het hele jaar door van het buitenleven te genieten.. De woning beschikt daarnaast over een wasruimte, twee ruime tweepersoonsslaapkamers en twee complete badkamers, beide met vloerverwarming voor optimaal comfort.. . Vanaf het balkon leidt een privétrap naar het hoogtepunt van de woning: een indrukwekkend privé dakterras (solarium) van ca. 71 m2, afgewerkt met kunstgras en zonneschermen, perfect voor een exclusieve chill-out ruimte of ontspannen momenten onder de mediterrane zon.. . Tot de extra’s behoren porseleinen vloeren, horren voor alle ramen, veiligheidsdeur, een elektrisch zonnescherm op het balkon en een handmatig zonnescherm op de pergola van het solarium.. . De woning wordt verkocht inclusief privé parkeerplaats en afgesloten berging, wat extra gemak en opslagruimte biedt.. . Het wooncomplex beschikt over een prachtig gemeenschappelijk zwembad, zeer goed onderhouden groene zones en hoogwaardige gemeenschappelijke ruimtes – pure luxe.. . Gelegen op slechts 3,5 km van de zee, bevindt de woning zich dicht bij bekende stranden zoals La Zenia en Playa Flamenca, beroemd om hun kristalheldere water en uitstekende voorzieningen.. . Dankzij de nabijheid van prestigieuze golfbanen is deze woning ook een zeer gewilde vakantiewoning met uitstekend verhuurpotentieel.. . Een woning die staat voor exclusiviteit, comfort en mediterrane levensstijl.. Een unieke kans – neem vandaag nog contact met ons op.Prijs: €349.000. Belastingen en aankoopkosten niet inbegrepen (volgens de geldende regelgeving). Een overzicht van de bijkomende kosten wordt verstrekt vóór de reservering.

Deze informatie is hier onderhevig aan fouten en maakt geen deel uit van een contract. De aanbieding kan zonder kennisgeving worden gewijzigd of ingetrokken. Prijzen zijn exclusief aankoopkosten.

Bereken hypotheken

Wisselkantoor

  • Pounds: 282.110 GBP
  • Russische roebel: 282.110 RUB
  • Zwitserse frank: 298.968 CHF
  • Chinese yuan: 2.602.178 CNY
  • Dollar: 380.640 USD
  • Zweedse kroon: 3.516.500 SEK
  • De Noorse kroon: 3.559.563 NOK

Vraag voor informatie

Responsable del tratamiento: , Finalidad del tratamiento: Gestión y control de los servicios ofrecidos a través de la página Web de Servicios inmobiliarios, Envío de información a traves de newsletter y otros, Legitimación: Por consentimiento, Destinatarios: No se cederan los datos, salvo para elaborar contabilidad, Derechos de las personas interesadas: Acceder, rectificar y suprimir los datos, solicitar la portabilidad de los mismos, oponerse altratamiento y solicitar la limitación de éste, Procedencia de los datos: El Propio interesado, Información Adicional: Puede consultarse la información adicional y detallada sobre protección de datos Aquí.
WhatsApp
ONLINE VIEWINGS