Aspe · Alicante, Costa Blanca REF: NB-38490 · Villa

614.000€
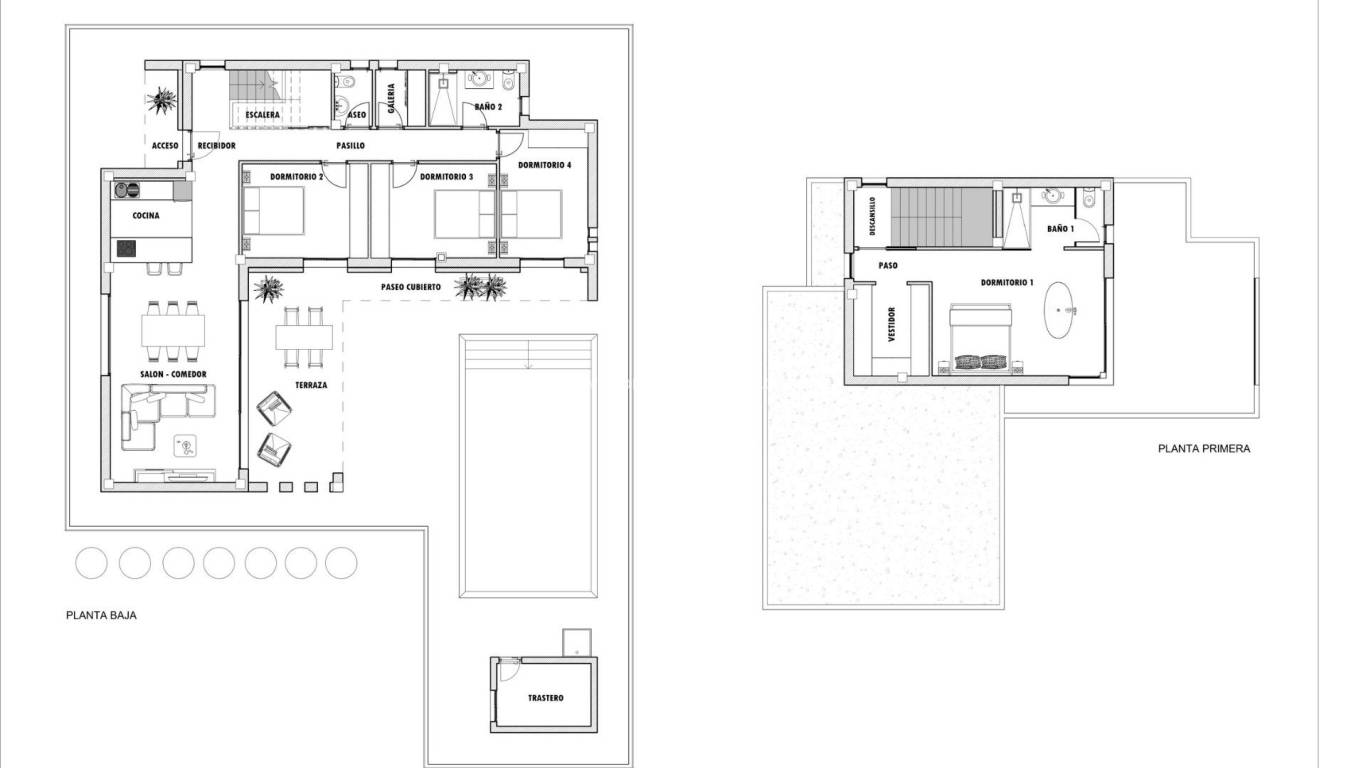
Bedrooms: 4
Bathrooms: 3
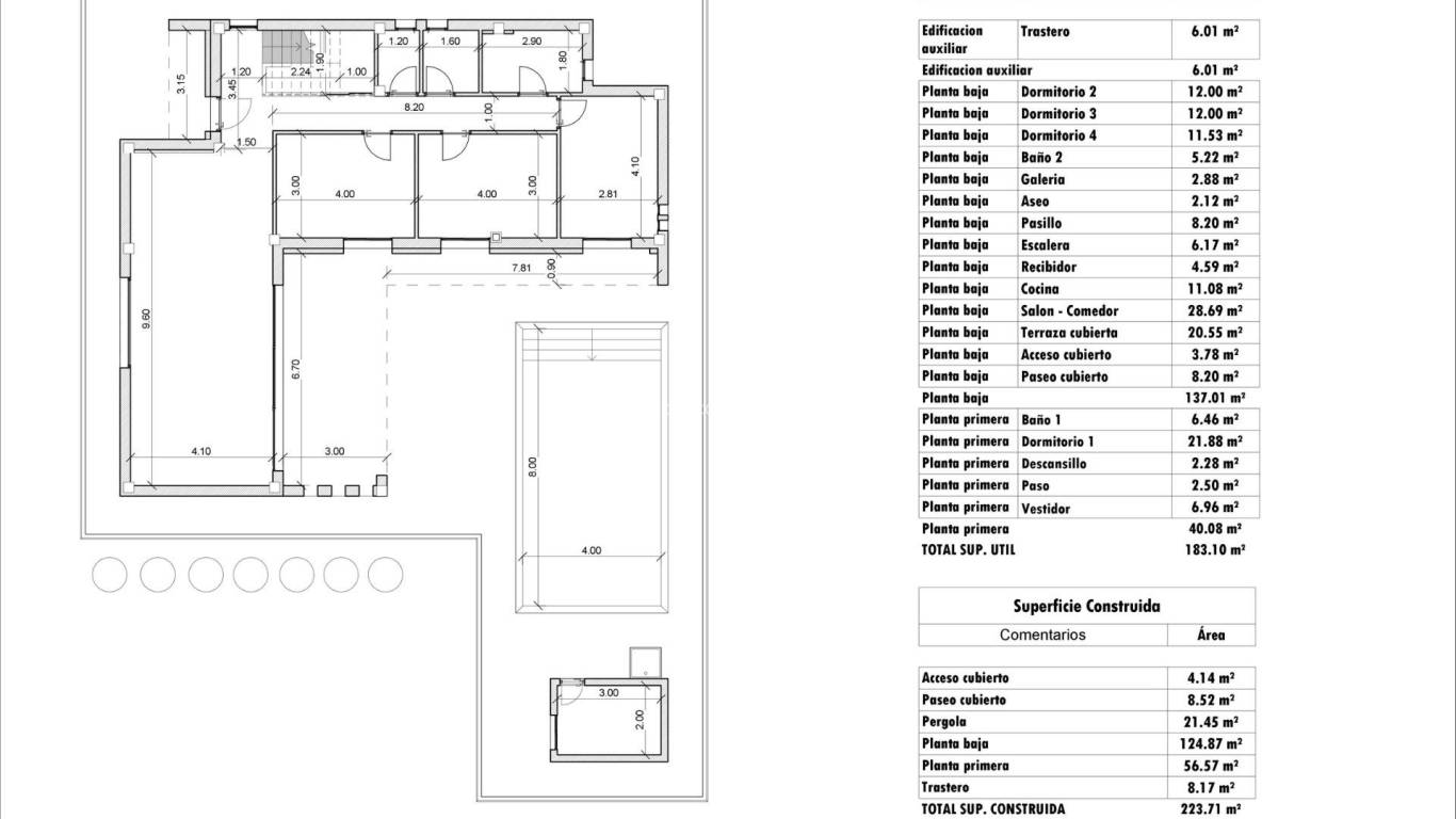
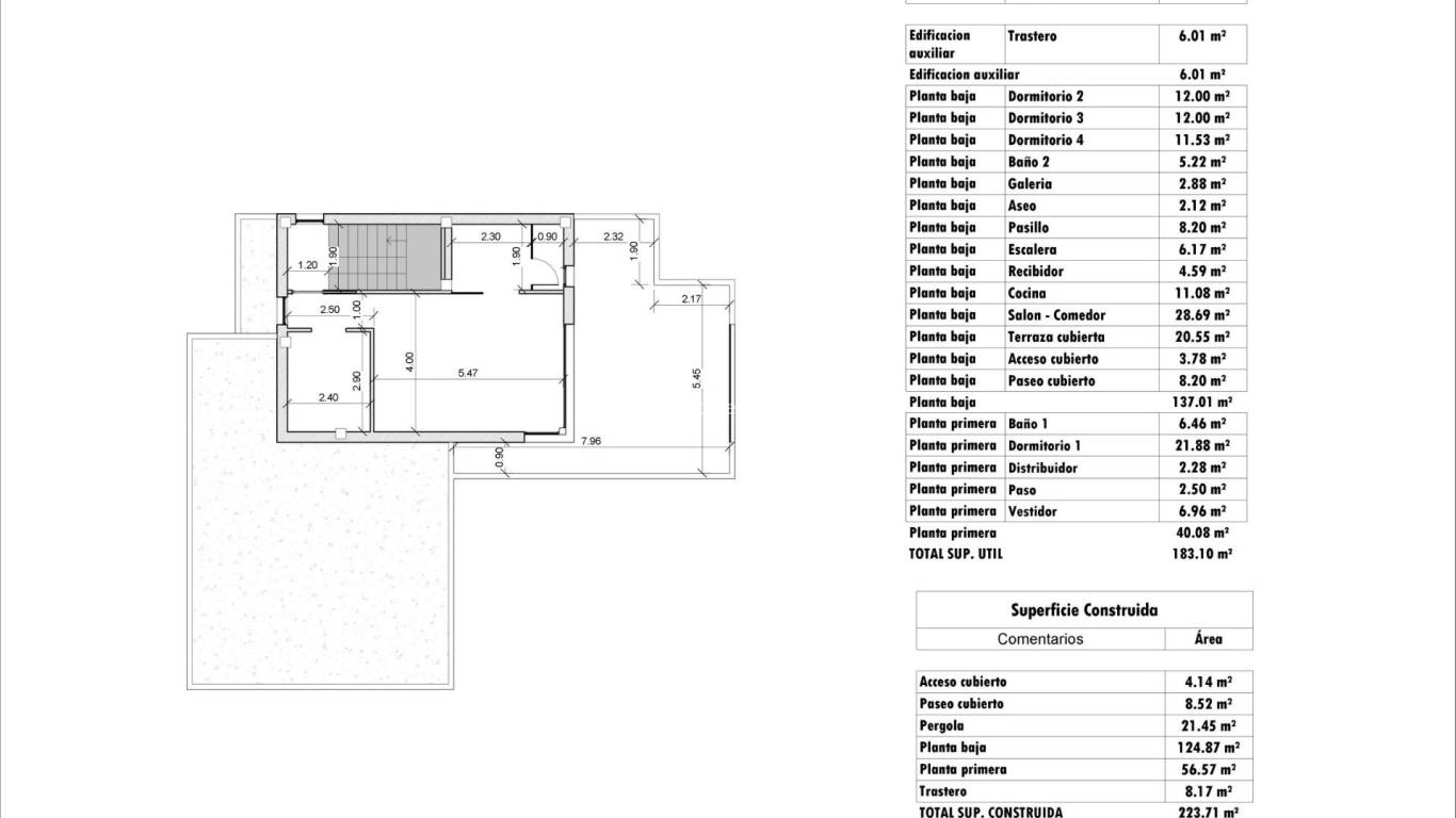
Built: 223m2
Plot: 13.172m2
Energy Rating: B
Air Conditioning: Pre-Installed
Double Bedrooms: 4
Parking - Space
Beach: 25000 Meters
Terrace: 34 Msq.
Location: Mountain
Useable Build Space: 183 Msq.
Storage / Trastero
Garden
Private Pool
Gated
Near Schools
Number of Parking Spaces: 1
Energy Rating
Energy rating B

Newly built villas located in the municipality of Aspe. Newly built villas with several models to choose from, with 2, 3 or 4 bedrooms, on one or two floors and built with slabs or with a structure: depending on the model and the plot chosen, the exact price will be calculated. All the villas are built on rustic plots of over 10,000 m2, of which around 2,500 m2 will be fenced off. The villas have an open-plan kitchen with living room, built-in wardrobes, private swimming pool, porch, storage room and outdoor parking space. There are several plots to choose from. The price is based on a plot priced at €75 000 (if another plot is chosen, the difference will be paid or credited according to the price of the plot). Self-build project, delivery in approximately 12 months from the granting of the licence. If you are looking for a quiet environment, close to typical Spanish villages away from tourist crowds, surrounded by mountains, with a very large plot and about 30 minutes from the sea, this is your home. Aspe is a typical Spanish village with all the amenities for everyday life, surrounded by mountains and with several natural areas nearby where you can go hiking or mountain biking. Located 25 km from the beach, 9 km from Elche and about 20 km from Alicante airport.

This info given here is subject to errors and do not form part of any contract. The offer can be changed or withdrawn without notice. Prices do not include purchase costs.

Calculate mortgages

Currency exchange

  • Pounds: 532.970 GBP
  • Russian ruble: 532.970 RUB
  • Swiss franc: 564.819 CHF
  • Chinese yuan: 4.916.114 CNY
  • Dollar: 719.117 USD
  • Swedish krona: 6.643.480 SEK
  • The Norwegian crown: 6.724.835 NOK

Ask for information

Responsable del tratamiento: , Finalidad del tratamiento: Gestión y control de los servicios ofrecidos a través de la página Web de Servicios inmobiliarios, Envío de información a traves de newsletter y otros, Legitimación: Por consentimiento, Destinatarios: No se cederan los datos, salvo para elaborar contabilidad, Derechos de las personas interesadas: Acceder, rectificar y suprimir los datos, solicitar la portabilidad de los mismos, oponerse altratamiento y solicitar la limitación de éste, Procedencia de los datos: El Propio interesado, Información Adicional: Puede consultarse la información adicional y detallada sobre protección de datos Aquí.
WhatsApp
ONLINE VIEWINGS