Torrevieja · Alicante, Costa Blanca REF: NB-38784 · Apartment

290.000€
Bedrooms: 2
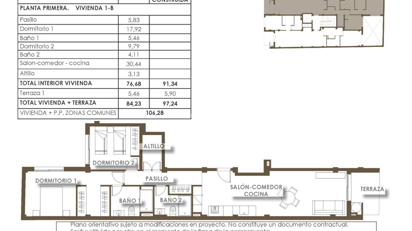
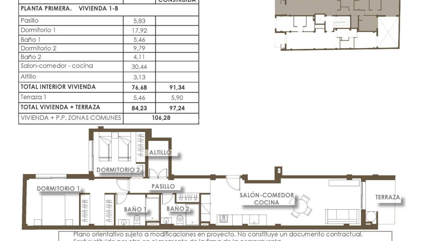
Bathrooms: 2
Built: 91m2
Energy Rating: B
Communal pool
Near bus route
Elevator/Lift
Gated
Space
Near Schools
Near Childrens Parks
Near Commercial Center
Air Conditioning: Pre-Installed
Double Bedrooms: 2
Useable Build Space: 76 Msq.
Beach: 150 Meters
Location: Coastal
Terrace: 5 Msq.
Energy Rating
Energy rating B

Modern New Build Apartments in the Heart of Torrevieja Prime Location Just 150 m from the Sea This exceptional new development is located in the very centre of Torrevieja, just 150 m from the natural swimming pools and seafront promenade, and only 500 m from Playa del Cura. Surrounded by an extensive range of services including shops, supermarkets, parks, cafés and restaurants, the area offers everything you need within a short walk. Its combination of urban convenience and coastal tranquillity makes it one of the most attractive residential areas in the city. Contemporary Apartments With 1 and 2 Bedrooms The development offers modern apartments featuring 1 or 2 bedrooms and 1 or 2 bathrooms, including two exclusive penthouses with private solarium, barbecue and private pool. All homes are designed with open layouts that maximise natural light, incorporating spacious terraces and stylish American style kitchens. Each apartment includes a fully equipped kitchen with appliances, complete bathrooms with furniture, shower screens and underfloor heating, as well as interior lighting. There is also preinstallation for ducted air conditioning, ensuring year round comfort. Attractive Communal Areas for Relaxation Residents can enjoy excellent communal facilities designed for wellbeing and leisure. The ground floor features a refreshing communal pool and a relaxing sauna. The rooftop terrace offers a shared solarium, ideal for sunbathing and taking in the Mediterranean atmosphere. Enjoy a Unique Coastal and Natural Environment Torrevieja is renowned for its mild Mediterranean climate, with an average annual temperature of 20 ºC, perfect for year round living. The city is home to the famous salt lakes and the protected Natural Park of La Mata and Torrevieja, located just 4 km from the development. With its vibrant pink and green lagoons, scenic walking routes and diverse wildlife, it provides a healthy and inspiring natural setting. Distances to Key Points of Interest Puerto Deportivo de Torrevieja 1 km Parque Natural de La Mata 4 km Villamartin Golf 8 km Alicante Airport 45 km Murcia Airport 60 km Live the Mediterranean Lifestyle Secure your modern home in one of the most sought after coastal cities in the Costa Blanca. Contact us today to schedule a visit and reserve your place in this outstanding new development.

This info given here is subject to errors and do not form part of any contract. The offer can be changed or withdrawn without notice. Prices do not include purchase costs.

Calculate mortgages

Currency exchange

  • Pounds: 251.729 GBP
  • Russian ruble: 251.729 RUB
  • Swiss franc: 266.771 CHF
  • Chinese yuan: 2.321.943 CNY
  • Dollar: 339.648 USD
  • Swedish krona: 3.137.800 SEK
  • The Norwegian crown: 3.176.225 NOK

Ask for information

Responsable del tratamiento: , Finalidad del tratamiento: Gestión y control de los servicios ofrecidos a través de la página Web de Servicios inmobiliarios, Envío de información a traves de newsletter y otros, Legitimación: Por consentimiento, Destinatarios: No se cederan los datos, salvo para elaborar contabilidad, Derechos de las personas interesadas: Acceder, rectificar y suprimir los datos, solicitar la portabilidad de los mismos, oponerse altratamiento y solicitar la limitación de éste, Procedencia de los datos: El Propio interesado, Información Adicional: Puede consultarse la información adicional y detallada sobre protección de datos Aquí.
WhatsApp
ONLINE VIEWINGS