Benijofar · Alicante, Costa Blanca REF: NB-25655 · Villa

515.000€
Bedrooms: 3
Bathrooms: 3
Built: 141m2
Plot: 200m2
Energy Rating: B
Number of Parking Spaces: 1
Air Conditioning: Pre-Installed
Under-Build / Basement
Parking - Space
Beach: 8000 Meters
Useable Build Space: 102 Msq.
Location: Rural
Terrace: 123 Msq.
Garden
Private Pool
BBQ
Laundry room
Near bus route
Solarium: Yes
Elevator/Lift
Gated
Near Schools
Near Commercial Center
Double Bedrooms: 3
Energy Rating
Energy rating B

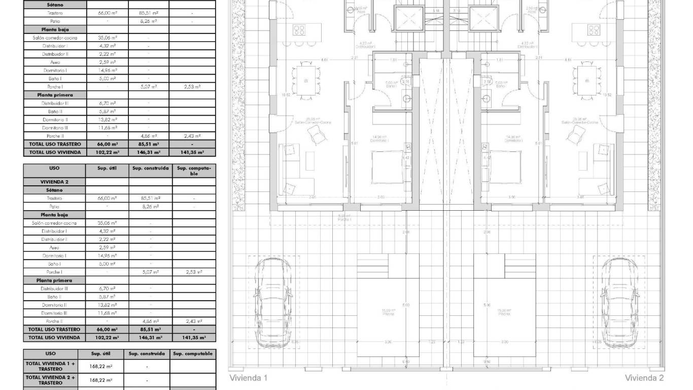
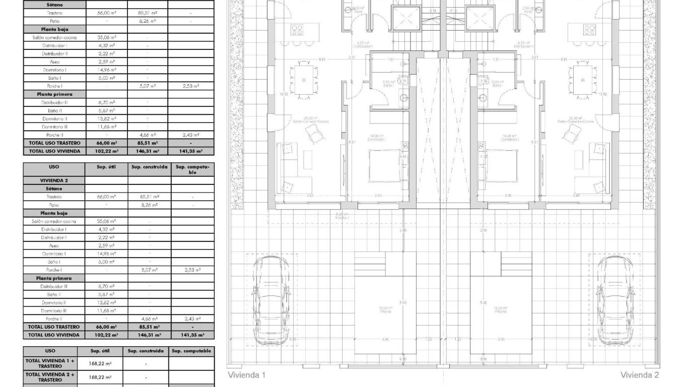
Luxury New Build Semi-Detached Villas in Benijófar – Costa Blanca Living Privileged Location in Benijófar These exclusive new build semi-detached villas are located in the charming town of Benijófar, one of the most sought-after areas on the Costa Blanca. Known for its mix of tradition and modern lifestyle, Benijófar offers all essential services including supermarkets, pharmacies, banks, restaurants, and local shops. The development is strategically positioned just 10 km from the golden beaches of Guardamar del Segura and only 30 km from Alicante Airport, making it an ideal location for both permanent living and holiday stays. Spacious and Modern Design Each villa has been designed with a contemporary style, maximizing space and natural light. The distribution includes three bedrooms (one on the ground floor and two on the first floor) and three bathrooms (including one in the basement), making them perfect for families and guests. The open-plan living room with dining area flows seamlessly into the fully fitted kitchen, creating a warm and functional environment. Large windows enhance brightness throughout the home. Premium Features and Extras These villas stand out for their high-quality finishes and thoughtful details: 66 m2 basement with bathroom, gallery and laundry area Private pool, solarium with barbecue and sink Decorative fireplace in the living room Private parking within the plot Elevator from basement to top floor 3 photovoltaic solar panels and LED lighting throughout Pre-installed air conditioning Fully fitted bathrooms with furniture and shower screens Plot sizes from 200 m2 Lifestyle and Surroundings Benijófar combines the charm of a traditional Spanish village with the convenience of modern services. Nature lovers will enjoy the nearby natural park, perfect for walking and cycling. For golf enthusiasts, La Marquesa Golf is just 5 km away, while several other top courses are within a 15 km radius. Families can visit the waterparks in Rojales (4 km) and Torrevieja (12 km), or explore the vibrant city of Torrevieja itself, only 12 km away. Excellent Connectivity The villas benefit from easy access to the N-332 and AP-7 motorways, ensuring quick connections to Alicante, Elche, Orihuela Costa, and Murcia. The area offers the perfect balance of tranquility, amenities, and accessibility. Your Dream Home in Costa Blanca Experience luxury, comfort, and Mediterranean living in these stunning new build villas in Benijófar. Contact us today for more details and to arrange a viewing of your future home.

This info given here is subject to errors and do not form part of any contract. The offer can be changed or withdrawn without notice. Prices do not include purchase costs.

Calculate mortgages

Currency exchange

  • Pounds: 447.035 GBP
  • Russian ruble: 447.035 RUB
  • Swiss franc: 473.749 CHF
  • Chinese yuan: 4.123.451 CNY
  • Dollar: 603.168 USD
  • Swedish krona: 5.572.300 SEK
  • The Norwegian crown: 5.640.538 NOK

Ask for information

Responsable del tratamiento: , Finalidad del tratamiento: Gestión y control de los servicios ofrecidos a través de la página Web de Servicios inmobiliarios, Envío de información a traves de newsletter y otros, Legitimación: Por consentimiento, Destinatarios: No se cederan los datos, salvo para elaborar contabilidad, Derechos de las personas interesadas: Acceder, rectificar y suprimir los datos, solicitar la portabilidad de los mismos, oponerse altratamiento y solicitar la limitación de éste, Procedencia de los datos: El Propio interesado, Información Adicional: Puede consultarse la información adicional y detallada sobre protección de datos Aquí.
WhatsApp
ONLINE VIEWINGS